목록으로
최종 업데이트: 2026-04-23 01:04
2024타경5766
부동산
부동산임의경매
매각
진행중
| 소재지 |
경기도 남양주시 퇴계원읍 도제원로 96, 일신건영아파트 103동 13층 1306호
(경기도 남양주시 퇴계원읍 퇴계원리 64)
|
|---|---|
| 물건종류 | 아파트[공급32평형] |
| 면적 |
토지: 42.24㎡ (12.78평)
건물: 84.78㎡ (25.65평)
|
| 현재 위치 | 경기도 남양주시 퇴계원읍 도제원로 96, 일신건영아파트 103동 13층 1306호 |
| 소유자 / 채무자 | 망 이성문의 상속인 이종대 / 망 이성문의 상속인 이종대 |
| 채권자 | 한국주택금융공사의 업무수탁기관 국민은행 |
| 배당종기일 | 2025-03-04 |
감정가
416,000,000
최저가
291,200,000
보증금
29,120,000
진행 상태 / 매각 결과
매각
completed = false
매각허가결정
| 상태 코드 | 2 | 상태 텍스트 | 매각허가결정 |
|---|---|---|---|
| 매각가 | 334,900,000원 | 매각가율 | 0% |
| 입찰 수 | 2 | 매수인 | 강정구 |
| 차순위 입찰가 | 299,200,000원 | 매각허가 결정 | 매각허가결정 |
| 매각허가 결정일 | 2026-03-17 | 대금 지급기한 | - |
| 대금 지급상태 | - | 배당기일 | - |
| 배당 종결일 | - | 다음 확인 예정 | 2026-04-24 09:00 |
입찰 진행 내역
| 회차/구분 | 입찰기일 | 최저매각가격 | 결과 |
|---|---|---|---|
| 1차 (진행) | 2026-01-27 | 416,000,000 | 유찰 |
| 2차 (진행) | 2026-03-10 | 291,200,000 |
진행 메모
매각 : 334,900,000 원 (80.5%)
(입찰 2 명,매수인:강정구 / 차순위금액 299,200,000원)
매각결정기일 : 2026.03.17 - 매각허가결정
대금지급기한 : 2026.04.24
대금납부 2026.04.15 / 배당기일 2026.05.26
매각물건 현황
| 구분 | 순번 | 소재지 | 용도/구조/면적 | 감정가 | 비고 |
|---|---|---|---|---|---|
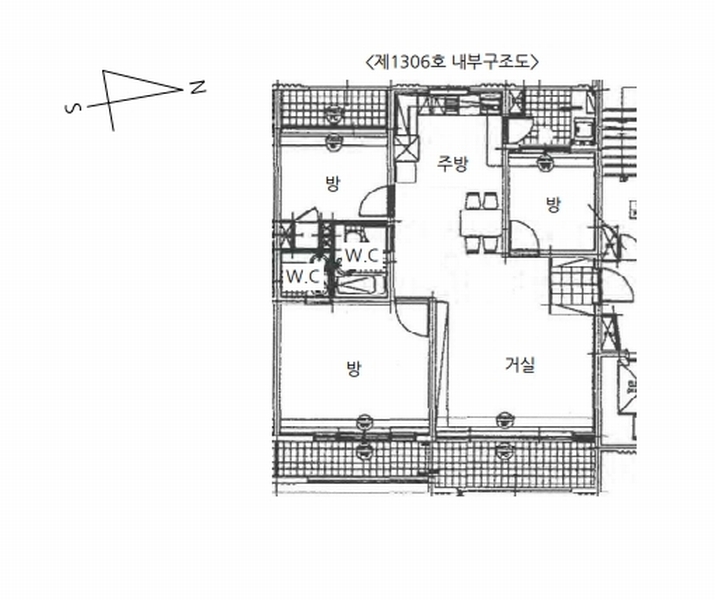
| 건물 | 19층중 13층 | 00.05.31 | 84.78㎡(25.65평)[공급32평] / 방3, 거실, 주방, W.C2 등 | 208,000,000 | * 도시가스보일러에 의한 난방설비 |
현황 및 위치
* 본건은 경기도 남양주시 퇴계원읍 퇴계원리 "퇴계원고등학교" 남동측 인근에 위치하며, 주위는 아파트단지, 단독주택, 근린생활시설 등이 소재하는 등 제반 주위환경은 보통임. * 본건 소재 건물까지 제 차량의 출입이 가능하며, 인근에 버스정류장이 소재하고 남서측 근거리에 "퇴계원역(경춘선)이 위치하는 등 전반적인 교통상황은 보통임. * 인접 도로와 대체로 등고 평탄한 10필 일단의 부정형 토지로서, 아파트 건부지로 이용중임. * 본건 아파트단지 내·외로 포장도로가 개설되어 있음.
참고사항
* 외필지 :퇴계원리60-3, 62-2,65, 66, 67, 68-1, 68-6,75-45, 105-23
전문가 코멘트
☞ 미납관리비의 경우 사용자 부담이 원칙이나 사용자가 납부하지 않은 경우 공용부분 관리비는 대법원판례(2001다8677 전원합의체)에 따라서 매수인에게 승계됩니다. 관리비채권의 법적 소멸시효는 3년이며 미납관리비의 연체료나 관리사무소에서 임의적으로 계산한 지연손해금등이 매수자에게 승계되지 않습니다. 위 사항을 참고하여 관리사무소와 협의하여 처리하시기 바랍니다.☞ 관리비 채권의 법정 소멸시효는 3년이나 미납관리비를 이유로 소멸시효 중단조치(민법 168조재판상의 청구,압류,가압류,가처분 등)를 한 경우 3년이 경과한 관리비이더라도 소멸되지 않습니다.
등기부 현황
건물
| 순위 | 접수일자 | 권리종류 | 권리자 | 채권금액 | 소멸여부 | 비고 |
|---|---|---|---|---|---|---|
| 1(갑3) | 2016-05-13 | 소유권이전(매매) | 이OO | 0 | 거래가액 금235,000,000원 | |
| 2(을13) | 2016-05-13 | 근저당 | 국OOOOOOOOOO | 176,000,000 | 소멸 | 말소기준등기 |
| 3(을15) | 2021-02-26 | 근저당 | 국OOO | 120,000,000 | 소멸 | |
| 4(을16) | 2022-06-08 | 근저당 | 국OOO | 144,000,000 | 소멸 | |
| 5(갑4) | 2024-12-04 | 소유권이전(상속) | 이OO | 0 | ||
| 6(갑5) | 2024-12-13 | 임의경매 | 국OOOOOOOOOOOOO | 132,156,463 | 소멸 | 2024타경5766 |
| 7(갑6) | 2025-02-14 | 가압류 | 국OOO | 85,038,165 | 소멸 | 2025카단70 |
| 8(갑7) | 2025-02-21 | 가압류 | (OOOOOOOOO | 25,640,672 | 소멸 | 2025카단77 |
관련 문서 (PDF)
클릭하면 원본 파일이 열립니다