목록으로
최종 업데이트: 2026-04-27 12:12
2024타경72841
부동산
부동산강제경매
유찰
진행중
| 소재지 |
-
(경기도 가평군 가평읍 달전리 133-5)
|
|---|---|
| 물건종류 | 숙박시설 |
| 면적 |
토지: 0.00㎡ (0평)
건물: 635.60㎡ (192.27평)
|
| 현재 위치 | 경기도 가평군 가평읍 달전리 133-5 |
| 소유자 / 채무자 | 신성종합건설(주) / 신성종합건설(주) 외1명 |
| 채권자 | (주)리혁 외2명 |
| 배당종기일 | 2024-06-24 |
감정가
2,296,422,800
최저가
551,371,000
보증금
55,137,100
입찰 진행 내역
| 회차/구분 | 입찰기일 | 최저매각가격 | 결과 |
|---|---|---|---|
| 1차 (진행) | 2025-12-11 | 2,296,422,800 | 유찰 |
| 2차 (진행) | 2026-01-27 | 1,607,496,000 | 유찰 |
| 3차 (진행) | 2026-03-10 | 1,125,247,000 | 유찰 |
| 4차 (진행) | 2026-04-14 | 787,673,000 | 유찰 |
| 5차 (진행) | 2026-05-19 | 551,371,000 |
매각물건 현황
| 구분 | 순번 | 소재지 | 용도/구조/면적 | 감정가 | 비고 |
|---|---|---|---|---|---|
| 토지 | 토지 | 1 | 달전리 133-5 / 공장설립제한지역,자연보전권역,도시지역,영농여건불리농지,(한강)폐...공장설립제한지역,자연보전권역,도시지역,영농여건불리농지,(한강)폐기물매립시설 설치제한지역,가축사육제한구역,제1종일반주거지역,지구단위계획구역 | 177 | 1,040,000원(391,900원) |
| 토지 | 2 | 달전리 133-105 | 공장설립제한지역,자연보전권역,도시지역,영농여건불리농지,(한강)폐...공장설립제한지역,자연보전권역,도시지역,영농여건불리농지,(한강)폐기물매립시설 설치제한지역,자연녹지지역,가축사육제한구역 / 대 5㎡ (1.51평) | 1,040,000 | 5,200,000원 |
| 토지 | 3 | 달전리 133-8 | 공장설립제한지역,자연보전권역,도시지역,영농여건불리농지,(한강)폐...공장설립제한지역,자연보전권역,도시지역,영농여건불리농지,(한강)폐기물매립시설 설치제한지역,가축사육제한구역,제1종일반주거지역,지구단위계획구역 / 대 39㎡ (11.8평) | 1,040,000 | 40,560,000원 |
| 토지 | 4 | 달전리 133-31 | 공장설립제한지역,자연보전권역,도시지역,영농여건불리농지,(한강)폐...공장설립제한지역,자연보전권역,도시지역,영농여건불리농지,(한강)폐기물매립시설 설치제한지역,자연녹지지역,가축사육제한구역 / 대 2㎡ (0.61평) | 1,040,000 | 2,080,000원 |
| 토지 | 5 | 달전리 133-107 | 준보전산지,공장설립제한지역,자연보전권역,도시지역,(한강)폐기물매...준보전산지,공장설립제한지역,자연보전권역,도시지역,(한강)폐기물매립시설 설치제한지역,자연녹지지역,가축사육제한구역 / 대 200㎡ (60.5평) | 1,070,000 | 214,000,000원 |
| 토지 | 6 | 달전리 133-91 | 공장설립제한지역,자연보전권역,도시지역,영농여건불리농지,(한강)폐...공장설립제한지역,자연보전권역,도시지역,영농여건불리농지,(한강)폐기물매립시설 설치제한지역,가축사육제한구역,제1종일반주거지역,지구단위계획구역 / 대 1㎡ (0.3평) | 1,100,000 | 1,100,000원 |
| 토지 | 7 | 달전리 133-89 | 준보전산지,공장설립제한지역,자연보전권역,도시지역,(한강)폐기물매...준보전산지,공장설립제한지역,자연보전권역,도시지역,(한강)폐기물매립시설 설치제한지역,자연녹지지역,가축사육제한구역 / 대 199㎡ (60.2평) | 1,100,000 | 218,900,000원 |
| 토지 | 8 | 달전리 133-9 | 공장설립제한지역,자연보전권역,도시지역,영농여건불리농지,(한강)폐...공장설립제한지역,자연보전권역,도시지역,영농여건불리농지,(한강)폐기물매립시설 설치제한지역,가축사육제한구역,제1종일반주거지역,지구단위계획구역 / 대 81㎡ (24.5평) | 1,090,000 | 88,290,000원 |
| 토지 | 9 | 달전리 133-37 | 공장설립제한지역,자연보전권역,도시지역,영농여건불리농지,(한강)폐...공장설립제한지역,자연보전권역,도시지역,영농여건불리농지,(한강)폐기물매립시설 설치제한지역,자연녹지지역,가축사육제한구역 / 대 15㎡ (4.54평) | 1,090,000 | 16,350,000원 |
| 토지 | 10 | 달전리 133-43 | 공장설립제한지역,자연보전권역,도시지역,영농여건불리농지,(한강)폐...공장설립제한지역,자연보전권역,도시지역,영농여건불리농지,(한강)폐기물매립시설 설치제한지역,자연녹지지역,가축사육제한구역 / 대 69㎡ (20.87평) | 1,090,000 | 75,210,000원 |
| 토지 | 11 | 달전리 133-103 | 공장설립제한지역,자연보전권역,도시지역,영농여건불리농지,(한강)폐...공장설립제한지역,자연보전권역,도시지역,영농여건불리농지,(한강)폐기물매립시설 설치제한지역,가축사육제한구역,제1종일반주거지역,지구단위계획구역 / 대 34㎡ (10.29평) | 1,090,000 | 37,060,000원 |
| 토지 | 12 | 달전리 133-109 | 준보전산지,공장설립제한지역,자연보전권역,도시지역,(한강)폐기물매...준보전산지,공장설립제한지역,자연보전권역,도시지역,(한강)폐기물매립시설 설치제한지역,자연녹지지역,가축사육제한구역 / 대 1㎡ (0.3평) | 1,090,000 | 1,090,000원 |
| 토지 | 13 | 달전리 133-104 | 공장설립제한지역,자연보전권역,도시지역,영농여건불리농지,(한강)폐...공장설립제한지역,자연보전권역,도시지역,영농여건불리농지,(한강)폐기물매립시설 설치제한지역,가축사육제한구역,제1종일반주거지역,지구단위계획구역 / 대 14㎡ (4.24평) | 1,080,000 | 15,120,000원 |
| 토지 | 14 | 달전리 133-106 | 공장설립제한지역,자연보전권역,도시지역,영농여건불리농지,(한강)폐...공장설립제한지역,자연보전권역,도시지역,영농여건불리농지,(한강)폐기물매립시설 설치제한지역,자연녹지지역,가축사육제한구역 / 대 64㎡ (19.36평) | 1,080,000 | 69,120,000원 |
| 토지 | 15 | 달전리 133-108 | 준보전산지,공장설립제한지역,자연보전권역,도시지역,(한강)폐기물매...준보전산지,공장설립제한지역,자연보전권역,도시지역,(한강)폐기물매립시설 설치제한지역,자연녹지지역,가축사육제한구역 / 대 122㎡ (36.91평) | 1,080,000 | 131,760,000원 |
| 토지 | 16 | 달전리 132-10 | 공장설립제한지역,자연보전권역,도시지역,영농여건불리농지,(한강)폐...공장설립제한지역,자연보전권역,도시지역,영농여건불리농지,(한강)폐기물매립시설 설치제한지역,가축사육제한구역,제1종일반주거지역,지구단위계획구역 / 도로 70㎡ (21.18평) | 365,000 | 25,550,000원 |
| 토지 | 17 | 달전리 132-12 | 공장설립제한지역,자연보전권역,도시지역,영농여건불리농지,(한강)폐...공장설립제한지역,자연보전권역,도시지역,영농여건불리농지,(한강)폐기물매립시설 설치제한지역,가축사육제한구역,제1종일반주거지역,지구단위계획구역 / 도로 32㎡ (9.68평) | 365,000 | 11,680,000원 |
| 토지 | 18 | 달전리 133-93 | 공장설립제한지역,자연보전권역,도시지역,영농여건불리농지,(한강)폐...공장설립제한지역,자연보전권역,도시지역,영농여건불리농지,(한강)폐기물매립시설 설치제한지역,가축사육제한구역,제1종일반주거지역,지구단위계획구역 / 도로 22㎡ (6.66평) | 365,000 | 8,030,000원 |
| 토지 | 19 | 달전리 133-90 | 공장설립제한지역,자연보전권역,도시지역,영농여건불리농지,(한강)폐...공장설립제한지역,자연보전권역,도시지역,영농여건불리농지,(한강)폐기물매립시설 설치제한지역,가축사육제한구역,제1종일반주거지역,지구단위계획구역 / 도로 10㎡ (3.03평) | 365,000 | 3,650,000원 |
| 토지 | 20 | 달전리 133-94 | 공장설립제한지역,자연보전권역,도시지역,영농여건불리농지,(한강)폐...공장설립제한지역,자연보전권역,도시지역,영농여건불리농지,(한강)폐기물매립시설 설치제한지역,가축사육제한구역,제1종일반주거지역,지구단위계획구역 / 도로 10㎡ (3.03평) | 365,000 | 3,650,000원 |
| 토지 | 21 | 달전리 133-96 | 공장설립제한지역,자연보전권역,도시지역,영농여건불리농지,(한강)폐...공장설립제한지역,자연보전권역,도시지역,영농여건불리농지,(한강)폐기물매립시설 설치제한지역,자연녹지지역,가축사육제한구역 / 도로 5㎡ (1.51평) | 350,000 | 1,750,000원 |
| 토지 | 22 | 달전리 133-97 | 준보전산지,공장설립제한지역,자연보전권역,도시지역,(한강)폐기물매...준보전산지,공장설립제한지역,자연보전권역,도시지역,(한강)폐기물매립시설 설치제한지역,자연녹지지역,가축사육제한구역 / 도로 10㎡ (3.03평) | 350,000 | 3,500,000원 |
| 토지 | 23 | 달전리 133-99 | 준보전산지,자연보전권역,도시지역,(한강)폐기물매립시설 설치제한지...준보전산지,자연보전권역,도시지역,(한강)폐기물매립시설 설치제한지역,자연녹지지역,가축사육제한구역 / 도로 10㎡ (3.03평) | 350,000 | 3,500,000원 |
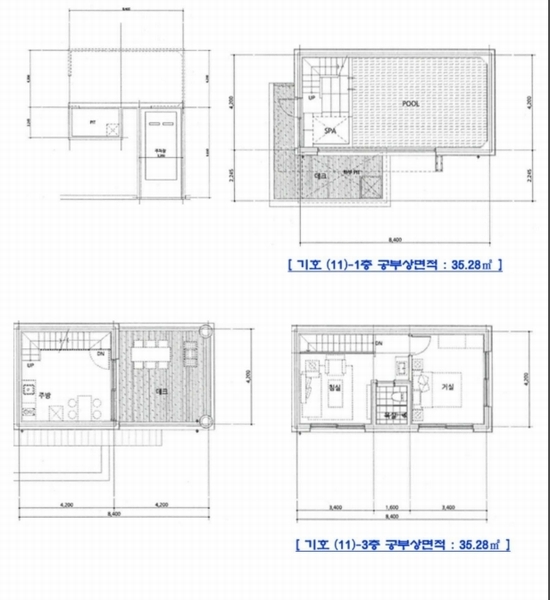
| 건물 | 1 | 북한강변로 1027-18 [달전리 133-5외 3필지]철근콘크리트구조 평지붕(철근콘크리트구조) | 지하1층 / 풀빌라 | 28 | 672,000원 |
| 2 | 1층 | 풀빌라 | 35.28㎡(10.67평) / 2,010,000원 | 70,912,800 | * 사용승인:2021.11.26* 공부상 단독주택 |
| 3 | 2층 | 풀빌라 | 35.28㎡(10.67평) / 2,010,000원 | 70,912,800 | * 사용승인:2021.11.26* 공부상 단독주택 |
| 4 | 3층 | 풀빌라 | 35.28㎡(10.67평) / 2,010,000원 | 70,912,800 | * 사용승인:2021.11.26* 공부상 단독주택 |
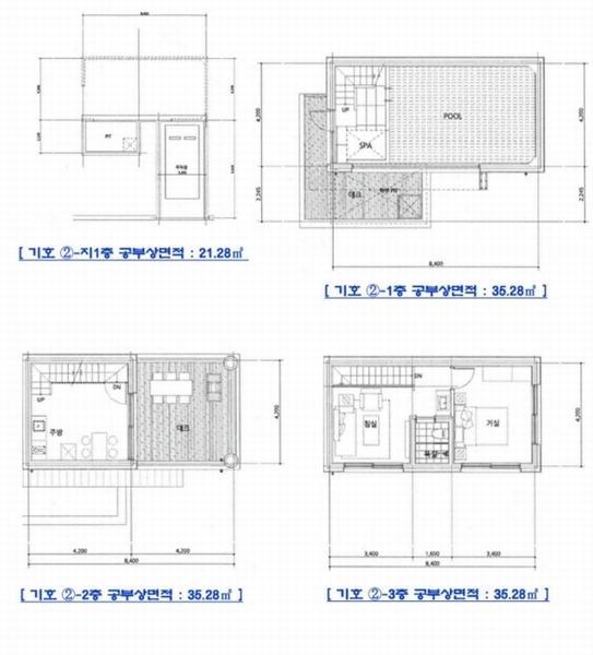
| 5 | 북한강변로 1027-26 [달전리 133-89외 1필지]철근콘크리트구조 평지붕(철근콘크리트구조) | 지하1층 | 풀빌라 / 21.28㎡(6.44평) | 672,000 | 14,300,160원 |
| 6 | 1층 | 풀빌라 | 35.28㎡(10.67평) / 2,010,000원 | 70,912,800 | * 사용승인:2021.11.26* 공부상 단독주택 |
| 7 | 2층 | 풀빌라 | 35.28㎡(10.67평) / 2,010,000원 | 70,912,800 | * 사용승인:2021.11.26* 공부상 단독주택 |
| 8 | 3층 | 풀빌라 | 35.28㎡(10.67평) / 2,010,000원 | 70,912,800 | * 사용승인:2021.11.26* 공부상 단독주택 |
| 9 | 북한강변로 1027-24 [달전리 133-107]철근콘크리트구조 평지붕(철근콘크리트구조) 등 9.철근콘크리트구조 평지붕(철근콘크리트구조), 10.철근콘크리트구조 평지붕(철근콘크리트구조) 철근콘크리트구조 평지붕(철근콘크리트구조), 11.철근콘크리트구조 평지붕(철근콘크리트구조), 12.철근콘크리트구조 평지붕(철근콘크리트구조) | 지하1층 | 풀빌라 / 21.28㎡(6.44평) | 672,000 | 14,300,160원 |
| 10 | 1층 | 풀빌라 | 35.28㎡(10.67평) / 2,010,000원 | 70,912,800 | * 사용승인:2021.11.26* 공부상 단독주택 |
| 11 | 2층 | 풀빌라 | 35.28㎡(10.67평) / 2,010,000원 | 70,912,800 | * 사용승인:2021.11.26* 공부상 단독주택 |
| 12 | 3층 | 풀빌라 | 35.28㎡(10.67평) / 2,010,000원 | 70,912,800 | * 사용승인:2021.11.26* 공부상 단독주택 |
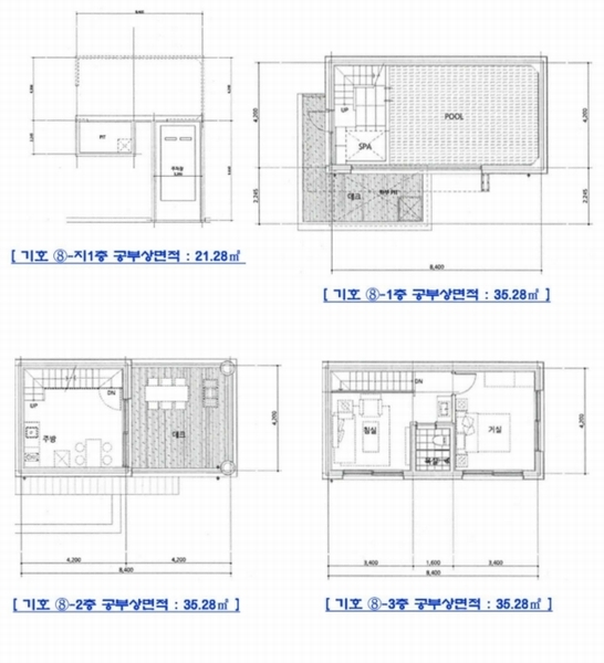
| 13 | 북한강변로 1027-20 [달전리 133-9외 4필지]철근콘크리트구조 평지붕(철근콘크리트구조) | 지하1층 | 풀빌라 / 21.28㎡(6.44평) | 672,000 | 14,300,160원 |
| 14 | 1층 | 풀빌라 | 35.28㎡(10.67평) / 2,010,000원 | 70,912,800 | * 사용승인:2021.11.26* 공부상 단독주택 |
| 15 | 2층 | 풀빌라 | 35.28㎡(10.67평) / 2,010,000원 | 70,912,800 | * 사용승인:2021.11.26* 공부상 단독주택 |
| 16 | 3층 | 풀빌라 | 35.28㎡(10.67평) / 2,010,000원 | 70,912,800 | * 사용승인:2021.11.26* 공부상 단독주택 |
| 17 | 북한강변로 1027-22 [달전리 133-104외 2필지]철근콘크리트구조 평지붕(철근콘크리트구조) | 지하1층 | 풀빌라 / 21.28㎡(6.44평) | 672,000 | 14,300,160원 |
| 18 | 1층 | 풀빌라 | 35.28㎡(10.67평) / 2,010,000원 | 70,912,800 | * 사용승인:2021.11.26* 공부상 단독주택 |
| 19 | 2층 | 풀빌라 | 35.28㎡(10.67평) / 2,010,000원 | 70,912,800 | * 사용승인:2021.11.26* 공부상 단독주택 |
| 20 | 3층 | 풀빌라 | 35.28㎡(10.67평) / 2,010,000원 | 70,912,800 | * 사용승인:2021.11.26* 공부상 단독주택 |
현황 및 위치
=====2024타경72841(모사건) 토1-7===== * 본건은 경기도 가평군 가평읍 달전리 소재 "남이섬가평선착장" 서측 인근에 위치하며 부근은 단독주택, 펜션단지, 숙박시설, 근린생활시설, 유원지시설 등이 혼재하는 남이섬 주변 신흥주택단지임 * 본건까지 차량출입 가능하며 인근에 버스정류장이 소재하는 등 제반 교통여건은 무난시됨 * 1-4)4필 일단의 사다리형에 가까운 토지로서 단독주택 건부지로 이용중임 5)사다리형의 토지로서 단독주택 건부지로 이용중임 6,7)사다리형에 가까운 토지로서 토지로서 단독주택 건부지로 이용중임 * 1-4)(일단지)남동측으로 폭 약 6미터 내외의 단지내 포장도로와 접함. 5)남동측으로 폭 약 6미터 내외의 단지내 포장도로와 접함. 6,7)남동측으로 폭 약 6미터 내외의 단지내 포장도로와 접함. =====2024타경1887(병합) 토8-15===== * 본건은 경기도 가평군 가평읍 달전리 소재 "남이섬가평선착장" 서측 인근에 위치하며 부근은 단독주택, 펜션단지, 숙박시설, 근린생활시설, 유원지시설 등이 혼재하는 남이섬 주변 신흥 주택단지임 * 본건까지 차량출입 가능하며 인근에 버스정류장이 소재하는 등 제반 교통여건은 무난시됨. * 8-12)5필 일단의 장방형 토지로서 단독주택 건부지로 이용중임 13-15)3필 일단의 사다리형 토지로서 단독주택 건부지로 이용중임. * 동측으로 폭 약 6미터 내외의 포장도로와 접함 =====2025타경71769(병합) 토16-23===== * 본건은 경기도 가평군 가평읍 달전리 소재 "남이섬가평선착장" 서측 인근에 위치하며 인근일대는 팬션단지, 숙박시설, 근린생활시설, 유원지시설,단독주택 등이 혼재 형성된 지역으로 주위환경 무난시 됨. *본건을 통하여 차량접근 가능하며 인근에 버스정류장이 소재하나 노선수 및 운행간격 등 고려시 대중교통은 다소 양호치 못함. * 대체로 부정형의 지목 및 현황 "도로"로 이용중임 토지임. *본건은 주택단지를 연결하는 자체 도로로서 공도와 연결되어 있음.
참고사항
* 일괄매각 * 지분매각 * 토16-23) 지분매각 * 등기부상의 단독주택은 현재 풀빌라로 분양중 * 토1-4) 일단지로 이용중인점을 감안 일괄 평가하였음 * 토6,7) 일단지로 이용중인점을 감안 일괄 평가하였음 * 건1-12)건물에 소재하는 데크는 일반적인 거래 관행에 따라 건물의 가치에 포함 평가하였음 ▶2024타경1887(병합) 감정원:공신,가격시점:2024.04.18 * 토8-12) 일단지로 이용중인점을 감안 일괄 평가하였음 * 토13-15)일단지로 이용중인점을 감안 일괄 평가하였음 * 건13-20)건물에 소재하는 데크는 일반적인 거래 관행에 따라 건물의 가치에 포함 평가하였음 ▶2025타경71769(병합) 감정원:청구,가격시점:2025.06.23 ☞2024타경72841(모사건) 현황서상 내용:건1-12)현황은 풀빌라로 분양중인 것으로 추정됨. ☞2024타경1887(병합) 현황서상 내용:토8)주택의 일부 부지로 사용중임, 토9)주택의 뒷마당 용도로 사용중임, 토10)주택의 뒷마당과 축대 등의 부지 용도로 사용중임, 토11)주택의 옆마당의 부지 용도로 사용중임, 토12)주택의 축대 등의 부지 용도로 사용중임, 건13-20)현재 풀빌라 단지로 분양중임, 토13)건물의 앞마당 용도로 사용중임, 토14)건물의 일부 부지와 마당 등의 용도로 사용중임, 토15)건물의 일부 부지와 앞, 뒷마당 등의 용도로 사용중임,▶ 본 물건은 공부상과 현황상 물건 상태가 다르니 확인하시고 입찰하시기 바랍니다.
전문가 코멘트
** 본 건은 유치권신고가 된 경매물건입니다. 기본적인 유치권의 성립요건은 유치권의 원인채권이 경매되는 물건의 가치증가나 보존에 기여한 변제기가 지난 채권(주로 공사채권)이어야하고 채권회수를 위하여 유치(점유 = 직접, 간접점유 무관)를 하고 있어야 합니다. 조사방법은 먼저 신고내용을 입수하여 공사의 내용과 세목 등을 파악하고 이를 기초로 이해관계이자 탐문, 현장조사 등을 통하여 성립여부에 대한 판단을 합니다. 기본적인 내용은 PC버전은 등기부 요약란 아래의 유치권/법정지상권 버튼을 눌러 참고하시고 모바일버전의 경우 자료실의 관련자료를 참고하시기 바랍니다. 본 건에서 구체적으로 검토하여야 할 사항은 다음과 같습니다. == 유치권 신고와 배제신청(불성립 취지의 의견서)이 모두 있으므로 양 당사자의 주장을 모두 참고하고 유치권으로서의 성립요건을 갖추었는지를 현장 방문 등을 통하여 확인하는 것이 필요할 것입니다. 아울러 낙찰 후의 대처 방법도 미리 함께 준비하여야 할 것입니다.
등기부 현황
건물
| 순위 | 접수일자 | 권리종류 | 권리자 | 채권금액 | 소멸여부 | 비고 |
|---|---|---|---|---|---|---|
| 1(갑5) | 2022-08-22 | 소유권이전 | 신OOOOOOOO | 0 | 신탁재산의귀속 | |
| 2(을1) | 2022-08-22 | 근저당 | 엠OOOOOOOO | 1,680,000,000 | 소멸 | 말소기준등기확정채권양도전:송현새마을금고 |
| 3(을2) | 2022-11-04 | 근저당 | 서OO | 550,000,000 | 소멸 | |
| 4(갑6) | 2023-02-10 | 가압류 | 강OO | 475,000,000 | 소멸 | 2023카단20282 |
| 5(갑7) | 2023-02-16 | 가압류 | (OOOOOOOOO | 1,048,644,610 | 소멸 | 2023카단10406 |
| 6(갑9) | 2024-03-18 | 강제경매 | (OOOO | 273,442,191 | 소멸 | 2024타경72841 |
| 7(갑10) | 2024-04-03 | 강제경매 | (OOOOOOOOO | 282,380,100 | 소멸 | 2024타경1887 |
| 8(갑12) | 2025-03-24 | 가압류 | 오OO | 350,000,000 | 소멸 | 2024카단635 |
| 9(갑13) | 2025-06-05 | 임의경매 | 엠OOOOOOOO | 1,478,149,854 | 소멸 | 2025타경71769 |
관련 문서 (PDF)
클릭하면 원본 파일이 열립니다