메뉴
목록으로 최종 업데이트: 2026-04-27 12:26

2025타경70767

의정부지방법원 남양주지원 2024카임3080(등기일:2024.03.12) ☞주택도시보증공사:임차권자 김영목의 임대차보증금반환채권의 양수인▶매수인에게 대항할 수 있는 임차인 있으며, 보증금이 전액 변제되지 아니하면 잔액을 매수인이 인수함 등기부현황 ( 채권액합계 : 3,215,000,000원 ) No 접수 권리종류 권리자 채권금액 비고 소멸여부 1(갑2) 2022.03.24 공유자전원지분전부이전 방성호 매매, 거래가액:190,000,000 2(을3) 2024.03.12 주택임차권(전부) 김영목 190,000,000원 전입:2022.03.10확정:2022.02.07 3(갑3) 2024.11.25 가압류 주택도시보증공사(인천관리센터) 3,025,000,000원 말소기준등기2024카단107037 소멸 4(갑4) 2025.01.23 강제경매 주택도시보증공사(인천관리센터) 청구금액:195,355,616원 2025타경70767 소멸 5(갑5) 2025.09.15 압류 남양주시 소멸 관련정보 [관련사건] 구상금-인천지방법원 2024차전154471 지급명령 주의사항 ▶ 매각허가에 의하여 소멸되지 아니하는 것 - 을구 순위번호 3번 임차권등기(2024.3.12.접수 제26430호, 임차보증금 190,000,000원, 전입일자 2022.3.10., 확정일자 2022.2.7.)는 매각 후 배당에서 임대차보증금이 전액 변제되지 아니하면 잔액을 매수인이 인수함 하루 보지 않기 X 부동산종합정보+토지이용계획+도시계획+개별공시지가+공동주택가격+인근진행물건동일번지진행물건인근반경진행물건인근매각물건동일번지매각물건공매인근진행물건동산인근진행물건임대차보호법예상배당표입찰가분석표시세

부동산 부동산강제경매 유찰 진행중
의정부지방법원 남양주지원 2024카임3080(등기일:2024.03.12) ☞주택도시보증공사:임차권자 김영목의 임대차보증금반환채권의 양수인▶매수인에게 대항할 수 있는 임차인 있으며, 보증금이 전액 변제되지 아니하면 잔액을 매수인이 인수함 등기부현황 ( 채권액합계 : 3,215,000,000원 ) No 접수 권리종류 권리자 채권금액 비고 소멸여부 1(갑2) 2022.03.24 공유자전원지분전부이전 방성호 매매, 거래가액:190,000,000 2(을3) 2024.03.12 주택임차권(전부) 김영목 190,000,000원 전입:2022.03.10확정:2022.02.07 3(갑3) 2024.11.25 가압류 주택도시보증공사(인천관리센터) 3,025,000,000원 말소기준등기2024카단107037 소멸 4(갑4) 2025.01.23 강제경매 주택도시보증공사(인천관리센터) 청구금액:195,355,616원 2025타경70767 소멸 5(갑5) 2025.09.15 압류 남양주시 소멸 관련정보 [관련사건] 구상금-인천지방법원 2024차전154471 지급명령 주의사항 ▶ 매각허가에 의하여 소멸되지 아니하는 것 - 을구 순위번호 3번 임차권등기(2024.3.12.접수 제26430호, 임차보증금 190,000,000원, 전입일자 2022.3.10., 확정일자 2022.2.7.)는 매각 후 배당에서 임대차보증금이 전액 변제되지 아니하면 잔액을 매수인이 인수함 하루 보지 않기 X 부동산종합정보+토지이용계획+도시계획+개별공시지가+공동주택가격+인근진행물건동일번지진행물건인근반경진행물건인근매각물건동일번지매각물건공매인근진행물건동산인근진행물건임대차보호법예상배당표입찰가분석표시세 매각기일 2026-05-19 00:00:00 사건번호 2025타경70767 최근 확인 2026-04-27 12:26 다음 확인 2026-05-20 09:00
소재지
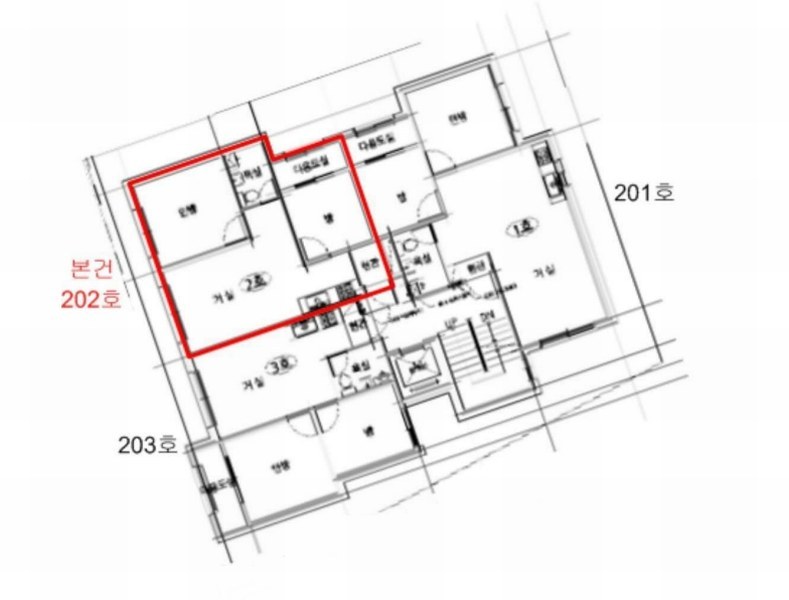
경기도 남양주시 진접읍 장현로 130-18, 솔마루빌3차 2층 202호
(경기도 남양주시 진접읍 장현리 360-1)
물건종류 다세대(빌라)[공급18평형]
면적
토지: 30.57㎡ (9.25평)
건물: 49.65㎡ (15.02평)
현재 위치 경기도 남양주시 진접읍 장현로 130-18, 솔마루빌3차 2층 202호
소유자 / 채무자 방성호 / 방성호
채권자 주택도시보증공사
배당종기일 2025-04-16
감정가
190,000,000
최저가
93,100,000
보증금
9,310,000
입찰 진행 내역
회차/구분 입찰기일 최저매각가격 결과
1차 (진행) 2026-03-10 190,000,000 유찰
2차 (진행) 2026-04-14 133,000,000 유찰
3차 (진행) 2026-05-19 93,100,000
4차 (진행) 2026-06-23 65,170,000
임차인 현황
임차인명 점유여부 전입/확정/배당 보증금 / 차임 예상배당액 대항력
김영목 주거용 전부
전입: 2022-03-10
확정: 2022-02-07
배당: 2024-03-12
190,000,000
월 0
0 있음
주택도시보증공사 주거용 전부
전입: 2022-03-10
확정: 2022-02-07
배당: 2025-04-16
190,000,000
월 0
0 있음
매각물건 현황
구분 순번 소재지 용도/구조/면적 감정가 비고
건물 5층중 2층 19.10.22 49.65㎡(15.02평)[공급18평] / 방2, 거실, 주방, 욕실겸화장실, 다용도실, 현관 152,000,000
현황 및 위치
* 본건은 경기도 남양주시 진접읍 장현리에 소재하는 ""장현초등학교"" 동측 인근에 위치하며 주위는 아파트, 다세대주택, 단독주택, 근린생활시설, 농경지 등이 혼재되어 있는 지역으로서 제반 주위여건은 보통임. * 본건까지 제반 차량 진출입이 가능하며 인근에 노선버스정류장이 위치하고 있어 제반 대중교통여건은 보통임. * 인접지 및 도로와 대체로 등고 평탄한 사다리형의 토지로서 다세대주택 건부지로 이용중임. * 남서측으로 노폭 4미터 내외의 포장도로와 접하고 있음.
등기부 현황
건물
순위 접수일자 권리종류 권리자 채권금액 소멸여부 비고
1(갑2) 2022-03-24 공유자전원지분전부이전 방OO 0 매매, 거래가액:190,000,000
2(을3) 2024-03-12 주택임차권(전부) 김OO 190,000,000 전입:2022.03.10확정:2022.02.07
3(갑3) 2024-11-25 가압류 주OOOOOOOOOOOOOOO 3,025,000,000 소멸 말소기준등기2024카단107037
4(갑4) 2025-01-23 강제경매 주OOOOOOOOOOOOOOO 195,355,616 소멸 2025타경70767
5(갑5) 2025-09-15 압류 남OOO 0 소멸
관련 문서 (PDF) 클릭하면 원본 파일이 열립니다