목록으로
최종 업데이트: 2026-04-22 13:21
2024타경5803
부동산
부동산임의경매
유찰
진행중
| 소재지 |
-
(경기도 가평군 청평면 대성리 406-2)
|
|---|---|
| 물건종류 | 주택 |
| 면적 |
토지: 0.00㎡ (0평)
건물: 221.86㎡ (67.11평)
|
| 현재 위치 | 경기도 가평군 청평면 대성리 406-2 |
| 소유자 / 채무자 | 송정훈,송정윤 / 송정윤 |
| 채권자 | 한국양토양록축협 |
| 배당종기일 | 2025-02-03 |
감정가
813,955,500
최저가
569,769,000
보증금
56,976,900
입찰 진행 내역
| 회차/구분 | 입찰기일 | 최저매각가격 | 결과 |
|---|---|---|---|
| 1차 (진행) | 2026-03-11 | 813,955,500 | 유찰 |
| 2차 (진행) | 2026-04-15 | 569,769,000 | |
| 3차 (진행) | 2026-05-20 | 398,838,000 | |
| 4차 (진행) | 2026-06-24 | 279,187,000 |
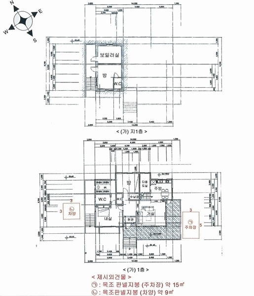
매각물건 현황
| 구분 | 순번 | 소재지 | 용도/구조/면적 | 감정가 | 비고 |
|---|---|---|---|---|---|
| 토지 | 토지 | 1 | 대성리 406-2 / 수질보전특별대책지역,배출시설설치제한지역,공장설립승인지역,자연보...수질보전특별대책지역,배출시설설치제한지역,공장설립승인지역,자연보전권역,가축사육제한구역,계획관리지역 | 999 | 561,000원(209,700원) |
| 토지 | 2 | 대성리 405-4 | 수질보전특별대책지역,배출시설설치제한지역,공장설립승인지역,자연보...수질보전특별대책지역,배출시설설치제한지역,공장설립승인지역,자연보전권역,가축사육제한구역,계획관리지역 / 도로 9.74㎡ (2.95평) | 185,000 | 1,801,900원 |
| 건물 | 1 | 남이터길 28-41 [대성리 406-2]일반목구조 및 철근콘크리트구조 경사지붕(일반목구조) | 지하1층 / 단독주택 | 42 | 906,000원 |
| 2 | 1층 | 단독주택 | 123.56㎡(37.38평) / 1,360,000원 | 168,041,600 | * 사용승인:2013.10.23 |
| 3 | 2층 | 단독주택 | 31.8㎡(9.62평) / 1,360,000원 | 43,248,000 | * 사용승인:2013.10.23 |
| 제시외건물및기타 | 1 | 남이터길 28-41 [대성리 406-2]일반목구조 판넬지붕 | / 주차장 | 15 | 80,000원 |
| 2 | 차양 | 9㎡(2.72평) / 80,000원 | 720,000 | 매각포함 |
등기부 현황
건물
| 순위 | 접수일자 | 권리종류 | 권리자 | 채권금액 | 소멸여부 | 비고 |
|---|---|---|---|---|---|---|
| 1(갑2) | 2019-04-12 | 소유권이전(매매) | 송OOOOOO | 0 | 각 1/2 | |
| 2(을3) | 2019-04-12 | 근저당 | 한OOOOOOOOOOOOO | 360,000,000 | 소멸 | 말소기준등기 |
| 3(을4) | 2020-08-12 | 근저당 | 한OOOOOOO | 60,000,000 | 소멸 | |
| 4(갑5) | 2024-11-13 | 임의경매 | 한OOOOOOOOOOOOOO | 321,932,466 | 소멸 | 2024타경5803 |
관련 문서 (PDF)
클릭하면 원본 파일이 열립니다