목록으로
최종 업데이트: 2026-04-23 18:36
2025타경102250
서울중앙지방법원 본원 21계(02-530-1822)
부동산
부동산강제경매
매각
진행중
| 소재지 |
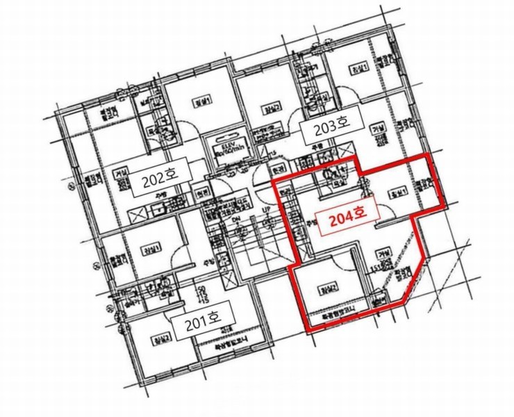
서울특별시 서초구 서초중앙로12길 37, 서초다산빌라주건축물 1동 2층 204호
(서울특별시 서초구 서초동 1626-10)
|
|---|---|
| 물건종류 | 다세대(빌라)[공급10평형] |
| 면적 |
토지: 17.94㎡ (5.43평)
건물: 29.37㎡ (8.88평)
|
| 현재 위치 | 서울특별시 서초구 서초중앙로12길 37, 서초다산빌라주건축물 1동 2층 204호 |
| 소유자 / 채무자 | 이소영 / 이소영 |
| 채권자 | 주택도시보증공사 |
| 배당종기일 | 2025-05-14 |
감정가
377,000,000
최저가
241,280,000
보증금
24,128,000
진행 상태 / 매각 결과
매각
completed = false
매각
| 상태 코드 | 2 | 상태 텍스트 | 매각 |
|---|---|---|---|
| 매각가 | 310,500,000원 | 매각가율 | 0% |
| 입찰 수 | 21 | 매수인 | 중구 구자금 |
| 차순위 입찰가 | 302,010,000원 | 매각허가 결정 | - |
| 매각허가 결정일 | - | 대금 지급기한 | - |
| 대금 지급상태 | - | 배당기일 | - |
| 배당 종결일 | - | 다음 확인 예정 | 2026-04-24 09:00 |
입찰 진행 내역
| 회차/구분 | 입찰기일 | 최저매각가격 | 결과 |
|---|---|---|---|
| 1차 (진행) | 2025-10-28 | 377,000,000 | 유찰 |
| 2차 (진행) | 2025-12-02 | 301,600,000 | 유찰 |
| 3차 (진행) | 2026-01-06 | 241,280,000 | 유찰 |
| (진행) | 2026-02-10 | 193,024,000 | 변경 |
| 4차 (진행) | 2026-02-10 | 377,000,000 | 유찰 |
| 5차 (진행) | 2026-03-17 | 301,600,000 | 유찰 |
| 6차 (진행) | 2026-04-21 | 241,280,000 |
진행 메모
매각 : 310,500,000 원 (82.36%)
(입찰 21 명,매수인:중구 구자금 / 차순위금액 302,010,000원)
매각결정기일 : 2026.04.28
임차인 현황
| 임차인명 | 점유여부 | 전입/확정/배당 | 보증금 / 차임 | 예상배당액 | 대항력 |
|---|---|---|---|---|---|
| 김수형 | 주거용 204호 |
전입: 2022-04-29
확정: 2022-03-23 배당: 2024-05-09 |
291,900,000
월 0
|
0 | 있음 |
| 주택도시보증공사(김수형) | 주거용 204호 |
전입: 2022-04-29
확정: 2022-03-23 배당: 2025-05-12 |
291,900,000
월 0
|
0 | 있음 |
매각물건 현황
| 구분 | 순번 | 소재지 | 용도/구조/면적 | 감정가 | 비고 |
|---|---|---|---|---|---|
| 건물 | 5층중 2층 | 17.02.17 | 29.37㎡(8.88평)[공급10평] / 주거용 | 75,400,000 |
현황 및 위치
*대상물건은 서울특별시 서초구 서초동 소재 " 서율교육대학교" 남측 인근에 위치하며, 주위는 단독주택, 다세대주택, 아파트 및 근린생활시설 등이 소재하는 등 주위환경은 보통임 * 대상물건까지 차량의 진 · 출입 가능하며 인근에 노선 버스정류장 및 지하철역 등이 소재하는 등 교통상황은 보통임. *인접필지 등고평탄한 가장형 토지로서, 건부지로 이용중임. * 대상물건의 동측 및 남측으로 노폭 약 6 미터의 도로에 접함.
등기부 현황
건물
| 순위 | 접수일자 | 권리종류 | 권리자 | 채권금액 | 소멸여부 | 비고 |
|---|---|---|---|---|---|---|
| 1(갑4) | 2018-09-11 | 소유권이전(매매) | 이OO | 0 | ||
| 2(갑5) | 2023-02-01 | 압류 | 국OOOOOOOOOO | 0 | 소멸 | 말소기준등기 |
| 3(을3) | 2024-05-09 | 주택임차권(전부) | 김OO | 291,900,000 | 소멸 | 전입:2022.04.29확정:2022.03.23 |
| 4(갑6) | 2025-02-26 | 강제경매 | 주OOOOOOOOOOOOOOO | 302,944,215 | 소멸 | 2025타경102250 |
관련 문서 (PDF)
클릭하면 원본 파일이 열립니다