목록으로
최종 업데이트: 2026-04-22 13:21
2024타경3678
부동산
부동산임의경매
유찰
진행중
| 소재지 |
-
(경기도 가평군 상면 덕현리 93-6)
|
|---|---|
| 물건종류 | 주택 |
| 면적 |
토지: 0.00㎡ (0평)
건물: 149.32㎡ (45.17평)
|
| 현재 위치 | 경기도 가평군 상면 덕현리 93-6 |
| 소유자 / 채무자 | 이근남 / 연덕재 |
| 채권자 | 농협자산관리회사(양도인:농협은행) |
| 배당종기일 | 2024-09-20 |
감정가
271,743,200
최저가
65,246,000
보증금
6,524,600
입찰 진행 내역
| 회차/구분 | 입찰기일 | 최저매각가격 | 결과 |
|---|---|---|---|
| 1차 (진행) | 2025-11-11 | 271,743,200 | 유찰 |
| 2차 (진행) | 2025-12-16 | 190,220,000 | 유찰 |
| 3차 (진행) | 2026-01-22 | 133,154,000 | 유찰 |
| 4차 (진행) | 2026-03-12 | 93,208,000 | 유찰 |
| 5차 (진행) | 2026-04-16 | 65,246,000 |
임차인 현황
| 임차인명 | 점유여부 | 전입/확정/배당 | 보증금 / 차임 | 예상배당액 | 대항력 |
|---|---|---|---|---|---|
| 김진웅 | 주거용 1층 전부 |
전입: 2020-06-30
확정: 2020-06-30 배당: 2024-08-19 |
30,000,000
월 180,000
|
0 | 없음 |
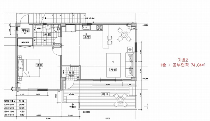
매각물건 현황
| 구분 | 순번 | 소재지 | 용도/구조/면적 | 감정가 | 비고 |
|---|---|---|---|---|---|
| 토지 | 토지 | 덕현리 93-6 | 수질보전특별대책지역,배출시설설치제한지역,자연보전권역,가축사육제...수질보전특별대책지역,배출시설설치제한지역,자연보전권역,가축사육제한구역,도시지역,자연녹지지역 / 대 410㎡ (124.03평) | 298,000 | 122,180,000원 |
| 건물 | 1 | 윗다원길 65-33 [덕현리 93-6]철근콘크리트구조 및 경량철골구조 평지붕(경량철골구조) | 1층 / 단독주택 | 74 | 1,280,000원 |
| 2 | 2층 | 단독주택 | 42.88㎡(12.97평) / 900,000원 | 38,592,000 | * 사용승인:2013.09.05 |
| 제시외건물 | 윗다원길 65-33 [덕현리 93-6]경량철골조 | 주택 / 32.4㎡(9.8평) | 500,000 | 16,200,000원 |
등기부 현황
건물
| 순위 | 접수일자 | 권리종류 | 권리자 | 채권금액 | 소멸여부 | 비고 |
|---|---|---|---|---|---|---|
| 1(갑1) | 2013-09-09 | 소유권보존 | 연OO | 0 | ||
| 2(을1) | 2013-09-16 | 근저당 | 농OOOOOOOOOOOOOOOOO | 108,000,000 | 소멸 | 말소기준등기확정채권양도전:농협은행 |
| 3(을2) | 2015-02-06 | 근저당 | 농OOOOOOO | 36,000,000 | 소멸 | |
| 4(갑4) | 2019-02-08 | 소유권이전(매매) | 이OO | 0 | ||
| 5(을5) | 2023-11-22 | 주택임차권(1층 전부) | 김OO | 30,000,000 | 소멸 | 전입:2020.06.30확정:2020.06.30차:금180,000원 |
| 6(갑5) | 2024-07-02 | 임의경매 | 농OOOOOOO | 101,887,383 | 소멸 | 2024타경3678 |
관련 문서 (PDF)
클릭하면 원본 파일이 열립니다