목록으로
최종 업데이트: 2026-04-22 13:21
2024타경5155
수원지방법원 안양지원 2024차522 지급명령 하루 보지 않기 X 부동산종합정보+토지이용계획+도시계획+개별공시지가+인근진행물건동일번지진행물건인근반경진행물건인근매각물건동일번지매각물건공매인근진행물건동산인근진행물건임대차보호법예상배당표입찰가분석표시세
부동산
부동산강제경매
유찰
진행중
| 소재지 |
-
(경기도 가평군 설악면 설곡리 261)
|
|---|---|
| 물건종류 | 주택 |
| 면적 |
토지: 0.00㎡ (0평)
건물: 142.74㎡ (43.18평)
|
| 현재 위치 | 경기도 가평군 설악면 설곡리 261 |
| 소유자 / 채무자 | 김학석 / 김학석 |
| 채권자 | 박봉규 |
| 배당종기일 | 2025-01-13 |
감정가
231,946,800
최저가
162,363,000
보증금
16,236,300
입찰 진행 내역
| 회차/구분 | 입찰기일 | 최저매각가격 | 결과 |
|---|---|---|---|
| 1차 (진행) | 2026-03-12 | 231,946,800 | 유찰 |
| 2차 (진행) | 2026-04-16 | 162,363,000 | |
| 3차 (진행) | 2026-05-21 | 113,654,000 | |
| 4차 (진행) | 2026-06-25 | 79,558,000 |
매각물건 현황
| 구분 | 순번 | 소재지 | 용도/구조/면적 | 감정가 | 비고 |
|---|---|---|---|---|---|
| 토지 | 토지 | 1 | 설곡리 261 / 자연보전권역,가축사육제한구역,생산관리지역 | 437 | 283,000원(100,100원) |
| 토지 | 2 | 설곡리 261-2 | 자연보전권역,가축사육제한구역,생산관리지역 / 답 155㎡ (46.89평) | 93,000 | 14,415,000원 |
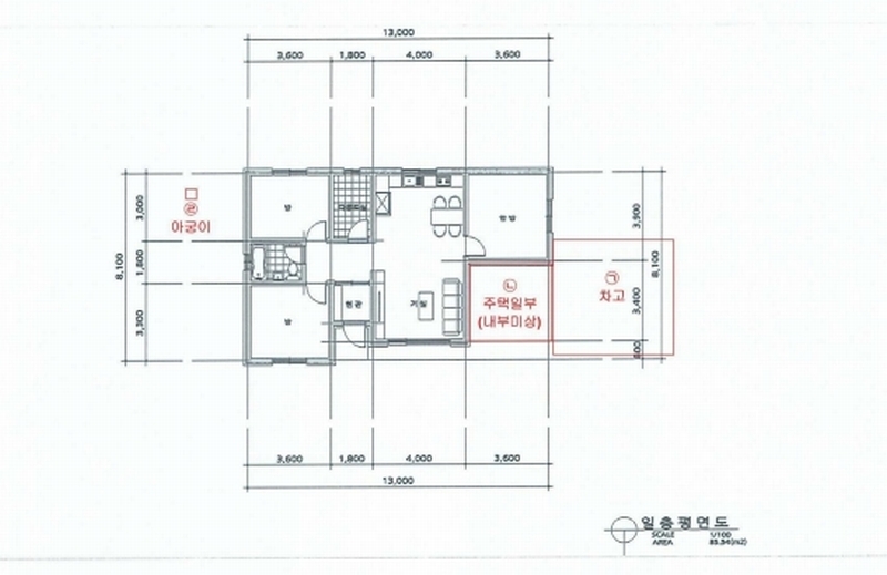
| 건물 | 봉미산안길 80-69 [설곡리 261]경량철골구조 경사지붕(경량철골구조) | 단층 | 단독주택 / 85.54㎡(25.88평) | 1,020,000 | 87,250,800원 |
| 제시외건물및기타 | 1 | 봉미산안길 80-69 [설곡리 261]파이프조 프라스틱지붕 등 1.파이프조 프라스틱지붕, 2.판넬조 판넬지붕, 4.브럭조 브럭지붕 | / 차고 | 45 | 30,000원 |
| 2 | 주택일부 | 12.2㎡(3.69평) / 300,000원 | 3,660,000 | 매각포함 | |
| 3 | 관정 1식 | / | 1,500,000 | 매각포함 | |
| 4 | 아궁이 1식 | / | 100,000 | 매각포함 |
등기부 현황
건물
| 순위 | 접수일자 | 권리종류 | 권리자 | 채권금액 | 소멸여부 | 비고 |
|---|---|---|---|---|---|---|
| 1(갑1) | 2018-03-23 | 소유권보존 | 김OO | 0 | ||
| 2(을1) | 2018-03-23 | 근저당 | 가OOOOOOOOO | 54,200,000 | 소멸 | 말소기준등기 |
| 3(을2) | 2018-03-23 | 근저당 | 가OOO | 42,000,000 | 소멸 | |
| 4(을7) | 2024-02-28 | 근저당 | (OOOOOO | 15,000,000 | 소멸 | |
| 5(갑4) | 2024-10-25 | 강제경매 | 박OO | 22,300,251 | 소멸 | 2024타경5155 |
관련 문서 (PDF)
클릭하면 원본 파일이 열립니다