목록으로
최종 업데이트: 2026-04-23 18:40
2025타경102406
서울중앙지방법원 본원 21계(02-530-1822)
부동산
부동산강제경매
유찰
진행중
| 소재지 |
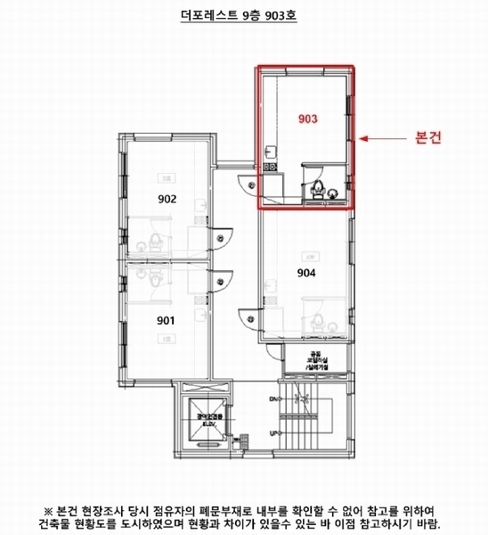
서울특별시 동작구 매봉로 25, 더포레스트 9층 903호
(서울특별시 동작구 상도1동 519-1)
|
|---|---|
| 물건종류 | 오피스텔 |
| 면적 |
토지: 11.26㎡ (3.41평)
건물: 16.40㎡ (4.96평)
|
| 현재 위치 | 서울특별시 동작구 매봉로 25, 더포레스트 9층 903호 |
| 소유자 / 채무자 | 문지우 / 문지우 |
| 채권자 | 주택도시보증공사 |
| 배당종기일 | 2025-06-04 |
감정가
224,000,000
최저가
73,400,000
보증금
7,340,000
입찰 진행 내역
| 회차/구분 | 입찰기일 | 최저매각가격 | 결과 |
|---|---|---|---|
| 1차 (진행) | 2025-12-02 | 224,000,000 | 유찰 |
| 2차 (진행) | 2026-01-06 | 179,200,000 | 유찰 |
| 3차 (진행) | 2026-02-10 | 143,360,000 | 유찰 |
| 4차 (진행) | 2026-03-17 | 114,688,000 | 유찰 |
| 5차 (진행) | 2026-04-21 | 91,750,000 | 유찰 |
| 6차 (진행) | 2026-06-02 | 73,400,000 | |
| 7차 (진행) | 2026-07-07 | 58,720,000 | |
| 8차 (진행) | 2026-08-11 | 46,976,000 |
임차인 현황
| 임차인명 | 점유여부 | 전입/확정/배당 | 보증금 / 차임 | 예상배당액 | 대항력 |
|---|---|---|---|---|---|
| 정민지 | 주거용 전부 |
전입: 2022-03-15
확정: 2022-02-23 배당: 2023-07-24 |
300,000,000
월 0
|
0 | 있음 |
| 주택도시보증공사(정민지) | 주거용 전부 |
전입: 2022-03-15
확정: 2022-02-23 배당: 2025-05-27 |
300,000,000
월 0
|
0 | 있음 |
매각물건 현황
| 구분 | 순번 | 소재지 | 용도/구조/면적 | 감정가 | 비고 |
|---|---|---|---|---|---|
| 건물 | 9층중 9층 | 21.12.10 | 16.4㎡(4.96평) / 오피스텔 | 89,600,000 |
현황 및 위치
* 본건은 서울특별시 동작구 상도1동 소재 ""강남초등학교"" 서측 인근에 위치하며, 주위는 오피스텔 및 아파트단지, 다세대주택, 근린생활시설 등이 혼재하는 지역임. * 본건까지 제반 차량의 진출입이 가능하며, 인근에 노선버스정류장 및 ""(지하철7호선)상도역""이 소재하는 등 제반 대중교통 이용편의 정도는 양호함. * 인접지 대비 등고평탄한 사다리형 토지로서, ""업무시설(오피스텔)"" 건부지로 이용중임. * 본건이 소재한 토지의 남동측으로 노폭 약 4미터 내외의 포장도로에 접함.
등기부 현황
건물
| 순위 | 접수일자 | 권리종류 | 권리자 | 채권금액 | 소멸여부 | 비고 |
|---|---|---|---|---|---|---|
| 1(갑2) | 2022-03-18 | 소유권이전(매매) | 문OO | 0 | 거래가액:300,000,000 | |
| 2(을3) | 2023-07-24 | 주택임차권(전부) | 정OO | 300,000,000 | 전입:2022.03.15확정:2022.02.23 | |
| 3(갑3) | 2023-09-15 | 압류 | 국OOOOOOOOO | 0 | 소멸 | 말소기준등기 |
| 4(갑4) | 2023-10-17 | 가압류 | 주OOOOOOO | 1,023,000,000 | 소멸 | 2023카단106172 |
| 5(갑5) | 2025-03-21 | 강제경매 | 주OOOOOOOOOOOOOOOOO | 300,000,000 | 소멸 | 2025타경102406 |
관련 문서 (PDF)
클릭하면 원본 파일이 열립니다