목록으로
최종 업데이트: 2026-04-25 21:34
2024타경6257
부동산
부동산임의경매
유찰
진행중
| 소재지 |
-
(경기도 가평군 조종면 신상리 509)
|
|---|---|
| 물건종류 | 주택 |
| 면적 |
토지: 0.00㎡ (0평)
건물: 179.25㎡ (54.22평)
|
| 현재 위치 | 경기도 가평군 조종면 신상리 509 |
| 소유자 / 채무자 | 두강개발(주) / 두강개발(주) |
| 채권자 | 화도새마을금고 |
| 배당종기일 | 2025-03-11 |
감정가
751,728,000
최저가
368,347,000
보증금
36,834,700
입찰 진행 내역
| 회차/구분 | 입찰기일 | 최저매각가격 | 결과 |
|---|---|---|---|
| 1차 (진행) | 2026-02-26 | 751,728,000 | 유찰 |
| 2차 (진행) | 2026-04-02 | 526,210,000 | 유찰 |
| 3차 (진행) | 2026-05-07 | 368,347,000 | |
| 4차 (진행) | 2026-06-11 | 257,843,000 |
매각물건 현황
| 구분 | 순번 | 소재지 | 용도/구조/면적 | 감정가 | 비고 |
|---|---|---|---|---|---|
| 토지 | 토지 | 1 | 신상리 509 / 준보전산지,자연보전권역,가축사육제한구역,계획관리지역 | 532 | 264,000원(73,600원) |
| 토지 | 2 | 신상리 509-2 | 준보전산지,자연보전권역,가축사육제한구역,계획관리지역 / 대 175㎡ (52.94평) | 264,000 | 46,200,000원 |
| 토지 | 3 | 신상리 509-5 | 준보전산지,자연보전권역,가축사육제한구역,계획관리지역 / 대 63㎡ (19.06평) | 264,000 | 16,632,000원 |
| 토지 | 4 | 신상리 509-6 | 자연보전권역,가축사육제한구역,계획관리지역 / 도로 5㎡ (1.51평) | 87,000 | 435,000원 |
| 토지 | 5 | 신상리 509-7 | 자연보전권역,가축사육제한구역,계획관리지역 / 도로 10㎡ (3.03평) | 87,000 | 870,000원 |
| 토지 | 6 | 신상리 509-12 | 자연보전권역,가축사육제한구역,계획관리지역 / 도로 3㎡ (0.91평) | 87,000 | 261,000원 |
| 토지 | 7 | 신상리 509-13 | 자연보전권역,가축사육제한구역,계획관리지역 / 도로 22㎡ (6.66평) | 87,000 | 1,914,000원 |
| 토지 | 8 | 신상리 509-14 | 준보전산지,자연보전권역,가축사육제한구역,계획관리지역 / 대 160㎡ (48.4평) | 264,000 | 42,240,000원 |
| 토지 | 9 | 신상리 509-15 | 자연보전권역,가축사육제한구역,계획관리지역 / 도로 3㎡ (0.91평) | 87,000 | 261,000원 |
| 토지 | 10 | 신상리 509-22 | 준보전산지,자연보전권역,가축사육제한구역,계획관리지역 / 대 14㎡ (4.24평) | 264,000 | 3,696,000원 |
| 토지 | 11 | 신상리 509-26 | 자연보전권역,가축사육제한구역,계획관리지역 / 도로 8㎡ (2.42평) | 87,000 | 696,000원 |
| 토지 | 12 | 신상리 509-51 | 준보전산지,자연보전권역,가축사육제한구역,계획관리지역 / 도로 50㎡ (15.13평) | 87,000 | 4,350,000원 |
| 토지 | 13 | 신상리 509-52 | 준보전산지,자연보전권역,가축사육제한구역,계획관리지역 / 도로 6㎡ (1.82평) | 87,000 | 522,000원 |
| 토지 | 14 | 신상리 509-53 | 준보전산지,자연보전권역,가축사육제한구역,계획관리지역 / 대 143㎡ (43.26평) | 264,000 | 37,752,000원 |
| 토지 | 15 | 신상리 509-54 | 준보전산지,자연보전권역,가축사육제한구역,계획관리지역 / 대 104㎡ (31.46평) | 264,000 | 27,456,000원 |
| 토지 | 16 | 신상리 509-55 | 준보전산지,자연보전권역,가축사육제한구역,계획관리지역 / 임야 28㎡ (8.47평) | 87,000 | 2,436,000원 |
| 토지 | 17 | 신상리 509-56 | 준보전산지,자연보전권역,가축사육제한구역,계획관리지역 / 임야 4㎡ (1.21평) | 87,000 | 348,000원 |
| 토지 | 18 | 신상리 509-57 | 준보전산지,자연보전권역,가축사육제한구역,계획관리지역 / 대 41㎡ (12.4평) | 264,000 | 10,824,000원 |
| 토지 | 19 | 신상리 509-58 | 준보전산지,자연보전권역,가축사육제한구역,계획관리지역 / 대 8㎡ (2.42평) | 264,000 | 2,112,000원 |
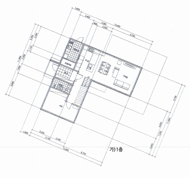
| 건물 | 1 | 운악청계로491번길 156-19 [신상리 509외 8필지]일반목구조 일반목구조(경사지붕) | 1층 / 단독주택 | 99 | 2,300,000원 |
| 2 | 2층 | 단독주택 | 79.93㎡(24.18평) / 2,300,000원 | 183,839,000 | * 사용승인:2024.04.01 |
현황 및 위치
* 경기도 가평군 조종면 신상리 소재 신상2리 새마을회관 북서측 근거리에 위지하며, 주위는 단독주택 및 농경지 등이 혼재하는 지역으로서, 제반 주위환경은 보통임. * 대상물건까지 차량의 진출입이 용이하며, 인근 도로변으로 버스정류장이 소재하는 등 제반 교통상황은 보통임. * 1-3,8,10,14,15,18,19) 완경사 지대내 자제지반 평탄히 조성된 9필 일단의 부정형의 토지로서, 단독주택 건부지로 이용중임. 4-7,9,11-13,16,17) 완경사 지대내 위치한 부정형 및 사다리형의 토지로서, 현황 도로임. * 1-3,8,10,14,15,18,19) 9필 일단의 토지로서, 북서측 및 북측, 동측으로 현황 도로와 접함. 4-7,9,11-13,16,17) 현황 도로임.
참고사항
* 일괄매각 * 토4,5,6,7,9,11,12,13,16,17) 지분매각 * 토1-3,8,10,14,15,18,19) 9필 일단의 부정형의 토지로서 단독주택건부지로 이용 중임- 일반건축물대장상 관련지번으로서 대상물건 상호간에 용도상 불가분의 관계인 바, 일단지로 감정평가 하였음. * 토4-7,9,11-13,16,17) 현황도로임(단, 토16.17.의 공부상 지목은 임야임) * 본건 건물 공부(일반건축물대장)상 용도는 단독주택임
등기부 현황
건물
| 순위 | 접수일자 | 권리종류 | 권리자 | 채권금액 | 소멸여부 | 비고 |
|---|---|---|---|---|---|---|
| 1(갑1) | 2024-12-24 | 소유권보존 | 두OOOOOO | 0 | 부동산임의경매 등기촉탁으로 인하여 | |
| 2(갑2) | 2024-12-24 | 임의경매 | 화OOOOOO | 542,037,801 | 소멸 | 말소기준등기2024타경6257 |
| 3(을1) | 2025-01-06 | 근저당 | 화OOOOOO | 84,000,000 | 소멸 | |
| 4(을2) | 2025-01-06 | 근저당 | 화OOOOOO | 96,000,000 | 소멸 | |
| 5(을3) | 2025-01-06 | 근저당 | 화OOOOOO | 420,000,000 | 소멸 | |
| 6(갑3) | 2025-09-26 | 압류 | 가OO | 0 | 소멸 | |
| 7(을4) | 2026-01-29 | 근저당 | 윤OO | 90,000,000 | 소멸 |
관련 문서 (PDF)
클릭하면 원본 파일이 열립니다