목록으로
최종 업데이트: 2026-04-25 21:41
2024타경85144
서울중앙지방법원 2024차전190043 지급명령 하루 보지 않기 X 부동산종합정보+토지이용계획+도시계획+개별공시지가+인근진행물건동일번지진행물건인근반경진행물건인근매각물건동일번지매각물건공매인근진행물건동산인근진행물건임대차보호법예상배당표입찰가분석표시세
부동산
부동산강제경매
유찰
진행중
| 소재지 |
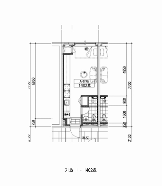
경기도 구리시 안골로97번길 17-6, 구리더케이타워 14층 1402호
(경기도 구리시 수택동 419-21)
|
|---|---|
| 물건종류 | 오피스텔[계약12평형] |
| 면적 |
토지: 4.15㎡ (1.26평)
건물: 22.35㎡ (6.76평)
|
| 현재 위치 | 경기도 구리시 안골로97번길 17-6, 구리더케이타워 14층 1402호 |
| 소유자 / 채무자 | 소진숙 / 소진숙 |
| 채권자 | 주택도시보증공사 |
| 배당종기일 | 2025-01-21 |
감정가
155,000,000
최저가
18,236,000
보증금
1,823,600
입찰 진행 내역
| 회차/구분 | 입찰기일 | 최저매각가격 | 결과 |
|---|---|---|---|
| 1차 (진행) | 2025-09-25 | 155,000,000 | 유찰 |
| 2차 (진행) | 2025-10-30 | 108,500,000 | 유찰 |
| 3차 (진행) | 2025-12-04 | 75,950,000 | 유찰 |
| 4차 (진행) | 2026-01-08 | 53,165,000 | 유찰 |
| 5차 (진행) | 2026-02-26 | 37,216,000 | 유찰 |
| 6차 (진행) | 2026-04-02 | 26,051,000 | 유찰 |
| 7차 (진행) | 2026-05-07 | 18,236,000 | |
| 8차 (진행) | 2026-06-11 | 12,765,000 |
임차인 현황
| 임차인명 | 점유여부 | 전입/확정/배당 | 보증금 / 차임 | 예상배당액 | 대항력 |
|---|---|---|---|---|---|
| 김민경 | 주거용 전부 |
전입: 2021-04-30
확정: 2021-04-19 배당: 2023-05-10 |
164,300,000
월 0
|
0 | 있음 |
| 주택도시보증공사 | 주거용 전부 |
전입: 2021-04-30
확정: 2021-04-19 배당: 2024-10-31 |
164,300,000
월 0
|
0 | 있음 |
매각물건 현황
| 구분 | 순번 | 소재지 | 용도/구조/면적 | 감정가 | 비고 |
|---|---|---|---|---|---|
| 건물 | 15층중 14층 | 20.09.16 | 22.35㎡(6.76평)[계약12평] / 오피스텔 | 108,500,000 |
현황 및 위치
* 본건은 경기도 구리시 수택동 소재 "구리더케이타워" 내에 위치하며, 주변은 근린생활시설, 아파트단지, 단독주택 및 빌라단지 등이 혼재하는바 주거지로서의 제반입지여건은 대체로 무난시 됨 * 본건까지 차량출입 가능하며 인근에 버스정류장 등이 위치하여 제반 교통사정은 대체로 무난시 됨 * 대체로 자체지반 평탄한 부정형의 토지로서 오피스텔 건부지로 이용중임 * 본건 서측 및 남측으로 각각 노폭 약 4 미터 내외의 도로에 접함
참고사항
* 외필지 : 수택동 419-22, 419-24, 419-26 * 오피스텔로 이용 중이며, 참부된 내부도면은 본건 부동산의 건축물대장상 도면에 의한 것으로 상세내역은 현황과 다소 다를 수 있음(감정평가서 참조)
등기부 현황
건물
| 순위 | 접수일자 | 권리종류 | 권리자 | 채권금액 | 소멸여부 | 비고 |
|---|---|---|---|---|---|---|
| 1(갑5) | 2021-04-30 | 공유자전원지분전부이전 | 소OO | 0 | 매매, 거래가액 금164,330,000원 | |
| 2(을1) | 2023-05-10 | 주택임차권(전부) | 김OO | 164,300,000 | 전입:2021.04.30확정:2021.04.19 | |
| 3(갑8) | 2024-11-01 | 강제경매 | 주OOOOOOOOOOOOOOOOO | 164,300,000 | 소멸 | 말소기준등기2024타경85144 |
관련 문서 (PDF)
클릭하면 원본 파일이 열립니다