메뉴
목록으로 최종 업데이트: 2026-04-25 21:46

2025타경71280

서울중앙지방법원 2024차전192106 지급명령 주의사항 ▶ 매각허가에 의하여 소멸되지 아니하는 것 - 매수인에게 대항할 수 있는 을구 5번 임차권등기(임대차보증금 160,000,000원, 전입일자 2021.02.08., 확정일자 2021.02.08.)가 있으므로 배당에서 전액 변제되지 않으면 잔액을 매수인이 인수함 ▶경매신청채권자인 주택도시보증공사(양도전:임차인 고강현)로부터 2025.12.12.자로 "매수인에 대한 잔존 임대차보증금반환청구권을 포가히고 임차권등기를 말소하는 것에 동의"한다는 내용의 확약서가 제출됨 하루 보지 않기 X 부동산종합정보+토지이용계획+도시계획+개별공시지가+공동주택가격+인근진행물건동일번지진행물건인근반경진행물건인근매각물건동일번지매각물건공매인근진행물건동산인근진행물건임대차보호법예상배당표입찰가분석표시세

부동산 부동산강제경매 취하/변경 진행중
서울중앙지방법원 2024차전192106 지급명령 주의사항 ▶ 매각허가에 의하여 소멸되지 아니하는 것 - 매수인에게 대항할 수 있는 을구 5번 임차권등기(임대차보증금 160,000,000원, 전입일자 2021.02.08., 확정일자 2021.02.08.)가 있으므로 배당에서 전액 변제되지 않으면 잔액을 매수인이 인수함 ▶경매신청채권자인 주택도시보증공사(양도전:임차인 고강현)로부터 2025.12.12.자로 "매수인에 대한 잔존 임대차보증금반환청구권을 포가히고 임차권등기를 말소하는 것에 동의"한다는 내용의 확약서가 제출됨 하루 보지 않기 X 부동산종합정보+토지이용계획+도시계획+개별공시지가+공동주택가격+인근진행물건동일번지진행물건인근반경진행물건인근매각물건동일번지매각물건공매인근진행물건동산인근진행물건임대차보호법예상배당표입찰가분석표시세 매각기일 2026-05-07 00:00:00 사건번호 2025타경71280 최근 확인 2026-04-25 21:46 다음 확인 2026-05-08 09:00
소재지
경기도 남양주시 화도읍 묵현로76번길 34, 공동주택 3층 301호
(경기도 남양주시 화도읍 묵현리 119-21)
물건종류 다세대(빌라)[공급27평형]
면적
토지: 51.87㎡ (15.69평)
건물: 76.69㎡ (23.2평)
현재 위치 경기도 남양주시 화도읍 묵현로76번길 34, 공동주택 3층 301호
소유자 / 채무자 이우영 / 이우영
채권자 주택도시보증공사
배당종기일 2025-05-13
감정가
251,000,000
최저가
86,093,000
보증금
8,609,300
입찰 진행 내역
회차/구분 입찰기일 최저매각가격 결과
1차 (진행) 2026-01-08 251,000,000 유찰
2차 (진행) 2026-02-26 175,700,000 유찰
3차 (진행) 2026-04-02 122,990,000 유찰
(진행) 2026-05-07 86,093,000 변경
진행 메모
본사건은 변경 되었으며 현재 매각기일이 지정되지 않았습니다.
임차인 현황
임차인명 점유여부 전입/확정/배당 보증금 / 차임 예상배당액 대항력
고강현 주거용 전부
전입: 2021-02-08
확정: 2021-02-08
배당: 2025-03-04
160,000,000
월 50,000
0 있음
김선규 주거용
전입: 2023-12-26
확정: -
배당: -
0
월 0
0 -
주택도시보증공사 주거용 전부
전입: 2021-02-08
확정: 2021-02-08
배당: 2025-02-20
160,000,000
월 50,000
0 있음
매각물건 현황
구분 순번 소재지 용도/구조/면적 감정가 비고
건물 5층중 3층 15.08.05 76.69㎡(23.2평)[공급27평] / 주거용 251,000,000 * 철근콘크리트구조 3층(하층)41.03㎡ 4층(상층)35.66㎡
현황 및 위치
* 본건은 경기도 남양주시 화도읍 묵현리 소재 "화도수동 행정복지센터" 북서측 근거리에 위치하며, 주위는 단독 및 다세대주택, 중소규모의 근린생활시설 등이 소재함. * 본건까지 차량접근이 가능하며, 인근에 버스정류장이 소재하는 바 교통상황은 보통시됨. * 사다리 평지의 토지로서 공동주택 건부지로 이용중임. * 노폭 약 6m 내외의 도로에 접함.
참고사항
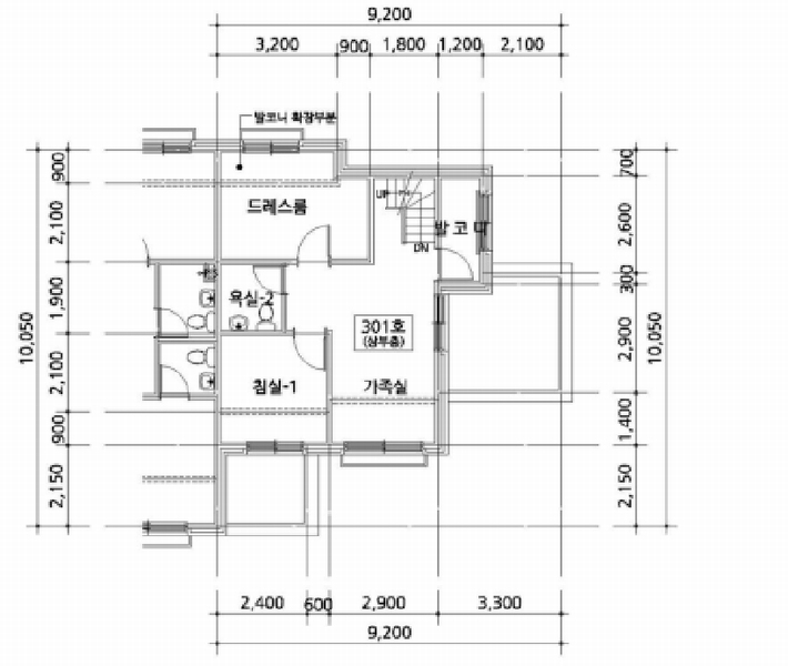
* 다세대주택으로 이용 중임(세부 이용현황은 감정평가서 후첨 "내부구조도" 참조) * 외벽에 104 기재되어 있음(현황조사보고서 참조)
등기부 현황
건물
순위 접수일자 권리종류 권리자 채권금액 소멸여부 비고
1(갑2) 2015-11-10 소유권이전(매매) 이OOOOOO 0 각 1/2
2(갑3) 2020-01-16 김미선지분전부이전 이OO 0 재산분할, 1/2
3(을5) 2023-02-21 주택임차권(전부) 고OO 160,000,000 소멸 전입:2021.02.08확정:2021.02.08차: 금50,000원
4(갑6) 2025-02-24 강제경매 주OOOOOOOOOOOOOOOOO 175,986,848 소멸 말소기준등기2025타경71280
관련 문서 (PDF) 클릭하면 원본 파일이 열립니다