목록으로
최종 업데이트: 2026-04-22 17:52
2024타경569043
인천지방법원 본원 12계(032-860-1612)
부동산
부동산임의경매
매각
진행중
| 소재지 |
-
(인천광역시 서구 청라동 9-10)
|
|---|---|
| 물건종류 | 주택 |
| 면적 |
토지: 0.00㎡ (0평)
건물: 357.44㎡ (108.13평)
|
| 현재 위치 | 인천광역시 서구 청라동 9-10 |
| 소유자 / 채무자 | (주)씨크릿홈즈 / (주)씨크릿홈즈 |
| 채권자 | 북인천새마을금고 |
| 배당종기일 | 2025-01-17 |
감정가
1,037,377,040
최저가
355,821,000
보증금
35,582,100
진행 상태 / 매각 결과
매각
completed = false
매각허가결정
| 상태 코드 | 2 | 상태 텍스트 | 매각허가결정 |
|---|---|---|---|
| 매각가 | 400,000,000원 | 매각가율 | 0% |
| 입찰 수 | 2 | 매수인 | 인천 박민우 |
| 차순위 입찰가 | 377,555,505원 | 매각허가 결정 | 매각허가결정 |
| 매각허가 결정일 | 2026-03-12 | 대금 지급기한 | - |
| 대금 지급상태 | - | 배당기일 | - |
| 배당 종결일 | - | 다음 확인 예정 | 2026-04-23 09:00 |
입찰 진행 내역
| 회차/구분 | 입찰기일 | 최저매각가격 | 결과 |
|---|---|---|---|
| (진행) | 2025-07-18 | 1,037,377,040 | 변경 |
| 1차 (진행) | 2025-11-07 | 1,037,377,040 | 유찰 |
| 2차 (진행) | 2025-12-09 | 726,164,000 | 유찰 |
| 3차 (진행) | 2026-01-22 | 508,315,000 | 유찰 |
| 4차 (진행) | 2026-03-05 | 355,821,000 |
진행 메모
매각 : 400,000,000 원 (38.56%)
(입찰 2 명,매수인:인천 박민우 / 차순위금액 377,555,505원)
매각결정기일 : 2026.03.12 - 매각허가결정
대금지급기한 : 2026.04.10
대금납부 2026.04.10 / 배당기일 2026.05.20
임차인 현황
| 임차인명 | 점유여부 | 전입/확정/배당 | 보증금 / 차임 | 예상배당액 | 대항력 |
|---|---|---|---|---|---|
| 최용호 | 주거용 |
전입: -
확정: - 배당: - |
0
월 0
|
0 | 없음 |
매각물건 현황
| 구분 | 순번 | 소재지 | 용도/구조/면적 | 감정가 | 비고 |
|---|---|---|---|---|---|
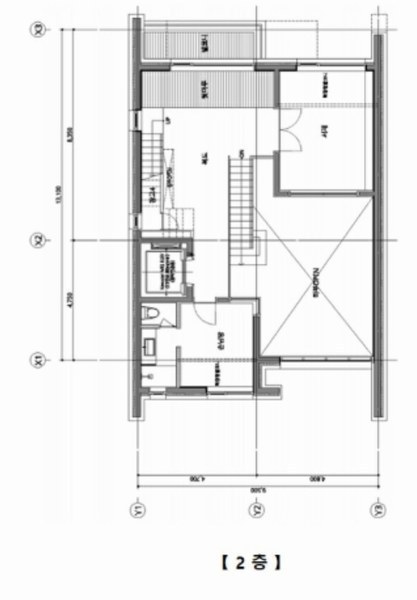
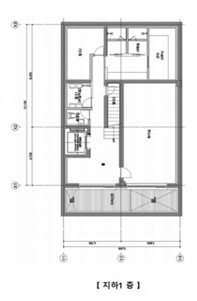
| 건물 | 1 | 청라동 9-10철근콘크리트조 스라브평지붕 | 지하1층 / 단독주택 | 123 | 2,646,000원 |
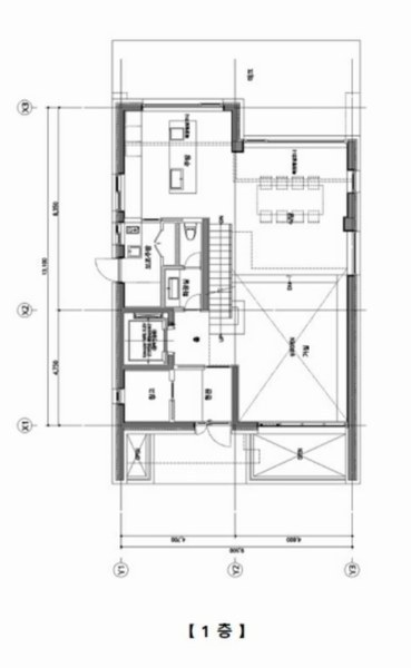
| 2 | 1층 | 단독주택 | 100.1㎡(30.28평) / 3,038,000원 | 304,103,800 | * 사용승인:2023.08.10 |
| 3 | 2층 | 단독주택 | 62.51㎡(18.91평) / 3,038,000원 | 189,905,380 | * 사용승인:2023.08.10 |
| 4 | 3층 | 단독주택 | 71.04㎡(21.49평) / 3,038,000원 | 215,819,520 | * 사용승인:2023.08.10* 등기부상 70.94㎡ |
현황 및 위치
* 본건은 인천관역시 서구 청라동 소재 "베어즈베스트 청라CC" 내에 위치함.
참고사항
* 건물만 매각. * 등기사항증명서와 일반건축물대장 상 지하1층과 지상 3층의 면적이 상이하여 일반건축물대장을 기준으로 평가함
전문가 코멘트
** 건물만 경매되는 물건입니다. 따라서 법정지상권이나 건물등기 있는 차지권, 혹은 낙찰 후 토지매입, 임차 등의 방법으로 토지 사용권을 확보하여 건물의 안정적인 유지가 가능한지가 중요한 물건입니다. 일반론에 대한 추가적인 내용은 PC버전은 등기부 요약란 아래의 유치권/법정지상권 버튼을 눌러 참고하시고 모바일버전의 경우 자료실의 관련자료를 참고하시기 바랍니다. 본 건에서 구체적으로 검토하여야 할 사항은 다음과 같습니다. == 본건의 경우 토지등기부와 건물등기부를 바탕으로 판단하면 소유자가 일치한 기간이 없어서 법정지상권의 성립 가능성이 없는 물건입니다. 따라서 토지의 매입이나 임차( 신규 임차나 기존의 토지사용권을 승계하는 방법이 있습니다.- 근저당의 담보 범위에는 종물인 유효한 토지사용권도 포함됩니다. ) 등 별도의 토지사용권을 확보할 가능성이 있어야 입찰이 가능한 물건입니다.
등기부 현황
건물
| 순위 | 접수일자 | 권리종류 | 권리자 | 채권금액 | 소멸여부 | 비고 |
|---|---|---|---|---|---|---|
| 1(갑1) | 2022-06-08 | 소유권보존 | (OOOOOOO | 0 | 강제경매개시결정등기의 촉탁으로 인하여 | |
| 2(을1) | 2022-09-01 | 근저당 | 북OOOOOOO | 2,904,000,000 | 소멸 | 말소기준등기 |
| 3(갑4) | 2024-10-28 | 임의경매 | 북OOOOOOO | 2,649,569,820 | 소멸 | 2024타경569043 |
관련 문서 (PDF)
클릭하면 원본 파일이 열립니다