목록으로
최종 업데이트: 2026-04-22 13:21
2025타경926
울산지방법원 본원 5계(052-216-8265)
부동산
부동산임의경매
유찰
진행중
| 소재지 |
-
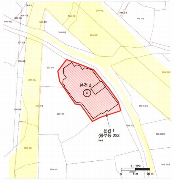
(경상남도 양산시 중부동 283)
|
|---|---|
| 물건종류 | 다가구(원룸등) |
| 면적 |
토지: 0.00㎡ (0평)
건물: 617.48㎡ (186.79평)
|
| 현재 위치 | 경상남도 양산시 중부동 283 |
| 소유자 / 채무자 | 파산채무자 양숙희의 파산관재인 이태원 외 1명 / 파산채무자 양숙희의 파산관재인 이태원 |
| 채권자 | 양산농협 |
| 배당종기일 | 2025-12-31 |
감정가
1,153,995,600
최저가
565,458,000
보증금
56,545,800
입찰 진행 내역
| 회차/구분 | 입찰기일 | 최저매각가격 | 결과 |
|---|---|---|---|
| 1차 (진행) | 2026-03-05 | 1,153,995,600 | 유찰 |
| 2차 (진행) | 2026-04-08 | 807,797,000 | 유찰 |
| 3차 (진행) | 2026-05-14 | 565,458,000 | |
| 4차 (진행) | 2026-06-17 | 395,821,000 |
임차인 현황
| 임차인명 | 점유여부 | 전입/확정/배당 | 보증금 / 차임 | 예상배당액 | 대항력 |
|---|---|---|---|---|---|
| CUISONGCHUN(최송춘) | 주거용 3층 303호 (40㎡) |
전입: 2021-03-22
확정: 2021-03-22 배당: 2025-04-24 |
40,000,000
월 0
|
0 | 없음 |
| XUJUNTIAN(쉬전텐) | 주거용 4층 403호 (35㎡) |
전입: -
확정: 2024-09-02 배당: 2025-04-08 |
40,000,000
월 0
|
0 | - |
| 김경운 | 주거용 4층 402호 (39㎡) |
전입: 2015-09-21
확정: 2015-09-21 배당: 2025-04-21 |
45,000,000
월 0
|
0 | 없음 |
| 김광희 | 주거용 3층 305호 (40㎡) |
전입: 2021-09-29
확정: 2021-09-29 배당: 2025-04-03 |
45,000,000
월 0
|
0 | 없음 |
| 김봉윤 | 주거용 |
전입: 2022-06-02
확정: - 배당: - |
0
월 0
|
0 | 없음 |
| 김소연 | 주거용 3층 302호 (30.12 ㎡) |
전입: 2020-04-07
확정: - 배당: - |
0
월 0
|
0 | 없음 |
| 김정희 | 주거용 3층 가칭304호 |
전입: 2018-05-17
확정: 2024-08-30 배당: 2025-04-07 |
45,000,000
월 0
|
0 | 없음 |
| 박종철 | 주거용 2층 205호 (30㎡) |
전입: 2021-07-29
확정: 2024-08-27 배당: 2025-05-15 |
2,000,000
월 300,000
|
0 | 없음 |
| 성태기 | 주거용 |
전입: 2017-03-16
확정: - 배당: - |
0
월 0
|
0 | 없음 |
| 손은서 | 주거용 3층 304호 (40㎡) |
전입: 2018-05-17
확정: - 배당: - |
0
월 0
|
0 | 없음 |
| 오수향 | 주거용 |
전입: 2018-11-01
확정: - 배당: - |
0
월 0
|
0 | 없음 |
| 이경찬 | 주거용 202호 |
전입: 2022-06-27
확정: - 배당: - |
0
월 0
|
0 | 없음 |
| 장세황 | 주거용 |
전입: 2014-05-29
확정: - 배당: - |
0
월 0
|
0 | 없음 |
| 장필승 | 주거용 3층 301호 (30㎡) |
전입: 2024-01-10
확정: 2024-08-30 배당: 2025-04-21 |
45,000,000
월 0
|
0 | 없음 |
| 정유진 | 주거용 404호 |
전입: 2022-06-29
확정: - 배당: - |
0
월 0
|
0 | 없음 |
| 한국토지주택공사(401호) | 주거용 4층 401호 |
전입: 2022-04-13
확정: 2022-05-12 배당: 2024-06-07 |
60,000,000
월 0
|
0 | 없음 |
| 한국토지주택공사(입주자김소연) | 주거용 3층 302호 |
전입: 2020-04-07
확정: 2020-04-13 배당: 2025-04-11 |
48,000,000
월 0
|
0 | 없음 |
| 한국토지주택공사(입주자황영세) | 주거용 2층 204호 (50㎡) |
전입: 2022-05-02
확정: 2022-05-04 배당: 2025-04-15 |
40,000,000
월 0
|
0 | 없음 |
| 황영세 | 주거용 2층 204호 (50㎡) |
전입: 2022-05-02
확정: - 배당: - |
0
월 0
|
0 | 없음 |
매각물건 현황
| 구분 | 순번 | 소재지 | 용도/구조/면적 | 감정가 | 비고 |
|---|---|---|---|---|---|
| 토지 | 토지 | 중부동 283 | 역사문화환경보존지역,가축사육제한구역,가로구역별 최고높이 제한지역,일반상업지역 / 대 251㎡ (75.93평) | 2,020,000 | 507,020,000원 |
| 건물 | 1 | 삼일로 116-4 [중부동 283]철근콘크리트구조 (철근)콘크리트지붕 | 1층 / 계단실 | 25 | 1,110,000원 |
| 2 | 2층 | 단독주택(다가구) 6개호 | 171.11㎡(51.76평) / 1,110,000원 | 189,932,100 | * 사용승인:2011.10.10* 도시가스에 의한 개별난방설비 |
| 3 | 3층 | 단독주택(다가구) 5개호 | 174.76㎡(52.86평) / 1,110,000원 | 193,983,600 | * 사용승인:2011.10.10* 도시가스에 의한 개별난방설비 |
| 4 | 4층 | 단독주택(다가구) 5개호 | 172.26㎡(52.11평) / 1,110,000원 | 191,208,600 | * 사용승인:2011.10.10* 도시가스에 의한 개별난방설비 |
| 제시외건물및기타 | 1 | 삼일로 116-4 [중부동 283]철근콘크리트구조 철근콘크리트 지붕 | 1층 / 창고 | 4 | 444,000원 |
| 2 | 2층 | 발코니 | 25.9㎡(7.83평) / 666,000원 | 17,249,400 | 매각포함 |
| 3 | 3층 | 발코니 | 19.1㎡(5.78평) / 666,000원 | 12,720,600 | 매각포함 |
| 4 | 4층 | 발코니 | 23㎡(6.96평) / 666,000원 | 15,318,000 | 매각포함 |
| 5 | 옥상 | 계단실 및 창고 | 18.7㎡(5.66평) / 666,000원 | 12,454,200 | 매각포함 |
| 6 | 동백, 철죽, 사청 등 약 10여주 | / | 1,000,000 | 매각포함 |
현황 및 위치
* 본건은 경상남도 양산시 북부동 소재 ""양산초등학교"" 남서측 인근에 위치하며, 주위는 단독주택, 다가구주택, 아파트 및 각종의 근린생활시설 등이 혼재하고 있어 제반 주위환경은 보통임. * 본건까지 차량접근 가능하며, 인근에 노선버스정류장이 소재하는 등 일반적인 교통상황은 보통임. * 부정형 평지로 단독(다가구)주택 건부지로 이용중임. * 본건 북동측으로 폭 약 4미터 내외의 포장도로에 접하며, 당해 도로는 폭 약15미터 내외의 주간선도로와 연결되어 있음.
참고사항
* 일괄매각. 제시외 건물 및 수목 포함 * 토1) 지상에 매각대상아닌 콘테이너 박스 1동 있음
등기부 현황
건물
| 순위 | 접수일자 | 권리종류 | 권리자 | 채권금액 | 소멸여부 | 비고 |
|---|---|---|---|---|---|---|
| 1(갑1) | 2011-10-11 | 소유권보존 | 전OO | 0 | ||
| 2(을1) | 2011-10-11 | 근저당 | 양OOOOOOOOOO | 168,000,000 | 소멸 | 말소기준등기상호변경전:동양산농업협동조합 |
| 3(을2) | 2011-10-11 | 근저당 | 양OOO | 144,000,000 | 소멸 | |
| 4(갑4) | 2017-01-26 | 소유권이전(매매) | 최OOOOOO | 0 | 각 1/2 | |
| 5(을24) | 2018-05-17 | 전세권(3층 가칭304호) | 김OO | 45,000,000 | 소멸 | 존속기간:2018.05.17~2020.05.16 |
| 6(을28) | 2024-01-16 | 근저당 | 오OO | 55,000,000 | 소멸 | |
| 7(을29) | 2024-06-07 | 주택임차권(4층 401호) | 한OOOOOOO | 60,000,000 | 소멸 | 전입:2022.04.13확정:2022.05.12 |
| 8(갑5) | 2024-11-04 | 최인수지분가압류 | 서OOOOOO | 5,328,000 | 소멸 | 2024카단55620 |
| 11(갑8) | 2025-02-27 | 임의경매 | 양OOO | 261,422,600 | 소멸 | 2025타경926 |
| 12(갑9) | 2025-03-18 | 최인수지분압류 | 국OOOOOOO | 0 | 소멸 | |
| 13(을30) | 2025-03-25 | 주택임차권(3층302호) | 한OOOOOOO | 48,000,000 | 소멸 | 전입:2020.04.07확정:2020.04.13 |
관련 문서 (PDF)
클릭하면 원본 파일이 열립니다