목록으로
최종 업데이트: 2026-04-26 10:43
2025타경507894
인천지방법원 본원 12계(032-860-1612)
부동산
부동산강제경매
유찰
진행중
| 소재지 |
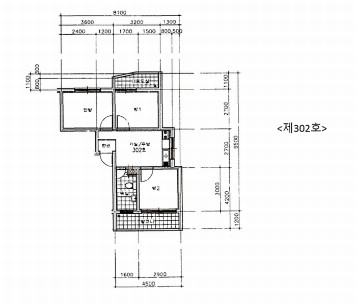
인천광역시 미추홀구 수봉북로12번길 70-3, 우성아트빌 3층 302호
(인천광역시 미추홀구 숭의동 3-73)
|
|---|---|
| 물건종류 | 다세대(빌라)[공급16평형] |
| 면적 |
토지: 19.74㎡ (5.97평)
건물: 47.84㎡ (14.47평)
|
| 현재 위치 | 인천광역시 미추홀구 수봉북로12번길 70-3, 우성아트빌 3층 302호 |
| 소유자 / 채무자 | 곽보경 / 곽보경 |
| 채권자 | 조용완 |
| 배당종기일 | 2025-05-23 |
감정가
117,000,000
최저가
57,330,000
보증금
5,733,000
입찰 진행 내역
| 회차/구분 | 입찰기일 | 최저매각가격 | 결과 |
|---|---|---|---|
| 1차 (진행) | 2026-03-05 | 117,000,000 | 유찰 |
| 2차 (진행) | 2026-04-07 | 81,900,000 | 유찰 |
| 3차 (진행) | 2026-05-08 | 57,330,000 | |
| 4차 (진행) | 2026-06-15 | 40,131,000 |
임차인 현황
| 임차인명 | 점유여부 | 전입/확정/배당 | 보증금 / 차임 | 예상배당액 | 대항력 |
|---|---|---|---|---|---|
| 조용완 | 주거용 전부 |
전입: 2020-07-31
확정: 2020-07-08 배당: 2025-05-21 |
105,000,000
월 0
|
0 | 있음 |
매각물건 현황
| 구분 | 순번 | 소재지 | 용도/구조/면적 | 감정가 | 비고 |
|---|---|---|---|---|---|
| 건물 | 4층중 3층 | 01.11.29 | 47.84㎡(14.47평)[공급16평] / 주거용 | 46,800,000 |
현황 및 위치
* 본건은 인천광역시 미추홀구 숭의동 소재 "전철1호선 제물포역" 남동측 인근에 위치하며, 주위는 근린생활시설, 단독주택, 다세대주택, 아파트 등이 혼재하는 지대임. * 본건까지 차량 접근이 가능하고 인근에 버스정류장, 제물포역 등이 소재하여 제반 대중교통 여건은 보통임. * 대체로 사다리형인 토지로서 인접토지 및 도로와 등고평탄하며, 현황 공동주택 등의 건부지로 이용 중임. * 본건의 출입은 본건 동측 포장도로를 이용함.
참고사항
* 외벽에 "우성아트빌"로 표시되어 있음 * 감평서상 건물명 : 우세아트빌
전문가 코멘트
☞ 본건은 소액임차인의 최우선변제금 지급기준이 되는 담보물권이 없어 배당시점을 기준으로 소액임차인을 판단하였으니 참고하시기 바랍니다.
등기부 현황
건물
| 순위 | 접수일자 | 권리종류 | 권리자 | 채권금액 | 소멸여부 | 비고 |
|---|---|---|---|---|---|---|
| 1(갑10) | 2024-01-05 | 소유권이전(매매) | 곽OO | 0 | 거래가액:125,000,000 | |
| 2(을7) | 2024-09-04 | 주택임차권(전부) | 조OO | 105,000,000 | 전입:2020.07.31확정:2020.07.081차보:금110,000,000원, 2차확:2022년8월2일 | |
| 3(갑11) | 2025-02-27 | 강제경매 | 조OO | 105,000,000 | 소멸 | 말소기준등기2025타경507894 |
관련 문서 (PDF)
클릭하면 원본 파일이 열립니다