목록으로
최종 업데이트: 2026-04-22 13:21
2025타경72538
의정부지방법원 2024가단131439 판결정본 하루 보지 않기 X 부동산종합정보+토지이용계획+도시계획+개별공시지가+인근진행물건동일번지진행물건인근반경진행물건인근매각물건동일번지매각물건공매인근진행물건동산인근진행물건임대차보호법예상배당표입찰가분석표입찰표작성네이버부동산+ 주택공시가격 [출처:국토교통부] 소재지 공시기준 공시가격+ 경기도 양주시 옥정동 1동 2025.1 543,000,000원 지자체 정보 및 기타현황 인근역과의 거리(반경 1㎞이내) * 2호선 북부역 0m* 2호선 북정역 0m* 2호선 신기역 0m* 경의중앙선 일신역 0m* 경의중앙선 매곡역 0m* 경의중앙선 서원주역 0m* 경의중앙선 석불역 0m* 경의중앙선 양동역 0m* 경의중앙선 삼산역 0m 관련 사이트 * 경기주택도시공사* 경기부동산포털 대표 080-625-7700
부동산
부동산강제경매
유찰
진행중
| 소재지 |
-
(경기도 양주시 옥정동 1081-5)
|
|---|---|
| 물건종류 | 근린주택 |
| 면적 |
토지: 0.00㎡ (0평)
건물: 539.83㎡ (163.3평)
|
| 현재 위치 | 경기도 양주시 옥정동 1081-5 |
| 소유자 / 채무자 | (주)동연개발 / (주)동연개발 |
| 채권자 | 한지성 |
| 배당종기일 | 2025-09-03 |
감정가
1,842,659,280
최저가
1,289,861,000
보증금
128,986,100
입찰 진행 내역
| 회차/구분 | 입찰기일 | 최저매각가격 | 결과 |
|---|---|---|---|
| 1차 (진행) | 2026-03-18 | 1,842,659,280 | 유찰 |
| 2차 (진행) | 2026-04-22 | 1,289,861,000 | |
| 3차 (진행) | 2026-05-27 | 902,903,000 | |
| 4차 (진행) | 2026-07-01 | 632,032,000 |
임차인 현황
| 임차인명 | 점유여부 | 전입/확정/배당 | 보증금 / 차임 | 예상배당액 | 대항력 |
|---|---|---|---|---|---|
| 김문학 | 주거용 2층 일부 202호 전부 |
전입: 2024-04-11
확정: 2024-04-11 배당: 2025-07-03 |
110,000,000
월 0
|
0 | 없음 |
| 김수림 | 점포 102호 |
전입: -
확정: - 배당: - |
0
월 0
|
0 | - |
| 김은희 | 주거용 3층 일부 302호 |
전입: 2023-05-17
확정: 2023-05-17 배당: 2025-06-27 |
120,000,000
월 0
|
0 | 없음 |
| 서안종합건설(주) | 사무실 101호 |
전입: -
확정: - 배당: - |
100,000,000
월 1,600,000
|
0 | - |
| 손형문 | 사무실 101호 |
전입: -
확정: - 배당: - |
0
월 0
|
0 | 없음 |
| 원유순 | 주거용 2층 201호부분 52㎡ |
전입: 2022-06-29
확정: 2022-06-08 배당: 2025-07-01 |
140,000,000
월 0
|
0 | 없음 |
| 이현진 | 사무실 |
전입: -
확정: - 배당: - |
0
월 0
|
0 | 없음 |
| 장유경 | 주거용 4층 전부 401호 |
전입: 2022-09-15
확정: 2025-06-26 배당: 2025-06-27 |
220,000,000
월 0
|
0 | 없음 |
| 전수정 | 주거용 2층202호 |
전입: 2021-04-21
확정: 2021-04-12 배당: 2023-08-04 |
150,000,000
월 0
|
0 | 없음 |
| 조민서 | 점포 1층 일부 상가전면 우측1칸 102호 19㎡ |
전입: -
확정: - 배당: 2025-06-30 |
10,000,000
월 500,000
|
0 | 없음 |
| 한지성 | 주거용 3층301호 |
전입: 2020-07-06
확정: 2020-06-15 배당: 2024-10-14 |
130,000,000
월 0
|
0 | 없음 |
매각물건 현황
| 구분 | 순번 | 소재지 | 용도/구조/면적 | 감정가 | 비고 |
|---|---|---|---|---|---|
| 토지 | 토지 | 옥정동 1081-5 | 절대보호구역,상대보호구역,배출시설설치제한지역,성장관리권역,토석...절대보호구역,상대보호구역,배출시설설치제한지역,성장관리권역,토석채취제한지역,택지개발지구,제1종일반주거지역,지구단위계획구역,가축사육제한구역 / 대 288㎡ (87.12평) | 2,980,000 | 858,240,000원 |
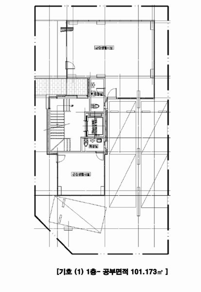
| 건물 | 1 | 옥정동로5다길 5-13 [옥정동 1081-5]철골콘크리트구조 징크판넬지붕 | 1층 / 근린생활시설 | 173 | 1,440,000원 |
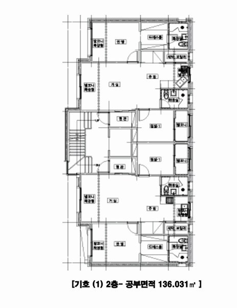
| 2 | 2층 | 단독주택(다가구주택) | 136.031㎡(41.15평) / 1,980,000원 | 269,341,380 | * 사용승인:2020.05.22 |
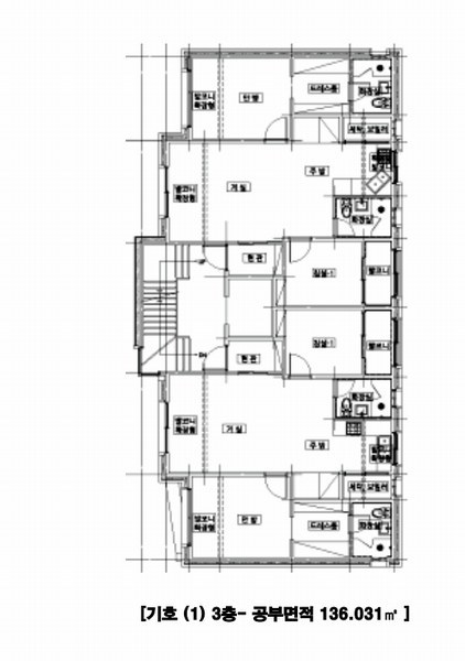
| 3 | 3층 | 단독주택(다가구주택) | 136.031㎡(41.15평) / 1,980,000원 | 269,341,380 | * 사용승인:2020.05.22 |
| 4 | 4층 | 단독주택(다가구주택) | 125.2㎡(37.87평) / 1,980,000원 | 247,896,000 | * 사용승인:2020.05.22 |
| 5 | 옥탑 | 다락 | 41.39㎡(12.52평) / 1,260,000원 | 52,151,400 | * 사용승인:2020.05.22* 옥탑4층 |
등기부 현황
건물
| 순위 | 접수일자 | 권리종류 | 권리자 | 채권금액 | 소멸여부 | 비고 |
|---|---|---|---|---|---|---|
| 1(갑1) | 2020-06-10 | 소유권보존 | (OOOOOO | 0 | ||
| 2(을1) | 2020-06-10 | 근저당 | 의OOOOOOOOO | 780,000,000 | 소멸 | 말소기준등기 |
| 3(을4) | 2023-08-04 | 주택임차권(2층202호) | 전OO | 150,000,000 | 소멸 | 전입:2021.04.21확정:2021.04.12 |
| 4(을5) | 2024-07-29 | 근저당 | 강OOOOOO | 5,112,000,000 | 소멸 | |
| 5(을6) | 2024-10-14 | 주택임차권(3층301호) | 한OO | 130,000,000 | 소멸 | 전입:2020.07.06확정:2020.06.15보: 금130,000,000원(2022년6월14일15,000,000원 증액), 1차확: 2020년6월15일(115,000,000원), 2차확: 2022년6월14일(증액된 130,000,000원) |
| 6(갑2) | 2025-01-24 | 가압류 | 중OOOOO | 115,875,390 | 소멸 | 2025카단802100 |
| 7(갑3) | 2025-06-17 | 강제경매 | 한OO | 130,000,000 | 소멸 | 2025타경72538 |
| 8(을7) | 2025-07-23 | 주택임차권(2층 201호부분 52㎡) | 원OO | 140,000,000 | 소멸 | 전입:2022.06.29확정:2022.06.08보: 금140,000,000원(2024년 8월 13일30,000,000원 감액), 2차확: 없음 |
관련 문서 (PDF)
클릭하면 원본 파일이 열립니다