메뉴
목록으로 최종 업데이트: 2026-04-25 10:49

2024타경80145

의정부지방법원 2023가단134516 판결정본 주의사항 ▶ 매각허가에 의하여 소멸되지 아니하는 것 - 을구 순위 1번 전세권설정권등기(2023.8.29. 접수)는 말소되지 않고 매수인에게 인수됨 전문가멘트 ☞ 미납관리비의 경우 사용자 부담이 원칙이나 사용자가 납부하지 않은 경우 공용부분 관리비는 대법원판례(2001다8677 전원합의체)에 따라서 매수인에게 승계됩니다. 관리비채권의 법적 소멸시효는 3년이며 미납관리비의 연체료나 관리사무소에서 임의적으로 계산한 지연손해금등이 매수자에게 승계되지 않습니다. 위 사항을 참고하여 관리사무소와 협의하여 처리하시기 바랍니다. 하루 보지 않기 X 부동산종합정보+토지이용계획+도시계획+개별공시지가+인근진행물건동일번지진행물건인근반경진행물건인근매각물건동일번지매각물건공매인근진행물건동산인근진행물건임대차보호법예상배당표입찰가분석표시세

부동산 부동산강제경매 유찰 진행중
의정부지방법원 2023가단134516 판결정본 주의사항 ▶ 매각허가에 의하여 소멸되지 아니하는 것 - 을구 순위 1번 전세권설정권등기(2023.8.29. 접수)는 말소되지 않고 매수인에게 인수됨 전문가멘트 ☞ 미납관리비의 경우 사용자 부담이 원칙이나 사용자가 납부하지 않은 경우 공용부분 관리비는 대법원판례(2001다8677 전원합의체)에 따라서 매수인에게 승계됩니다. 관리비채권의 법적 소멸시효는 3년이며 미납관리비의 연체료나 관리사무소에서 임의적으로 계산한 지연손해금등이 매수자에게 승계되지 않습니다. 위 사항을 참고하여 관리사무소와 협의하여 처리하시기 바랍니다. 하루 보지 않기 X 부동산종합정보+토지이용계획+도시계획+개별공시지가+인근진행물건동일번지진행물건인근반경진행물건인근매각물건동일번지매각물건공매인근진행물건동산인근진행물건임대차보호법예상배당표입찰가분석표시세 매각기일 2026-05-12 00:00:00 사건번호 2024타경80145 최근 확인 2026-04-25 10:49 다음 확인 2026-05-13 09:00
소재지
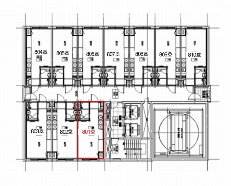
경기도 의정부시 청사로6번길 7-30, 스테이션615 8층 801호
(경기도 의정부시 신곡동 764-8)
물건종류 오피스텔[계약13평형]
면적
토지: 4.64㎡ (1.4평)
건물: 23.91㎡ (7.23평)
현재 위치 경기도 의정부시 청사로6번길 7-30, 스테이션615 8층 801호
소유자 / 채무자 (주)은림영우 / (주)은림영우
채권자 이진용
배당종기일 2024-09-02
감정가
137,000,000
최저가
1,896,000
보증금
189,600
입찰 진행 내역
회차/구분 입찰기일 최저매각가격 결과
1차 (진행) 2025-03-04 137,000,000 유찰
2차 (진행) 2025-04-08 95,900,000 유찰
3차 (진행) 2025-05-13 67,130,000 유찰
4차 (진행) 2025-06-17 46,991,000 유찰
5차 (진행) 2025-07-22 32,894,000 유찰
6차 (진행) 2025-08-26 23,026,000 유찰
7차 (진행) 2025-09-30 16,118,000 유찰
8차 (진행) 2025-11-04 11,283,000 유찰
9차 (진행) 2025-12-09 7,898,000 유찰
10차 (진행) 2026-01-13 5,529,000 유찰
11차 (진행) 2026-02-24 3,870,000 유찰
12차 (진행) 2026-03-31 2,709,000 유찰
13차 (진행) 2026-05-12 1,896,000
임차인 현황
임차인명 점유여부 전입/확정/배당 보증금 / 차임 예상배당액 대항력
경기도(교육감-경기도교육청북부청) 주거용 전체
전입: -
확정: -
배당: -
125,000,000
월 0
0 -
이진용 주거용 제801호
전입: 2021-09-10
확정: 2021-08-19
배당: 2024-09-02
75,000,000
월 0
0 있음
매각물건 현황
구분 순번 소재지 용도/구조/면적 감정가 비고
건물 16층중 8층 19.06.03 23.907㎡(7.23평)[계약13평] / 업무시설(오피스텔) 41,100,000
현황 및 위치
* 본건은 경기도 의정부시 신곡동 소재 "경기도청 북부청사" 북측 인근에 위치하는 부동산으로서, 주변은 관공서, 근린생활시설, 아파트단지, 공원, 학교, 전철역 등이 주를 이루는 지역으로서 제반 입지여건은 대체로 보통시 됨 * 본건까지 차량출입 가능하며 인근에 버스정류장, 전철역 등이 위치하는바 제반 교통사정은 대체로 무난시 됨 * 대체로 정방형의 업무용 건부지로 이용중임. * 본건 북측으로 노폭 약 8 미터 내외의 도로, 본건 동측으로 각각 노폭 약 8 미터 내외의 도로에 각각 접함
참고사항
* 업무시설(오피스텔)로 이용중임
전문가 코멘트
☞ 본건은 소액임차인의 최우선변제금 지급기준이 되는 담보물권이 없어 배당시점을 기준으로 소액임차인을 판단하였으니 참고하시기 바랍니다.
☞ 미납관리비의 경우 사용자 부담이 원칙이나 사용자가 납부하지 않은 경우 공용부분 관리비는 대법원판례(2001다8677 전원합의체)에 따라서 매수인에게 승계됩니다. 관리비채권의 법적 소멸시효는 3년이며 미납관리비의 연체료나 관리사무소에서 임의적으로 계산한 지연손해금등이 매수자에게 승계되지 않습니다. 위 사항을 참고하여 관리사무소와 협의하여 처리하시기 바랍니다.
등기부 현황
건물
순위 접수일자 권리종류 권리자 채권금액 소멸여부 비고
1(갑5) 2021-10-15 소유권이전(매매) (OOOOOO 0 거래가액 금110,000,000원
2(을1) 2023-08-29 전세권(전체) 경OOOOOOOOOOOOOOOOO 125,000,000 인수 존속기간:2023.08.29~2025.08.28
3(을2) 2023-11-13 주택임차권(제801호) 이OO 75,000,000 전입:2021.09.10확정:2021.08.19보:75,000,000원(125,000,000원 중 반환받지 못한 임대보증금)
4(갑6) 2023-11-22 압류 의OOO 0 소멸 말소기준등기
5(갑7) 2024-06-13 강제경매 이OO 75,000,000 소멸 2024타경80145
6(갑8) 2024-06-25 압류 국OOOOOOO 0 소멸
관련 문서 (PDF) 클릭하면 원본 파일이 열립니다