메뉴
목록으로 최종 업데이트: 2026-04-26 23:39

2024타경81936

서울중앙지방법원 2024차전169582 지급명령 주의사항 ▶ 매각허가에 의하여 소멸되지 아니하는 것 - 매수인에게 대항할 수 있는 을구 3번 임차권등기(임대차보증금 200,000,000원, 전입일자 2022.04.11. 확정일자 2022.03.22.)가 있으므로 배당에서 전액 변제되지 아니하면 잔액을 매수인이 인수함(또는 잔액은 매수인에게 인수될 수 있음) 하루 보지 않기 X 부동산종합정보+토지이용계획+도시계획+개별공시지가+인근진행물건동일번지진행물건인근반경진행물건인근매각물건동일번지매각물건공매인근진행물건동산인근진행물건임대차보호법예상배당표입찰가분석표시세

부동산 부동산강제경매 유찰 진행중
서울중앙지방법원 2024차전169582 지급명령 주의사항 ▶ 매각허가에 의하여 소멸되지 아니하는 것 - 매수인에게 대항할 수 있는 을구 3번 임차권등기(임대차보증금 200,000,000원, 전입일자 2022.04.11. 확정일자 2022.03.22.)가 있으므로 배당에서 전액 변제되지 아니하면 잔액을 매수인이 인수함(또는 잔액은 매수인에게 인수될 수 있음) 하루 보지 않기 X 부동산종합정보+토지이용계획+도시계획+개별공시지가+인근진행물건동일번지진행물건인근반경진행물건인근매각물건동일번지매각물건공매인근진행물건동산인근진행물건임대차보호법예상배당표입찰가분석표시세 매각기일 2026-05-14 00:00:00 사건번호 2024타경81936 최근 확인 2026-04-26 23:39 다음 확인 2026-05-15 09:00
소재지
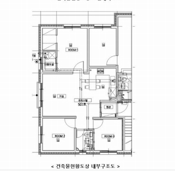
경기도 파주시 황골로 65, 아침의뜰2차 1동 5층 501호
(경기도 파주시 금촌동 789-2)
물건종류 오피스텔
면적
토지: 36.70㎡ (11.1평)
건물: 64.29㎡ (19.45평)
현재 위치 경기도 파주시 황골로 65, 아침의뜰2차 1동 5층 501호
소유자 / 채무자 최창업 / 최창업
채권자 주택도시보증공사
배당종기일 2025-01-02
감정가
201,000,000
최저가
16,553,000
보증금
1,655,300
입찰 진행 내역
회차/구분 입찰기일 최저매각가격 결과
1차 (진행) 2025-08-28 201,000,000 유찰
2차 (진행) 2025-10-02 140,700,000 유찰
3차 (진행) 2025-11-06 98,490,000 유찰
4차 (진행) 2025-12-11 68,943,000 유찰
5차 (진행) 2026-01-22 48,260,000 유찰
6차 (진행) 2026-03-05 33,782,000 유찰
7차 (진행) 2026-04-09 23,647,000 유찰
8차 (진행) 2026-05-14 16,553,000
임차인 현황
임차인명 점유여부 전입/확정/배당 보증금 / 차임 예상배당액 대항력
김미언 주거용 전부
전입: 2022-04-11
확정: 2022-03-22
배당: 2024-12-28
200,000,000
월 0
0 있음
매각물건 현황
구분 순번 소재지 용도/구조/면적 감정가 비고
건물 6층중 5층 18.01.04 64.29㎡(19.45평) / 주거용 오피스텔 120,600,000
현황 및 위치
* 본건은 경기도 파주시 금촌동 소재 "금향초등학교" 북서측 인근에 위치하며, 주위는 다세대주택, 근린생활시설 등이 혼재하는 지역으로 제반 주위환경은 보통입니다 * 본건까지 차량 진,출입이 가능하며, 인근에 노선버스 정류장이 소재하는 등 제반 교통상황은 보통입니다 * 자체지반 평탄하게 조성된 세장형의 토지로서, 다세대주택 건부지로 이용 중 입니다 * 본건 토지 남측 및 북측으로 노폭 약 8미터, 6미터 내외의 포장도로와 각각 접합니다
참고사항
☞현황서상 내용: 건물내 승강기 있음.
등기부 현황
건물
순위 접수일자 권리종류 권리자 채권금액 소멸여부 비고
1(갑6) 2022-03-14 소유권이전(매매) 최OO 0 거래가액 금142,250,000원
2(갑7) 2023-04-24 압류 국OOOOOOOO 0 소멸 말소기준등기
3(을3) 2023-12-04 주택임차권(전부) 김OO 200,000,000 전입:2022.04.11확정:2022.03.22
4(갑8) 2024-04-18 압류 국OOOOOOOO 0 소멸
5(갑9) 2024-10-07 강제경매 주OOOOOOO 208,097,757 소멸 2024타경81936
관련 문서 (PDF) 클릭하면 원본 파일이 열립니다