메뉴
목록으로 최종 업데이트: 2026-04-26 23:43

2025타경61977

서울중앙지방법원 2024차전215938 지급명령 주의사항 ▶ 매각허가에 의하여 소멸되지 아니하는 것 - 매수인에게 대항할 수 있는 을구 2번 임차권등기(임대차보증금 255,000,000원, 전입일자 2021.01.20. 확정일자 2021.01.04.)가 있으므로 배당에서 전액 변제되지 아니하면 잔액을 매수인이 인수함(또는 잔액은 매수인에게 인수될 수 있음) 전문가멘트 ☞본 건은 법원 자료 및 등기부상 임금채권의 존재 가능성이 있습니다.임금채권 중 일부(최종 3개월분 임금 및 3년분 퇴직금)는 최우선변제권을 가집니다.따라서 대항력 있는 임차인이 배당요구,경매를 신청한 때에는 임금채권이 임차보증금보다 우선 배당되어 보증금 미배당금을 매수인이 인수할 여지도 있습니다.(임차인이 대항력이 없거나 이를 포기한 경우는 임금채권은 매수인에게 영향을 주지 않습니다.) 하루 보지 않기 X 부동산종합정보+토지이용계획+도시계획+개별공시지가+공동주택가격+인근진행물건동일번지진행물건인근반경진행물건인근매각물건동일번지매각물건공매인근진행물건동산인근진행물건임대차보호법예상배당표입찰가분석표시세

부동산 부동산강제경매 유찰 진행중
서울중앙지방법원 2024차전215938 지급명령 주의사항 ▶ 매각허가에 의하여 소멸되지 아니하는 것 - 매수인에게 대항할 수 있는 을구 2번 임차권등기(임대차보증금 255,000,000원, 전입일자 2021.01.20. 확정일자 2021.01.04.)가 있으므로 배당에서 전액 변제되지 아니하면 잔액을 매수인이 인수함(또는 잔액은 매수인에게 인수될 수 있음) 전문가멘트 ☞본 건은 법원 자료 및 등기부상 임금채권의 존재 가능성이 있습니다.임금채권 중 일부(최종 3개월분 임금 및 3년분 퇴직금)는 최우선변제권을 가집니다.따라서 대항력 있는 임차인이 배당요구,경매를 신청한 때에는 임금채권이 임차보증금보다 우선 배당되어 보증금 미배당금을 매수인이 인수할 여지도 있습니다.(임차인이 대항력이 없거나 이를 포기한 경우는 임금채권은 매수인에게 영향을 주지 않습니다.) 하루 보지 않기 X 부동산종합정보+토지이용계획+도시계획+개별공시지가+공동주택가격+인근진행물건동일번지진행물건인근반경진행물건인근매각물건동일번지매각물건공매인근진행물건동산인근진행물건임대차보호법예상배당표입찰가분석표시세 매각기일 2026-05-14 00:00:00 사건번호 2025타경61977 최근 확인 2026-04-26 23:43 다음 확인 2026-05-15 09:00
소재지
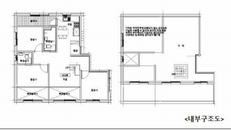
경기도 파주시 번뛰기길 42-13, 대성 1동 4층 402호
(경기도 파주시 야당동 185-68)
물건종류 다세대(빌라)[공급22평형]
면적
토지: 66.87㎡ (20.23평)
건물: 65.42㎡ (19.79평)
현재 위치 경기도 파주시 번뛰기길 42-13, 대성 1동 4층 402호
소유자 / 채무자 최명주 / 최명주
채권자 주택도시보증공사
배당종기일 2025-04-24
감정가
256,000,000
최저가
61,466,000
보증금
6,146,600
입찰 진행 내역
회차/구분 입찰기일 최저매각가격 결과
1차 (진행) 2025-12-11 256,000,000 유찰
2차 (진행) 2026-01-22 179,200,000 유찰
3차 (진행) 2026-03-05 125,440,000 유찰
4차 (진행) 2026-04-09 87,808,000 유찰
(진행) 2026-05-14 61,466,000 미진행
진행 메모
본사건은 미진행 되었으며 현재 매각기일이 지정되지 않았습니다.
임차인 현황
임차인명 점유여부 전입/확정/배당 보증금 / 차임 예상배당액 대항력
최서영 주거용 전부
전입: 2021-01-20
확정: 2021-01-04
배당: 2025-04-02
255,000,000
월 0
0 있음
매각물건 현황
구분 순번 소재지 용도/구조/면적 감정가 비고
건물 4층중 4층 17.09.01 65.42㎡(19.79평)[공급22평] / 주거용 153,600,000
현황 및 위치
* 대상물건은 경기도 파주시 야당동 소재 "야당역(경의중앙선)" 남동측 인근에 위치하고,주위는 공동주택, 근린생활시설 등이 소재하는 지역으로 주위환경은 보통임. * 대상물건까지 차량출입이 가능하며, 인근에 버스정류장 및 야당역(경의중앙선)이 소재하는 등 대중교통상황은 보통임. * 대상물건은 사다리형 토지로서, 공동주택(다세대주택) 건부지로 이용중임. * 대상물건 서측 및 남측으로 노폭 약 6m 내외의 포장도로와 각각 접함.
참고사항
* 통칭 대성 1동
전문가 코멘트
☞본 건은 법원 자료 및 등기부상 임금채권의 존재 가능성이 있습니다.임금채권 중 일부(최종 3개월분 임금 및 3년분 퇴직금)는 최우선변제권을 가집니다.따라서 대항력 있는 임차인이 배당요구,경매를 신청한 때에는 임금채권이 임차보증금보다 우선 배당되어 보증금 미배당금을 매수인이 인수할 여지도 있습니다.(임차인이 대항력이 없거나 이를 포기한 경우는 임금채권은 매수인에게 영향을 주지 않습니다.)
등기부 현황
건물
순위 접수일자 권리종류 권리자 채권금액 소멸여부 비고
1(갑4) 2021-02-16 소유권이전(매매) 최OO 0 거래가액:255,000,000
2(을1) 2021-03-22 근저당 정OO 130,000,000 소멸 말소기준등기
3(갑5) 2022-03-28 가압류 경OOOOOOO 10,948,881 소멸 2022카단258
4(갑6) 2022-04-19 압류 밀OO 0 소멸
5(을2) 2023-02-28 주택임차권(전부) 최OO 255,000,000 전입:2021.01.20확정:2021.01.04
6(갑8) 2024-12-03 가압류 근OOOOO 9,403,916 소멸 2024카단51165
7(갑9) 2025-01-24 강제경매 주OOOOOOOOOOOOOOOOO 255,000,000 소멸 2025타경61977
관련 문서 (PDF) 클릭하면 원본 파일이 열립니다