목록으로
최종 업데이트: 2026-04-28 13:08
2025타경64185
수원지방법원 안양지원 2024가단122266 판결정본 주의사항 ☞공유자의 우선매수신고는 1회에 한하여 행사할 수 있음(공유자가 우선매수권 신고 후 매각기일까지 매수보증금을 미납하여 실효되는 경우에는 그 공유자는 이후 매각기일부터는 우선매수권을 행사할 수 없음) 하루 보지 않기 X 부동산종합정보+토지이용계획+도시계획+개별공시지가+공동주택가격+인근진행물건동일번지진행물건인근반경진행물건인근매각물건동일번지매각물건공매인근진행물건동산인근진행물건임대차보호법예상배당표입찰가분석표시세
부동산
부동산강제경매
매각
진행중
| 소재지 |
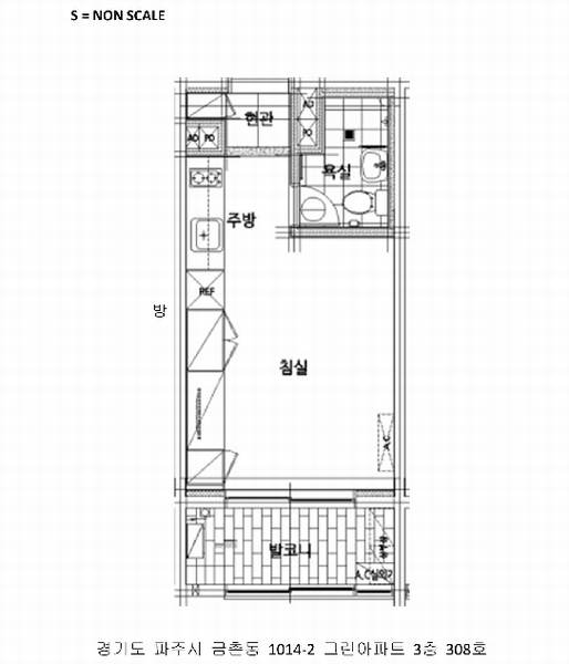
경기도 파주시 정담길 185, 그린아파트 3층 308호
(경기도 파주시 금촌동 1014-2)
|
|---|---|
| 물건종류 | 아파트 |
| 면적 |
토지: 13.50㎡ (4.08평)
건물: 19.59㎡ (5.93평)
|
| 현재 위치 | 경기도 파주시 정담길 185, 그린아파트 3층 308호 |
| 소유자 / 채무자 | 권금순 / 권금순 |
| 채권자 | 정영숙 |
| 배당종기일 | 2025-12-08 |
감정가
36,000,000
최저가
25,200,000
보증금
2,520,000
진행 상태 / 매각 결과
매각
completed = false
매각허가결정
| 상태 코드 | 2 | 상태 텍스트 | 매각허가결정 |
|---|---|---|---|
| 매각가 | 27,000,000원 | 매각가율 | 0% |
| 입찰 수 | 1 | 매수인 | 고양시 김우관 (공유자우선매수 |
| 차순위 입찰가 | 0원 | 매각허가 결정 | 매각허가결정 |
| 매각허가 결정일 | 2026-04-21 | 대금 지급기한 | - |
| 대금 지급상태 | - | 배당기일 | - |
| 배당 종결일 | - | 다음 확인 예정 | 2026-04-29 09:00 |
입찰 진행 내역
| 회차/구분 | 입찰기일 | 최저매각가격 | 결과 |
|---|---|---|---|
| 1차 (진행) | 2026-03-10 | 36,000,000 | 유찰 |
| 2차 (진행) | 2026-04-14 | 25,200,000 |
진행 메모
매각 : 27,000,000 원 (75%)
(입찰 1 명,매수인:고양시 김우관 (공유자우선매수) )
매각결정기일 : 2026.04.21 - 매각허가결정
임차인 현황
| 임차인명 | 점유여부 | 전입/확정/배당 | 보증금 / 차임 | 예상배당액 | 대항력 |
|---|---|---|---|---|---|
| 이종화 | 주거용 308호 |
전입: 2025-02-12
확정: - 배당: - |
0
월 0
|
0 | - |
매각물건 현황
| 구분 | 순번 | 소재지 | 용도/구조/면적 | 감정가 | 비고 |
|---|---|---|---|---|---|
| 건1 | 금촌동 1014-2(12층중3층) | 12.12.31 | 9.8㎡(2.96평) / 도시형생활주택 | 18,000,000 | ☞ 전체면적 19.59㎡중 갑구6번) 2분의 1 권금순 지분 전부 매각 |
현황 및 위치
* 본건은 경기도 파주시 금촌동 소재 "금신초등학교" 북측 인근에 위치하며, 인근은 아파트, 공동주택, 근린생활시설 및 학교 등이 혼재하는 지역으로 제반 주위환경은 보통인 편임. * 본건까지 차량의 진출입이 가능하며, 인근에 노선버스정류장이 소재하는 등 제반 교통상황은 보통인 편임. * 인접도로 및 인접토지와 등고평탄한 부정형 토지로서 도시형생활주택 건부지로 이용중임. * 단지 내 주차장이 외곽공도와 연계됨.
등기부 현황
건물
| 순위 | 접수일자 | 권리종류 | 권리자 | 채권금액 | 소멸여부 | 비고 |
|---|---|---|---|---|---|---|
| 1(갑6) | 2017-08-17 | 소유권이전(매매) | 권OOOOOO | 0 | 각1/2, 거래가액 금91,500,000원 | |
| 2(갑7) | 2025-09-17 | 권금순지분강제경매 | 정OO | 88,336,612 | 소멸 | 말소기준등기2025타경64185 |
관련 문서 (PDF)
클릭하면 원본 파일이 열립니다