메뉴
목록으로 최종 업데이트: 2026-04-27 16:00

2025타경64316

서울중앙지방법원 2024차전129905 지급명령 주의사항 ▶부동산등기사항전부증명서상 을구 순위 1번 2023년 4월 28일 제59512호 접수 주택임차권등기에 대하여 임차권자의 채권양수인인 신청채권자 주택도시보증공사가 2026. 2. 4.자 확약서(보증금 전액을 배당금에서 변제 받지 못하더라도 잔존임대차보증금반환청구권을 포기하고, 임차권등기를 말소하는 것에 동의함)를 제출함. 하루 보지 않기 X 부동산종합정보+토지이용계획+도시계획+개별공시지가+공동주택가격+인근진행물건동일번지진행물건인근반경진행물건인근매각물건동일번지매각물건공매인근진행물건동산인근진행물건임대차보호법예상배당표입찰가분석표시세

부동산 부동산강제경매 유찰 진행중
서울중앙지방법원 2024차전129905 지급명령 주의사항 ▶부동산등기사항전부증명서상 을구 순위 1번 2023년 4월 28일 제59512호 접수 주택임차권등기에 대하여 임차권자의 채권양수인인 신청채권자 주택도시보증공사가 2026. 2. 4.자 확약서(보증금 전액을 배당금에서 변제 받지 못하더라도 잔존임대차보증금반환청구권을 포기하고, 임차권등기를 말소하는 것에 동의함)를 제출함. 하루 보지 않기 X 부동산종합정보+토지이용계획+도시계획+개별공시지가+공동주택가격+인근진행물건동일번지진행물건인근반경진행물건인근매각물건동일번지매각물건공매인근진행물건동산인근진행물건임대차보호법예상배당표입찰가분석표시세 매각기일 2026-05-19 00:00:00 사건번호 2025타경64316 최근 확인 2026-04-27 16:00 다음 확인 2026-05-20 09:00
소재지
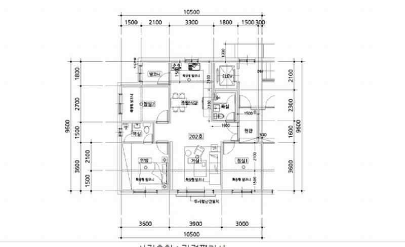
경기도 고양시 일산동구 성현로659번길 143, 채움채2단지 101동 2층 202호
(경기도 고양시 일산동구 사리현동 178-3)
물건종류 다세대(빌라)[공급20평형]
면적
토지: 64.93㎡ (19.64평)
건물: 59.52㎡ (18평)
현재 위치 경기도 고양시 일산동구 성현로659번길 143, 채움채2단지 101동 2층 202호
소유자 / 채무자 이한순 / 이한순
채권자 주택도시보증공사
배당종기일 2025-12-15
감정가
220,000,000
최저가
107,800,000
보증금
10,780,000
입찰 진행 내역
회차/구분 입찰기일 최저매각가격 결과
1차 (진행) 2026-03-10 220,000,000 유찰
2차 (진행) 2026-04-14 154,000,000 유찰
3차 (진행) 2026-05-19 107,800,000
4차 (진행) 2026-06-23 75,460,000
임차인 현황
임차인명 점유여부 전입/확정/배당 보증금 / 차임 예상배당액 대항력
강연경 주거용 전체
전입: 2021-04-15
확정: 2021-03-29
배당: 2023-04-28
220,000,000
월 0
0 있음
매각물건 현황
구분 순번 소재지 용도/구조/면적 감정가 비고
건물 4층중 2층 18.06.15 59.52㎡(18평)[공급20평] / 주거용 110,000,000 * 개별 난방설비
현황 및 위치
* 본건은 경기도 고양시 일산동구 사리현동 소재 "벽제초등학교" 북동측 인근에 위치하며, 주위는 공동주택(다세대주택), 단독주택, 근린생활시설, 창고 및 공장 등이 혼재되어 있으며 제반 주위환경은 보통시됨. * 본건까지 차량접근 가능하며, 주위를 통과하는 대중교통의 운행빈도 등을 고려컨데 교통상황은 보통임. * 평탄하게 조성한 부정형 토지로 다세대주택 건부지로 이용중임. * 본건 북서측으로 포장도로에 접함.
등기부 현황
건물
순위 접수일자 권리종류 권리자 채권금액 소멸여부 비고
1(갑5) 2021-05-20 소유권이전(매매) 이OO 0 거래가액:220,000,000
2(을1) 2023-04-28 주택임차권(전체) 강OO 220,000,000 소멸 전입:2021.04.15확정:2021.03.29
3(갑6) 2025-09-24 강제경매 주OOOOOOOOOOOOOOOOO 220,000,000 소멸 말소기준등기2025타경64316
관련 문서 (PDF) 클릭하면 원본 파일이 열립니다