메뉴
목록으로 최종 업데이트: 2026-04-27 16:03

2025타경64387

서울중앙지방법원 2025차전81027 지급명령 주의사항 ▶부동산등기사항전부증명서상 을구 순위 1번 2024년 10월 17일 제136786호 접수 주택임차권등기에 대하여 임차권자의 대위변제자인 신청채권자 주택도시보증공사가 2026. 2. 4.자 확약서(보증금 전액을 배당금에서 변제 받지 못하더라도 잔존임대차보증금반환청구권을 포기하고, 임차권등기를 말소하는 것에 동의함)를 제출함. 하루 보지 않기 X 부동산종합정보+토지이용계획+도시계획+개별공시지가+공동주택가격+인근진행물건동일번지진행물건인근반경진행물건인근매각물건동일번지매각물건공매인근진행물건동산인근진행물건임대차보호법예상배당표입찰가분석표시세

부동산 부동산강제경매 유찰 진행중
서울중앙지방법원 2025차전81027 지급명령 주의사항 ▶부동산등기사항전부증명서상 을구 순위 1번 2024년 10월 17일 제136786호 접수 주택임차권등기에 대하여 임차권자의 대위변제자인 신청채권자 주택도시보증공사가 2026. 2. 4.자 확약서(보증금 전액을 배당금에서 변제 받지 못하더라도 잔존임대차보증금반환청구권을 포기하고, 임차권등기를 말소하는 것에 동의함)를 제출함. 하루 보지 않기 X 부동산종합정보+토지이용계획+도시계획+개별공시지가+공동주택가격+인근진행물건동일번지진행물건인근반경진행물건인근매각물건동일번지매각물건공매인근진행물건동산인근진행물건임대차보호법예상배당표입찰가분석표시세 매각기일 2026-05-19 00:00:00 사건번호 2025타경64387 최근 확인 2026-04-27 16:03 다음 확인 2026-05-20 09:00
소재지
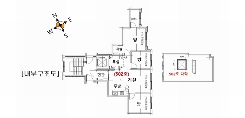
경기도 고양시 덕양구 푸른마을로 33-5, 동원아트빌 103동 5층 502호
(경기도 고양시 덕양구 고양동 1132-6)
물건종류 다세대(빌라)[공급16평형]
면적
토지: 36.14㎡ (10.93평)
건물: 45.09㎡ (13.64평)
현재 위치 경기도 고양시 덕양구 푸른마을로 33-5, 동원아트빌 103동 5층 502호
소유자 / 채무자 김만희 / 김만희
채권자 주택도시보증공사
배당종기일 2026-01-02
감정가
238,000,000
최저가
116,620,000
보증금
11,662,000
입찰 진행 내역
회차/구분 입찰기일 최저매각가격 결과
1차 (진행) 2026-03-10 238,000,000 유찰
2차 (진행) 2026-04-14 166,600,000 유찰
3차 (진행) 2026-05-19 116,620,000
4차 (진행) 2026-06-23 81,634,000
임차인 현황
임차인명 점유여부 전입/확정/배당 보증금 / 차임 예상배당액 대항력
김은빈 주거용
전입: 2025-07-25
확정: -
배당: -
0
월 0
0 -
연수민 주거용 전부
전입: 2020-09-25
확정: 2020-09-16
배당: 2024-10-17
264,000,000
월 0
0 있음
매각물건 현황
구분 순번 소재지 용도/구조/면적 감정가 비고
건물 5층중 5층 19.06.03 45.09㎡(13.64평)[공급16평] / 도시형생활주택-단지형다세대주택 142,800,000
현황 및 위치
* 본건은 경기도 고양시 덕양구 고양동 소재 「목암초등학교」 남측 인근에 위치하며, 주위는 아파트단지, 다세대주택 등이 밀집하고 있으며 근린생활시설 등이 혼재하는 지역으로서, 제반 주위환경은 보통입니다. * 본건까지 차량의 진·출입이 가능하며, 근거리에 노선버스정류장이 소재하는 등 교통상황은 보통입니다. * 인접 토지 대비 등고평탄한 세장형의 토지로서, 공동주택(도시형생활주택-단지형다세대주택) 건부지로 이용 중입니다. * 본건 북동측으로 노폭 약 13미터, 북서측으로 노폭 약 5미터 내외의 포장도로와 접하고 있습니다.
참고사항
* 복층구조로 다락이 소재 ☞현황서상 내용: 승강기를 이용하여 전유세대 출입가능
등기부 현황
건물
순위 접수일자 권리종류 권리자 채권금액 소멸여부 비고
1(갑4) 2020-10-16 소유권이전(매매) 김OO 0
2(을1) 2024-10-17 주택임차권(전부) 연OO 264,000,000 소멸 전입:2020.09.25확정:2020.09.161,2차보:금259,000,000원, 1,2차확:2020.9.16., 3차확:2022.9.15.
3(갑5) 2025-10-01 강제경매 주OOOOOOOOOOOOOOOOO 264,000,000 소멸 말소기준등기2025타경64387
관련 문서 (PDF) 클릭하면 원본 파일이 열립니다