메뉴
목록으로 최종 업데이트: 2026-04-27 16:05

2025타경64393

서울중앙지방법원 2025차전40652 지급명령 주의사항 ▶부동산등기사항전부증명서상 을구 순위 5번 2024년 3월 7일 제15973호 접수 주택임차권등기에 대하여 임차권자의 채권양수인인 신청채권자 주택도시보증공사가 2026. 2. 4.자 확약서(보증금 전액을 배당금에서 변제 받지 못하더라도 잔존임대차보증금반환청구권을 포기하고, 임차권등기를 말소하는 것에 동의함)를 제출함. 하루 보지 않기 X 부동산종합정보+토지이용계획+도시계획+개별공시지가+인근진행물건동일번지진행물건인근반경진행물건인근매각물건동일번지매각물건공매인근진행물건동산인근진행물건임대차보호법예상배당표입찰가분석표시세

부동산 부동산강제경매 유찰 진행중
서울중앙지방법원 2025차전40652 지급명령 주의사항 ▶부동산등기사항전부증명서상 을구 순위 5번 2024년 3월 7일 제15973호 접수 주택임차권등기에 대하여 임차권자의 채권양수인인 신청채권자 주택도시보증공사가 2026. 2. 4.자 확약서(보증금 전액을 배당금에서 변제 받지 못하더라도 잔존임대차보증금반환청구권을 포기하고, 임차권등기를 말소하는 것에 동의함)를 제출함. 하루 보지 않기 X 부동산종합정보+토지이용계획+도시계획+개별공시지가+인근진행물건동일번지진행물건인근반경진행물건인근매각물건동일번지매각물건공매인근진행물건동산인근진행물건임대차보호법예상배당표입찰가분석표시세 매각기일 2026-05-19 00:00:00 사건번호 2025타경64393 최근 확인 2026-04-27 16:05 다음 확인 2026-05-20 09:00
소재지
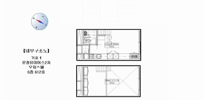
경기도 파주시 경의로 1012, 운정유미어스2차오피스텔 6층 612호
(경기도 파주시 야당동 1048-1)
물건종류 오피스텔[계약16평형]
면적
토지: 6.28㎡ (1.9평)
건물: 19.20㎡ (5.81평)
현재 위치 경기도 파주시 경의로 1012, 운정유미어스2차오피스텔 6층 612호
소유자 / 채무자 김차희 / 김차희
채권자 주택도시보증공사
배당종기일 2026-01-02
감정가
95,000,000
최저가
46,550,000
보증금
4,655,000
입찰 진행 내역
회차/구분 입찰기일 최저매각가격 결과
1차 (진행) 2026-03-10 95,000,000 유찰
2차 (진행) 2026-04-14 66,500,000 유찰
3차 (진행) 2026-05-19 46,550,000
4차 (진행) 2026-06-23 32,585,000
임차인 현황
임차인명 점유여부 전입/확정/배당 보증금 / 차임 예상배당액 대항력
류채언 주거용
전입: 2025-06-05
확정: -
배당: -
0
월 0
0 -
인투비리치㈜(김서우) 점포 612호
전입: -
확정: -
배당: -
10,000,000
월 0
0 있음
허성일 주거용 전부
전입: 2021-12-27
확정: 2021-12-26
배당: 2024-03-07
120,000,000
월 0
0 있음
매각물건 현황
구분 순번 소재지 용도/구조/면적 감정가 비고
건물 17층중 6층 18.10.29 19.2049㎡(5.81평)[계약16평] / 오피스텔 66,500,000
현황 및 위치
* 본건은 경기도 파주시 야당동 소재 "야당역" 남서측 인접에 위치하고 있으며, 주위는 아파트단지 및 오피스텔, 다세대주댁, 각종 근린생활시설, 학교 등이 혼재하는 지역으로서 제반 주위환경은 보통시됨. * 본건까지 차량 진출입 가능하고, 북측 및 남측 인근 경의로변에 노선버스 정류장이 소재하고 있으며, 북동측으로 도보 약10분거리에 지하철 경의중앙선 "야당역"이 소재하는 등 제반 대중교통 상황은 보통시됨. * 인접 도로와 등고 평탄한 사다리형 토지로서, 현황 업무시설(오피스텔) 부지로 이용중임. * 본건 동측, 남측 및 서측으로 노폭 약13m, 약6m 및 약37m 내외의 포장도로에 각 접하고 있음.
전문가 코멘트
☞ 부모 자식(형제)간 적법한 임대차 계약은 주택임대차보호법 적용을 받을 수 있습니다. 다만, 동일세대원일 경우, 독립세대원이라도 같은 공간에 거주하는 경우, 미성년자로 소득이 없는 경우 등 허위 임차인으로 인정되는 사례가 많으니, 이와 같은 사실관계를 물건에 대출한 금융기관이나 현장조사를 통하여 확인해보시기 바랍니다.
등기부 현황
건물
순위 접수일자 권리종류 권리자 채권금액 소멸여부 비고
1(갑4) 2019-01-03 소유권이전(매매) 김OO 0 거래가액:132,984,800
2(을5) 2024-03-07 주택임차권(전부) 허OO 120,000,000 소멸 전입:2021.12.27확정:2021.12.26
3(갑7) 2025-10-02 강제경매 주OOOOOOOOOOOOOOOOO 120,000,000 소멸 말소기준등기2025타경64393
관련 문서 (PDF) 클릭하면 원본 파일이 열립니다