메뉴
목록으로 최종 업데이트: 2026-04-27 16:08

2025타경64548

서울중앙지방법원 2025차전42556 지급명령 주의사항 ▶부동산등기사항전부증명서상 을구 순위 3번 2023년 11월 21일 제85024호 접수 주택임차권등기에 대하여 임차권자의 채권양수인인 신청채권자 주택도시보증공사가 2026. 2. 4.자 확약서(보증금 전액을 배당금에서 변제 받지 못하더라도 잔존임대차보증금반환청구권을 포기하고, 임차권등기를 말소하는 것에 동의함)를 제출함. 하루 보지 않기 X 부동산종합정보+토지이용계획+도시계획+개별공시지가+공동주택가격+인근진행물건동일번지진행물건인근반경진행물건인근매각물건동일번지매각물건공매인근진행물건동산인근진행물건임대차보호법예상배당표입찰가분석표시세

부동산 부동산강제경매 유찰 진행중
서울중앙지방법원 2025차전42556 지급명령 주의사항 ▶부동산등기사항전부증명서상 을구 순위 3번 2023년 11월 21일 제85024호 접수 주택임차권등기에 대하여 임차권자의 채권양수인인 신청채권자 주택도시보증공사가 2026. 2. 4.자 확약서(보증금 전액을 배당금에서 변제 받지 못하더라도 잔존임대차보증금반환청구권을 포기하고, 임차권등기를 말소하는 것에 동의함)를 제출함. 하루 보지 않기 X 부동산종합정보+토지이용계획+도시계획+개별공시지가+공동주택가격+인근진행물건동일번지진행물건인근반경진행물건인근매각물건동일번지매각물건공매인근진행물건동산인근진행물건임대차보호법예상배당표입찰가분석표시세 매각기일 2026-05-19 00:00:00 사건번호 2025타경64548 최근 확인 2026-04-27 16:08 다음 확인 2026-05-20 09:00
소재지
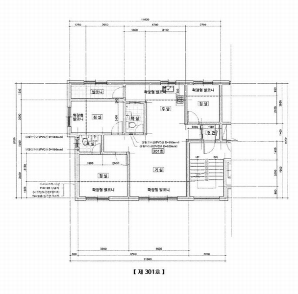
경기도 파주시 아동로 38, 삼성벨라지오프라임 104동 3층 301호
(경기도 파주시 아동동 324-1)
물건종류 다세대(빌라)[공급22평형]
면적
토지: 45.87㎡ (13.88평)
건물: 57.54㎡ (17.41평)
현재 위치 경기도 파주시 아동로 38, 삼성벨라지오프라임 104동 3층 301호
소유자 / 채무자 박은희 / 박은희
채권자 주택도시보증공사
배당종기일 2026-01-16
감정가
217,000,000
최저가
106,330,000
보증금
10,633,000
입찰 진행 내역
회차/구분 입찰기일 최저매각가격 결과
1차 (진행) 2026-03-10 217,000,000 유찰
2차 (진행) 2026-04-14 151,900,000 유찰
3차 (진행) 2026-05-19 106,330,000
4차 (진행) 2026-06-23 74,431,000
임차인 현황
임차인명 점유여부 전입/확정/배당 보증금 / 차임 예상배당액 대항력
강기봉,최경종 주거용 전부
전입: 2021-10-25
확정: 2021-09-27
배당: 2023-11-21
215,000,000
월 0
0 있음
매각물건 현황
구분 순번 소재지 용도/구조/면적 감정가 비고
건물 5층중 3층 17.01.16 57.54㎡(17.41평)[공급22평] / 주거용 130,200,000 * 개별난방설비
현황 및 위치
* 본건은 경기도 파주시 아동동 소재 "금촌역(경의중앙선)" 남동측 인근에 위치하며, 주위는 단독주택 및 공동주택, 각종 근린생활시설 등이 혼재하는 지역으로서, 제반 주위환경은 보통시 됩니다. * 본건이 속한 건물까지 차량접근이 가능하며, 인근에 지하철역(금촌역) 및 버스정류장이 소재하는 등 제반 교통상황은 무난한 편입니다. * 대체로 등고평탄한 2필 일단의 부정형 토지로서, 공동주택 건부지로 이용중입니다. * 북서측으로 노폭 약 8미터 내외의 포장도로와 접합니다.
참고사항
* 외필지 : 아동동 243-23
등기부 현황
건물
순위 접수일자 권리종류 권리자 채권금액 소멸여부 비고
1(갑3) 2021-03-26 공유자전원지분전부이전 박OO 0 매매, 거래가액:200,000,000
2(갑8) 2022-03-21 가압류 한OOOOOOOOOOOOOOOOO 23,126,935 소멸 말소기준등기2022카단335
3(갑9) 2022-10-25 압류 국OOOOOOO 0 소멸
4(을3) 2023-11-21 주택임차권(전부) 강OOOOOO 215,000,000 소멸 전입:2021.10.25확정:2021.09.27
5(갑12) 2025-02-26 압류 파OO 0 소멸
6(갑13) 2025-10-27 강제경매 주OOOOOOOOOOOOOOOOO 215,000,000 소멸 2025타경64548
관련 문서 (PDF) 클릭하면 원본 파일이 열립니다