목록으로
최종 업데이트: 2026-04-22 13:21
2024타경518441
인천지방법원 본원 7계(032-860-1607)
부동산
부동산강제경매
유찰
진행중
| 소재지 |
-
(인천광역시 남동구 간석동 91-1)
|
|---|---|
| 물건종류 | 근린주택 |
| 면적 |
토지: 0.00㎡ (0평)
건물: 485.46㎡ (146.85평)
|
| 현재 위치 | 인천광역시 남동구 간석동 91-1 |
| 소유자 / 채무자 | 최태웅 / 최태웅 외 2 |
| 채권자 | 유진기업(주) |
| 배당종기일 | 2024-06-11 |
감정가
1,530,379,880
최저가
524,919,000
보증금
52,491,900
입찰 진행 내역
| 회차/구분 | 입찰기일 | 최저매각가격 | 결과 |
|---|---|---|---|
| (진행) | 2025-06-25 | 1,530,379,880 | 변경 |
| (진행) | 2025-09-30 | 1,530,379,880 | 변경 |
| 1차 (진행) | 2025-12-17 | 1,530,379,880 | 유찰 |
| 2차 (진행) | 2026-01-30 | 1,071,265,000 | 유찰 |
| 3차 (진행) | 2026-03-13 | 749,885,000 | 유찰 |
| 4차 (진행) | 2026-04-15 | 524,919,000 |
임차인 현황
| 임차인명 | 점유여부 | 전입/확정/배당 | 보증금 / 차임 | 예상배당액 | 대항력 |
|---|---|---|---|---|---|
| 박광열 | 주거용 현황표기 204호 |
전입: 2023-01-31
확정: - 배당: - |
0
월 0
|
0 | 없음 |
| 이정휘 | 주거용 현황표기 206호 |
전입: -
확정: - 배당: - |
0
월 0
|
0 | - |
| 조미경 | 주거용 현황표기 401호 |
전입: 2022-09-02
확정: - 배당: - |
0
월 0
|
0 | 없음 |
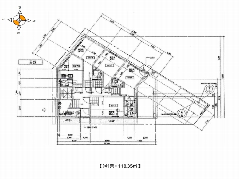
매각물건 현황
| 구분 | 순번 | 소재지 | 용도/구조/면적 | 감정가 | 비고 |
|---|---|---|---|---|---|
| 토지 | 토지 | 간석동 91-1 | 제1종일반주거지역,과밀억제권역,가축사육제한구역,상대보호구역 / 대 232.7㎡ (70.39평) | 3,089,000 | 718,810,300원 |
| 건물 | 1 | 간석로55번길 7 [간석동 91-1]철근콘크리트구조 (철근)콘크리트지붕 | 1층 / 주차장 | 65 | 874,000원 |
| 2 | 1층 | 단독주택(다중주택4호) | 99.7㎡(30.16평) / 1,748,000원 | 174,275,600 | * 사용승인:2020.03.04 |
| 3 | 2층 | 단독주택(다중주택6호) | 114.4㎡(34.61평) / 1,748,000원 | 199,971,200 | * 사용승인:2020.03.04 |
| 4 | 3층 | 단독주택(다중주택6호) | 114.4㎡(34.61평) / 1,748,000원 | 199,971,200 | * 사용승인:2020.03.04 |
| 5 | 4층 | 단독주택(다중주택1호(401호)) | 100.51㎡(30.4평) / 1,748,000원 | 175,691,480 | * 사용승인:2020.03.04* 공부상 제1종근린생활시설(한의원) |
| 제시외건물및수목 | 간석로55번길 7 [간석동 91-1]철골조판넬지붕 | 주택 / 37.8㎡(11.43평) | 1,200,000 | 45,360,000원 |
현황 및 위치
* 본 건 토지는 인천광역시 남동구 간석동 소재 "간석오거리역" 동측 인근에 위치하며, 주위는 단독주택, 다가구주택, 집합건물 등의 주거용 건물 중심의 주거밀집지대이며 주위환경은 보통임. * 본 건까지 차량 출입이 자유로우며, 인근에 노선버스정류장 및 간석오거리역이 소재하여 대중교통편익은 양호한 편임. * 다각형의 평지로서 다중주택 건부지임. * 동측으로 로폭 약8미터, 북측으로 로폭 약6미터의 포장도로와 접함.
참고사항
* 일괄매각. * 제시외 건물 포함 * 일반건축물대장(갑)은 4층 건물 용도가 제1종근린생활시설(한의원)이나 현재 주거용으로 이용중임. * 토지와 옥상에 수목이 있으며 이는 부합물로 판단하여 각각 토지와 건물에 포함하여 감정평가하였음. * 건1~5) 제시외 건물(철골조 판넬지붕 주택 37.8㎡) 포함하여 평가 및 매각함. ☞현황서상 내용:건1~5)다중주택으로서 18개의 원룸으로 이루어져 있고, 엘레베이터가 있음. ▶본 물건은 공부상과 현황상 물건 상태가 다르니 확인하시고 입찰하시기 바랍니다.
전문가 코멘트
** 본 건은 유치권신고가 된 경매물건입니다. 기본적인 유치권의 성립요건은 유치권의 원인채권이 경매되는 물건의 가치증가나 보존에 기여한 변제기가 지난 채권(주로 공사채권)이어야하고 채권회수를 위하여 유치(점유 = 직접, 간접점유 무관)를 하고 있어야 합니다. 조사방법은 먼저 신고내용을 입수하여 공사의 내용과 세목 등을 파악하고 이를 기초로 이해관계이자 탐문, 현장조사 등을 통하여 성립여부에 대한 판단을 합니다. 기본적인 내용은 PC버전은 등기부 요약란 아래의 유치권/법정지상권 버튼을 눌러 참고하시고 모바일버전의 경우 자료실의 관련자료를 참고하시기 바랍니다. 본 건에서 구체적으로 검토하여야 할 사항은 다음과 같습니다. == 유치권신고서 접수 사실과 공사금액 공지 외에 법원정보상 특별한 자료가 없으므로 채권자를 통하여 신고서 내용과 관련정보 파악, 현장조사, 낙찰 후 대비책 마련 등의 순으로 진행하여야 할 것입니다.
등기부 현황
건물
| 순위 | 접수일자 | 권리종류 | 권리자 | 채권금액 | 소멸여부 | 비고 |
|---|---|---|---|---|---|---|
| 1(갑3) | 2022-08-16 | 소유권이전 | 최OO | 0 | 신탁재산의귀속 | |
| 2(을1) | 2022-08-16 | 근저당 | 군OOOOOOOOOOO | 711,100,000 | 소멸 | 말소기준등기 |
| 3(을2) | 2022-08-18 | 근저당 | 백OO | 300,000,000 | 소멸 | |
| 4(갑8) | 2023-06-05 | 가압류 | 유OOOOOO | 177,554,600 | 소멸 | 2023카단104175 |
| 5(갑11) | 2024-03-27 | 강제경매 | 유OOOOOOOOOOOO | 168,288,341 | 소멸 | 2024타경518441, 유진기업주식회사 가압류의 본 압류로의 이행 |
관련 문서 (PDF)
클릭하면 원본 파일이 열립니다