목록으로
최종 업데이트: 2026-04-23 12:27
2024타경541335
인천지방법원 본원 27계(032-860-1627)
부동산
부동산강제경매
매각
진행중
| 소재지 |
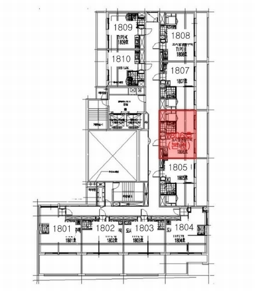
인천광역시 남동구 예술로204번길 19, 구월프라움아트 18층 1806호
(인천광역시 남동구 구월동 1131-18)
|
|---|---|
| 물건종류 | 아파트[공급8평형] |
| 면적 |
토지: 4.11㎡ (1.24평)
건물: 19.23㎡ (5.82평)
|
| 현재 위치 | 인천광역시 남동구 예술로204번길 19, 구월프라움아트 18층 1806호 |
| 소유자 / 채무자 | 최영기 / 최영기 |
| 채권자 | 주택도시보증공사 |
| 배당종기일 | 2024-09-19 |
감정가
132,000,000
최저가
45,276,000
보증금
4,527,600
진행 상태 / 매각 결과
매각
completed = false
매각허가결정
| 상태 코드 | 2 | 상태 텍스트 | 매각허가결정 |
|---|---|---|---|
| 매각가 | 65,000,000원 | 매각가율 | 0% |
| 입찰 수 | 6 | 매수인 | 인천 이숙진 |
| 차순위 입찰가 | 58,012,000원 | 매각허가 결정 | 매각허가결정 |
| 매각허가 결정일 | 2026-03-20 | 대금 지급기한 | - |
| 대금 지급상태 | - | 배당기일 | - |
| 배당 종결일 | - | 다음 확인 예정 | 2026-04-24 09:00 |
입찰 진행 내역
| 회차/구분 | 입찰기일 | 최저매각가격 | 결과 |
|---|---|---|---|
| 1차 (진행) | 2025-09-30 | 132,000,000 | 유찰 |
| (진행) | 2025-11-17 | 92,400,000 | 변경 |
| 2차 (진행) | 2025-11-17 | 132,000,000 | 유찰 |
| 3차 (진행) | 2025-12-17 | 92,400,000 | 유찰 |
| 4차 (진행) | 2026-01-30 | 64,680,000 | 유찰 |
| 5차 (진행) | 2026-03-13 | 45,276,000 |
진행 메모
매각 : 65,000,000 원 (49.24%)
(입찰 6 명,매수인:인천 이숙진 / 차순위금액 58,012,000원)
매각결정기일 : 2026.03.20 - 매각허가결정
대금지급기한 : 2026.04.22
대금납부 2026.04.06 / 배당기일 2026.05.27
임차인 현황
| 임차인명 | 점유여부 | 전입/확정/배당 | 보증금 / 차임 | 예상배당액 | 대항력 |
|---|---|---|---|---|---|
| 김진숙 | 주거용 전부 |
전입: 2024-01-09
확정: 2024-08-21 배당: 2024-08-22 |
30,000,000
월 500,000
|
0 | 없음 |
| 원지혜 | 주거용 제18층 제1806호 |
전입: 2020-10-23
확정: 2020-09-16 배당: 2022-11-17 |
140,000,000
월 0
|
0 | 있음 |
| 최수종 | 주거용 |
전입: 2024-01-09
확정: - 배당: - |
0
월 0
|
0 | 없음 |
매각물건 현황
| 구분 | 순번 | 소재지 | 용도/구조/면적 | 감정가 | 비고 |
|---|---|---|---|---|---|
| 건물 | 18층중 18층 | 16.07.27 | 19.23㎡(5.82평)[공급8평] / 도시형생활주택 | 92,400,000 |
현황 및 위치
* 본건은 인천광역시 남동구 구월동소재 "예술회관역" 북동측으로 약250미터 지점에 위치하며 주위 일대는 동류형의 공동주택, 업무시설 및 근린생활시설 등이 혼재함. * 본건까지 차량출입은 가능하고, 인근에 버스정류장이 소재하여 제반 교통상황은 무난함. * 2필지 일단으로 부정형의 토지로서 아파트, 업무시설, 근린생활시설 건부지로 이용중임. * 본건 남측으로 약8미터 동측으로 약10미터의 포장도로 및 보행자도로에 각각 접함.
참고사항
* 아파트(도시형생활주택)로 이용중 * 외필지 : 구월동 1131-19
전문가 코멘트
☞ 본건은 소액임차인의 최우선변제금 지급기준이 되는 담보물권이 없어 배당시점을 기준으로 소액임차인을 판단하였으니 참고하시기 바랍니다.
등기부 현황
건물
| 순위 | 접수일자 | 권리종류 | 권리자 | 채권금액 | 소멸여부 | 비고 |
|---|---|---|---|---|---|---|
| 1(갑2) | 2016-09-27 | 소유권이전(매매) | 최OO | 0 | ||
| 2(갑6) | 2021-02-02 | 압류 | 국OOOOOOOOOOOOOOO | 0 | 소멸 | 말소기준등기 |
| 3(을5) | 2022-11-17 | 주택임차권(제18층 제1806호) | 원OO | 140,000,000 | 소멸 | 전입:2020.10.23확정:2020.09.16 |
| 4(갑9) | 2024-06-28 | 강제경매 | 주OOOOOOOOOOOOOOO | 140,000,000 | 소멸 | 2024타경541335 |
관련 문서 (PDF)
클릭하면 원본 파일이 열립니다