목록으로
최종 업데이트: 2026-04-22 13:21
2024타경569210
인천지방법원 본원 27계(032-860-1627)
부동산
부동산강제경매
결과 대기
진행중
| 소재지 |
인천광역시 남동구 석촌로46번길 46, 렉스타워 11층 1108호
(인천광역시 남동구 간석동 167-2)
|
|---|---|
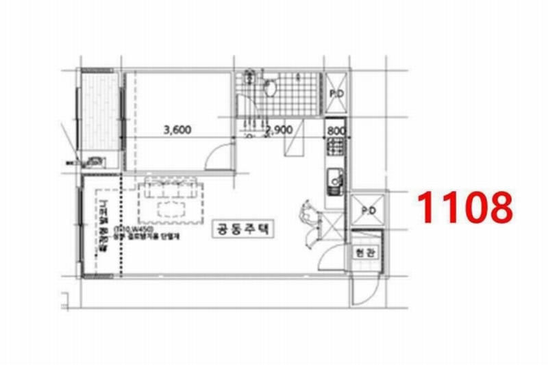
| 물건종류 | 아파트[공급18평형] |
| 면적 |
토지: 8.13㎡ (2.46평)
건물: 45.00㎡ (13.61평)
|
| 현재 위치 | 인천광역시 남동구 석촌로46번길 46, 렉스타워 11층 1108호 |
| 소유자 / 채무자 | 변충석 / 변충석 |
| 채권자 | 주택도시보증공사 |
| 배당종기일 | 2025-01-24 |
감정가
225,000,000
최저가
54,023,000
보증금
5,402,300
입찰 진행 내역
| 회차/구분 | 입찰기일 | 최저매각가격 | 결과 |
|---|---|---|---|
| 1차 (진행) | 2025-11-17 | 225,000,000 | 유찰 |
| 2차 (진행) | 2025-12-17 | 157,500,000 | 유찰 |
| 3차 (진행) | 2026-01-30 | 110,250,000 | 유찰 |
| 4차 (진행) | 2026-03-13 | 77,175,000 | 유찰 |
| (진행) | 2026-04-15 | 54,023,000 | 미진행 |
임차인 현황
| 임차인명 | 점유여부 | 전입/확정/배당 | 보증금 / 차임 | 예상배당액 | 대항력 |
|---|---|---|---|---|---|
| 김승철 | 주거용 |
전입: 2023-05-24
확정: - 배당: - |
0
월 0
|
0 | - |
| 선희은 | 주거용 제11층 제1108호 |
전입: 2020-09-15
확정: 2020-08-24 배당: 2022-10-25 |
199,000,000
월 0
|
0 | 있음 |
매각물건 현황
| 구분 | 순번 | 소재지 | 용도/구조/면적 | 감정가 | 비고 |
|---|---|---|---|---|---|
| 건물 | 15층중 11층 | 17.01.10 | 45.0025㎡(13.61평)[공급18평] / 주거용 | 135,000,000 |
현황 및 위치
* 본건은 인천광역시 남동구 간석동 소재 "간석2동행정복지센터" 동측 인근에 위치하며 본건 인근은 오피스텔, 다세대주택(도시형생활주택), 상업시설 등이 소재하는 지역으로 제반 환경 여건은 보통시됨. * 본건까지 차량 통행이 가능하며, 인근에 노선버스 정류장 및 지하철역이 소재하고 있어 제반 교통여건은 보통시됨. * 인접필지와 등고 평탄한 장방형 토지로 업무시설 및 공동주택으로 이용중에 있음. * 본건 북측 및 남측으로 각각 공도와 접하고 있음.
등기부 현황
건물
| 순위 | 접수일자 | 권리종류 | 권리자 | 채권금액 | 소멸여부 | 비고 |
|---|---|---|---|---|---|---|
| 1(갑3) | 2020-10-13 | 소유권이전(매매) | 변OO | 0 | 거래가액:199,000,000 | |
| 2(을3) | 2022-10-25 | 주택임차권(제11층 제1108호) | 선OO | 199,000,000 | 전입:2020.09.15확정:2020.08.24 | |
| 3(갑4) | 2024-10-30 | 강제경매 | 주OOOOOOOOOOOOOOO | 234,173,187 | 소멸 | 말소기준등기2024타경569210 |
| 4(갑5) | 2024-11-11 | 압류 | 국OOOOOOO | 0 | 소멸 |
관련 문서 (PDF)
클릭하면 원본 파일이 열립니다