목록으로
최종 업데이트: 2026-04-22 13:21
2025타경510328
인천지방법원 본원 27계(032-860-1627)
부동산
부동산강제경매
유찰
진행중
| 소재지 |
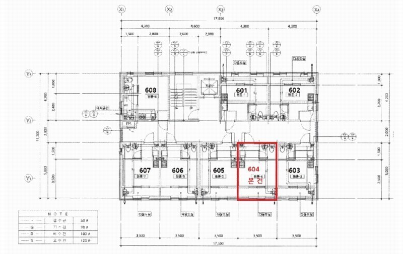
인천광역시 부평구 시장로71번길 3, 브이타워 6층 604호
(인천광역시 부평구 부평동 222-25)
|
|---|---|
| 물건종류 | 아파트[공급7평형] |
| 면적 |
토지: 5.02㎡ (1.52평)
건물: 17.50㎡ (5.29평)
|
| 현재 위치 | 인천광역시 부평구 시장로71번길 3, 브이타워 6층 604호 |
| 소유자 / 채무자 | 박연숙 / 박연숙 |
| 채권자 | 주택도시보증공사 |
| 배당종기일 | 2025-10-10 |
감정가
56,000,000
최저가
19,208,000
보증금
1,920,800
입찰 진행 내역
| 회차/구분 | 입찰기일 | 최저매각가격 | 결과 |
|---|---|---|---|
| 1차 (진행) | 2025-12-17 | 56,000,000 | 유찰 |
| 2차 (진행) | 2026-01-30 | 39,200,000 | 유찰 |
| 3차 (진행) | 2026-03-13 | 27,440,000 | 유찰 |
| 4차 (진행) | 2026-04-15 | 19,208,000 |
임차인 현황
| 임차인명 | 점유여부 | 전입/확정/배당 | 보증금 / 차임 | 예상배당액 | 대항력 |
|---|---|---|---|---|---|
| 김태균 | 주거용 제6층 제604호 |
전입: 2020-10-14
확정: 2020-09-29 배당: 2023-10-13 |
55,000,000
월 0
|
0 | 있음 |
매각물건 현황
| 구분 | 순번 | 소재지 | 용도/구조/면적 | 감정가 | 비고 |
|---|---|---|---|---|---|
| 건물 | 8층중 6층 | 12.03.26 | 17.5㎡(5.29평)[공급7평] / 도시형생활주택 | 33,600,000 |
현황 및 위치
* 본건은 인천광역시 부평구 부평동 소재 ""청과부평시장"" 동측 인근에 위치하고 부근은 다세대주택,주상복합건물,오피스텔,근린생활시설 등이 소재하고 있는 지역임. * 본건까지 제반차량의 진출입이 가능하고 인근에 버스정류장이 소재하고 있어 제반교통사정은 보통시 됨. * 1필지 장방형의 토지로 공동주택 및 제2종근린생활시설의 건부지로 이용되고 있음. * 북동측으로 상태양호한 아스팔트포장도로와 접하고 있음.
참고사항
* 도시형생활주택
전문가 코멘트
☞ 본건은 소액임차인의 최우선변제금 지급기준이 되는 담보물권이 없어 배당시점을 기준으로 소액임차인을 판단하였으니 참고하시기 바랍니다.
등기부 현황
건물
| 순위 | 접수일자 | 권리종류 | 권리자 | 채권금액 | 소멸여부 | 비고 |
|---|---|---|---|---|---|---|
| 1(갑3) | 2020-10-14 | 소유권이전(매매) | 박OO | 0 | 거래가액:55,000,000 | |
| 2(갑4) | 2021-03-12 | 압류 | 국OOOOOOOOO | 0 | 소멸 | 말소기준등기 |
| 3(갑5) | 2021-12-08 | 가압류 | 주OOOOOOO | 5,224,000,000 | 소멸 | 2021카단63697 |
| 4(갑6) | 2022-05-17 | 압류 | 국OOOOOOOO | 0 | 소멸 | |
| 5(을3) | 2023-10-13 | 주택임차권(제6층 제604호) | 김OO | 55,000,000 | 소멸 | 전입:2020.10.14확정:2020.09.29 |
| 6(갑7) | 2023-11-22 | 압류 | 국OOOOOOOOO | 0 | 소멸 | |
| 7(갑8) | 2025-06-27 | 강제경매 | 주OOOOOOOOOOOOOOOOO | 55,000,000 | 소멸 | 2025타경510328 |
관련 문서 (PDF)
클릭하면 원본 파일이 열립니다