목록으로
최종 업데이트: 2026-04-22 13:21
2025타경502580
인천지방법원 본원 8계(032-860-1608)
부동산
부동산강제경매
결과 대기
진행중
| 소재지 |
인천광역시 남동구 예술로172번길 39, 캐슬베리 4층 402호
(인천광역시 남동구 구월동 1125-5)
|
|---|---|
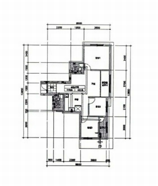
| 물건종류 | 아파트[공급21평형] |
| 면적 |
토지: 14.99㎡ (4.53평)
건물: 59.64㎡ (18.04평)
|
| 현재 위치 | 인천광역시 남동구 예술로172번길 39, 캐슬베리 4층 402호 |
| 소유자 / 채무자 | 이다운 / 이다운 |
| 채권자 | 주택도시보증공사 |
| 배당종기일 | 2025-04-21 |
감정가
158,000,000
최저가
37,936,000
보증금
3,793,600
입찰 진행 내역
| 회차/구분 | 입찰기일 | 최저매각가격 | 결과 |
|---|---|---|---|
| 1차 (진행) | 2025-11-20 | 158,000,000 | 유찰 |
| 2차 (진행) | 2025-12-22 | 110,600,000 | 유찰 |
| 3차 (진행) | 2026-02-04 | 77,420,000 | 유찰 |
| 4차 (진행) | 2026-03-19 | 54,194,000 | 유찰 |
| (진행) | 2026-04-20 | 37,936,000 | 미진행 |
임차인 현황
| 임차인명 | 점유여부 | 전입/확정/배당 | 보증금 / 차임 | 예상배당액 | 대항력 |
|---|---|---|---|---|---|
| 유은교 | 주거용 4층 402호 |
전입: 2021-03-29
확정: 2021-03-04 배당: 2023-05-04 |
171,000,000
월 0
|
0 | 있음 |
매각물건 현황
| 구분 | 순번 | 소재지 | 용도/구조/면적 | 감정가 | 비고 |
|---|---|---|---|---|---|
| 건물 | 8층중 4층 | 15.07.15 | 59.64㎡(18.04평)[공급21평] / 주거용 | 110,600,000 |
현황 및 위치
* 본건은 인천광역시 남동구 구월동 소재 "예술회관역" 동측 인근에 위치하는 구분건물로서,인근은 주상지대입니다. * 본건까지 차량의 출입이 가능하며, 인근에 ""예술회관역" 및 노선버스정류장이 소재하는 등 교통상황은 보통입니다. * 가장형의 토지로서, 업무시설 및 공동주택 건부지로 이용중입니다 * 본건 남측으로 노폭 약8m 내외의 포장도로와 접하고 있습니다.
등기부 현황
건물
| 순위 | 접수일자 | 권리종류 | 권리자 | 채권금액 | 소멸여부 | 비고 |
|---|---|---|---|---|---|---|
| 1(갑3) | 2021-04-16 | 소유권이전(매매) | 이OO | 0 | 거래가액:171,000,000 | |
| 2(갑4) | 2022-08-30 | 압류 | 남OOOOOOOOO | 0 | 소멸 | 말소기준등기 |
| 3(을5) | 2023-05-04 | 주택임차권(4층 402호) | 유OO | 171,000,000 | 전입:2021.03.29확정:2021.03.04 | |
| 4(갑5) | 2024-10-10 | 압류 | 국OOOOOOOO | 0 | 소멸 | |
| 5(갑6) | 2024-12-20 | 압류 | 경OO | 0 | 소멸 | |
| 6(갑7) | 2025-01-13 | 강제경매 | 주OOOOOOOOOOOOOOO | 183,738,296 | 소멸 | 2025타경502580 |
관련 문서 (PDF)
클릭하면 원본 파일이 열립니다