목록으로
최종 업데이트: 2026-04-27 08:38
2025타경51590
서울서부지방법원 본원 7계(02-3271-1327)
부동산
부동산임의경매
유찰
진행중
| 소재지 |
서울특별시 은평구 서오릉로27길 19, 경원에이스 5층 501호
(서울특별시 은평구 구산동 308-22)
|
|---|---|
| 물건종류 | 다세대(빌라)[공급16평형] |
| 면적 |
토지: 26.95㎡ (8.15평)
건물: 47.62㎡ (14.41평)
|
| 현재 위치 | 서울특별시 은평구 서오릉로27길 19, 경원에이스 5층 501호 |
| 소유자 / 채무자 | 유승규 / 유승규 |
| 채권자 | 에스알엠대부법인(주) |
| 배당종기일 | 2025-09-01 |
감정가
197,000,000
최저가
126,080,000
보증금
12,608,000
입찰 진행 내역
| 회차/구분 | 입찰기일 | 최저매각가격 | 결과 |
|---|---|---|---|
| 1차 (진행) | 2026-03-10 | 197,000,000 | 유찰 |
| 2차 (진행) | 2026-04-14 | 157,600,000 | 유찰 |
| 3차 (진행) | 2026-05-19 | 126,080,000 | |
| 4차 (진행) | 2026-06-23 | 100,864,000 |
임차인 현황
| 임차인명 | 점유여부 | 전입/확정/배당 | 보증금 / 차임 | 예상배당액 | 대항력 |
|---|---|---|---|---|---|
| 송정림 | 주거용 501호 |
전입: 2019-10-14
확정: - 배당: - |
0
월 0
|
0 | - |
| 송태석 | 주거용 전부 |
전입: 2019-11-05
확정: 2019-09-20 배당: 2025-08-19 |
147,000,000
월 0
|
0 | 있음 |
매각물건 현황
| 구분 | 순번 | 소재지 | 용도/구조/면적 | 감정가 | 비고 |
|---|---|---|---|---|---|
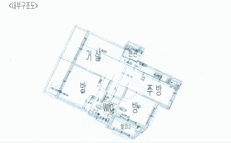
| 건물 | 5층중 5층 | 13.12.27 | 47.62㎡(14.41평)[공급16평] / 현관1·방2·주방1·거실1·욕실겸화장실1·발코니1 등 | 59,100,000 | * 개별도시가스보일러에 의한 난방설비 |
현황 및 위치
* 본건은 서울특별시 은평구 구산동 소재 ""은평중교"" 북서측 인근에 위치함. 부근은 공동주택 및 단독주택·주상용건물·근린생활시설·교육기관·공원 등이 혼재되어 형성된 지역으로서 주위환경은 보통임. * 대중교통수단인 버스정류장까지 도보로 약2~3분 정도 소요되므로 대중교통이용편의도는 보통임. * 사다리형으로서, 공동주택(다세대주택) 건부지로 이용중임. * 차량출입 가능한 도로 개설되어 있음.
등기부 현황
건물
| 순위 | 접수일자 | 권리종류 | 권리자 | 채권금액 | 소멸여부 | 비고 |
|---|---|---|---|---|---|---|
| 1(갑2) | 2014-06-09 | 소유권이전(매매) | 유OO | 0 | ||
| 2(을13) | 2021-11-29 | 근저당 | 에OOOOOOOOOO | 75,000,000 | 소멸 | 말소기준등기 |
| 3(갑3) | 2023-07-18 | 압류 | 국OOOOOOOO | 0 | 소멸 | |
| 4(갑4) | 2023-08-01 | 압류 | 국OOOOOOOO | 0 | 소멸 | |
| 5(갑5) | 2023-11-27 | 가압류 | 우OOOOOOOOO | 9,582,649 | 소멸 | 2023카단54075 |
| 6(갑6) | 2023-12-19 | 압류 | 종OOOOOOOOO | 0 | 소멸 | |
| 7(갑7) | 2023-12-19 | 가압류 | 롯OOOOOOO | 13,960,892 | 소멸 | 2023카단54427 |
| 8(갑8) | 2024-03-20 | 압류 | 은OOOOOOOOO | 0 | 소멸 | |
| 9(갑9) | 2024-08-19 | 압류 | 국OOOOOOO | 0 | 소멸 | |
| 10(갑10) | 2025-06-20 | 임의경매 | 에OOOOOOOOOO | 64,784,246 | 소멸 | 2025타경51590 |
| 11(을14) | 2025-09-04 | 주택임차권(전부) | 송OO | 147,000,000 | 전입:2019.11.05확정:2019.09.20보:금 147,000,000원(2021. 9. 15. 금 7,000,000원 증액), 1차확:2019. 9. 20.(금 140,000,000원) 2차확:2021. 9. 29. (금 7,000,000원 증액한 금 147,000,000원) |
관련 문서 (PDF)
클릭하면 원본 파일이 열립니다