목록으로
최종 업데이트: 2026-04-28 14:26
2023타경4587
인천지방법원 본원 18계(032-860-1618)
부동산
부동산임의경매
매각
진행중
| 소재지 |
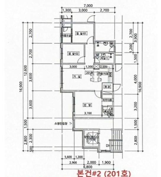
인천광역시 중구 반달로10번길 17, 엣지오피스텔에이동주건축물 1동 2층 201호외10개호
(인천광역시 중구 북성동1가 98-152)
|
|---|---|
| 물건종류 | 오피스텔 |
| 면적 |
토지: 0.00㎡ (0평)
건물: 770.66㎡ (233.12평)
|
| 현재 위치 | 인천광역시 중구 반달로10번길 17, 엣지오피스텔에이동주건축물 1동 2층 201호외10개호 |
| 소유자 / 채무자 | 임대혁 / 윤영찬 |
| 채권자 | 북부천새마을금고 |
| 배당종기일 | 2023-07-03 |
감정가
1,993,000,000
최저가
683,599,000
보증금
68,359,900
진행 상태 / 매각 결과
매각
completed = false
매각
| 상태 코드 | 2 | 상태 텍스트 | 매각 |
|---|---|---|---|
| 매각가 | 818,700,000원 | 매각가율 | 0% |
| 입찰 수 | 3 | 매수인 | 인천 (주 |
| 차순위 입찰가 | 793,500,000원 | 매각허가 결정 | - |
| 매각허가 결정일 | - | 대금 지급기한 | - |
| 대금 지급상태 | - | 배당기일 | - |
| 배당 종결일 | - | 다음 확인 예정 | 2026-04-29 09:00 |
입찰 진행 내역
| 회차/구분 | 입찰기일 | 최저매각가격 | 결과 |
|---|---|---|---|
| (진행) | 2025-01-07 | 1,993,000,000 | 변경 |
| 1차 (진행) | 2026-01-09 | 1,993,000,000 | 유찰 |
| 2차 (진행) | 2026-02-11 | 1,395,100,000 | 유찰 |
| 3차 (진행) | 2026-03-26 | 976,570,000 | 유찰 |
| 4차 (진행) | 2026-04-27 | 683,599,000 |
진행 메모
매각 : 818,700,000 원 (41.08%)
(입찰 3 명,매수인:인천 (주)연텍스 / 차순위금액 793,500,000원)
매각결정기일 : 2026.05.04
임차인 현황
| 임차인명 | 점유여부 | 전입/확정/배당 | 보증금 / 차임 | 예상배당액 | 대항력 |
|---|---|---|---|---|---|
| SH건설외5인 | 점포 |
전입: -
확정: - 배당: - |
0
월 0
|
0 | - |
| 이연희 | 주거용 전부(301호) |
전입: 2022-11-29
확정: 2022-12-07 배당: 2023-04-26 |
20,000,000
월 700,000
|
0 | 없음 |
매각물건 현황
| 구분 | 순번 | 소재지 | 용도/구조/면적 | 감정가 | 비고 |
|---|---|---|---|---|---|
| 건1 | 북성동1가 98-152(5층중2층 201호) | 22.11.04 | 66.97㎡(20.26평) / 오피스텔 | 103,200,000 | |
| 건2 | 북성동1가 98-152(5층중2층 202호) | 22.11.04 | 65.95㎡(19.95평) / 오피스텔 | 101,400,000 | |
| 건3 | 북성동1가 98-152(5층중2층 203호) | 22.11.04 | 71.11㎡(21.51평) / 오피스텔 | 109,800,000 | |
| 건4 | 북성동1가 98-152(5층중3층 301호) | 22.11.04 | 66.97㎡(20.26평) / 오피스텔 | 104,400,000 | |
| 건5 | 북성동1가 98-152(5층중3층 302호) | 22.11.04 | 65.95㎡(19.95평) / 오피스텔 | 102,600,000 | |
| 건6 | 북성동1가 98-152(5층중3층 303호) | 22.11.04 | 71.11㎡(21.51평) / 오피스텔 | 110,400,000 | |
| 건7 | 북성동1가 98-152(5층중4층 401호) | 22.11.04 | 66.97㎡(20.26평) / 오피스텔 | 104,400,000 | |
| 건8 | 북성동1가 98-152(5층중4층 402호) | 22.11.04 | 65.95㎡(19.95평) / 오피스텔 | 102,600,000 | |
| 건9 | 북성동1가 98-152(5층중4층 403호) | 22.11.04 | 71.11㎡(21.51평) / 오피스텔 | 110,400,000 | |
| 건10 | 북성동1가 98-152(5층중5층 501호) | 22.11.04 | 84.83㎡(25.66평) / 오피스텔 | 132,000,000 | |
| 건11 | 북성동1가 98-152(5층중5층 502호) | 22.11.04 | 73.74㎡(22.31평) / 오피스텔 | 114,600,000 |
현황 및 위치
* 본건은 인천광역시 중구 북성동1가 소재 "월미도선착장" 동측 인근에 위치하며, 주위는 관광호텔, 음식점, 단독주택, 연립주택 등이 혼재하는 지역임. * 본건까지 차량접근이 가능하며, 인근에 노선버스정류장이 소재하는 등 제반교통상황은 보통임. * 사다리형 유사 토지로서 오피스텔 건부지로 이용중임. * 본건 서측 및 남서측으로 노폭 약 6미터 내외의 포장도로와 접하고 있음.
참고사항
* 북성동1가 98-152) 잡종지 392.3㎡ * 일괄매각 * 북성동1가 98-152) 건1-11 건물의 대지권의 목적인 토지로 대지권 미등기인 구분건물에 포함하여 평가(감정평가서 참조)
전문가 코멘트
☞ 본건은 소액임차인의 최우선변제금 지급기준이 되는 담보물권이 없어 배당시점을 기준으로 소액임차인을 판단하였으니 참고하시기 바랍니다.
** 본 건은 현재 대지권은 미등기 이지만 건물소유자가 대지에 소유권을 가지고 있고 건물과 대지권 대상의 토지가 일괄매각되어 문제가 없습니다. ( 매각목록에도 포함되었습니다. 촉탁등기 시에 토지에 대한 소유권을 이전신청하면 됩니다.) 매입 후에 각각의 대지권으로 분할하여 토지등기부는 폐쇠하면 될 것입니다. 다만 매각되는 토지가 건물의 건축에 필요한 행정 상 요건을 충족하는 지는 별도로 판단이 필요합니다. ** 본 건은 유치권신고가 된 경매물건입니다. 기본적인 유치권의 성립요건은 유치권의 원인채권이 경매되는 물건의 가치증가나 보존에 기여한 변제기가 지난 채권(주로 공사채권)이어야하고 채권회수를 위하여 유치(점유 = 직접, 간접점유 무관)를 하고 있어야 합니다. 조사방법은 먼저 주장내용을 입수하여 공사의 내용과 세목 등을 파악하고 이를 기초로 이해관계이자 탐문, 현장조사 등을 통하여 성립여부에 대한 판단을 합니다. 기본적인 내용은 PC버전은 등기부 요약란 아래의 유치권/법정지상권 버튼을 눌러 참고하시고 모바일버전의 경우 자료실의 관련자료를 참고하시기 바랍니다. 본 건에서 구체적으로 검토하여야 할 사항은 다음과 같습니다. == 법원자료 상 유치권 신고가 있지만 경매신청권자가 이에 대하여 부존재확인 소송을 제기하여 소송 중( 1심, 2심은 채권자 승소)이라는 내용이 있으므로 구체적인 내용에 대하여 채권자에게 문의하는 것이 도움이 될 것입니다. 아울러 양 당사자의 주장을 모두 참고하고 유치권으로서의 성립요건을 갖추었는지를 현장 방문 등을 통하여 추가로 확인하는 것이 필요할 것입니다. 그리고 조사내용을 종합하여 낙찰 후의 대처 방법도 미리 함께 준비하여야 할 것입니다.
등기부 현황
건물
| 순위 | 접수일자 | 권리종류 | 권리자 | 채권금액 | 소멸여부 | 비고 |
|---|---|---|---|---|---|---|
| 1(갑1) | 2022-11-23 | 소유권보존 | 임OO | 0 | 가압류 등기의 촉탁으로 인하여 | |
| 2(갑2) | 2022-11-23 | 가압류 | 양OOOOOO | 67,350,000 | 소멸 | 말소기준등기2022카단107441 , 청구금액:양강식 38,350,000원, 김기덕 29,000,000원 |
| 3(갑3) | 2022-12-23 | 가압류 | 에OOOOOOOOOOO | 465,801,020 | 소멸 | 2022카단108163 |
| 4(갑4) | 2023-01-19 | 가압류 | 북OOOOOOO | 2,716,829,530 | 소멸 | 2023카단100178 |
| 6(을1) | 2023-03-15 | 근저당 | 북OOOOOOO | 816,000,000 | 소멸 | |
| 7(을2) | 2023-03-15 | 근저당 | 북OOOOOOO | 402,000,000 | 소멸 | |
| 8(을3) | 2023-03-15 | 근저당 | 북OOOOOOO | 378,000,000 | 소멸 | |
| 9(을4) | 2023-03-15 | 근저당 | 북OOOOOOO | 300,000,000 | 소멸 | |
| 10(갑6) | 2023-04-07 | 임의경매 | 북OOOOOOO | 1,695,149,300 | 소멸 | 2023타경4587 |
| 11(갑7) | 2023-08-01 | 압류 | 중OOOOOOOO | 0 | 소멸 |
관련 문서 (PDF)
클릭하면 원본 파일이 열립니다