목록으로
최종 업데이트: 2026-04-25 04:44
2024타경583421
인천지방법원 본원 15계(032-860-1615)
부동산
부동산강제경매
매각
진행중
| 소재지 |
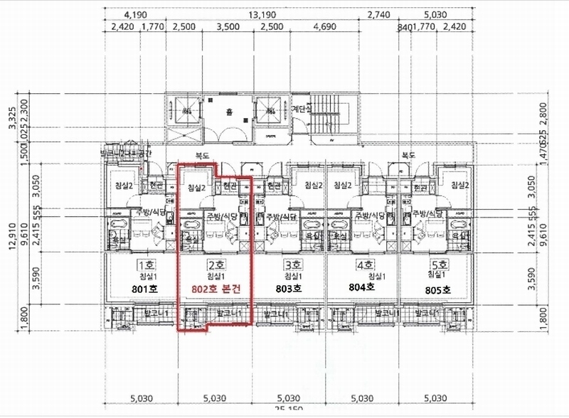
인천광역시 계양구 서운로 34, 계양효성해링턴플레이스 116동 8층 802호
(인천광역시 계양구 서운동 230)
|
|---|---|
| 물건종류 | 아파트[공급16평형] |
| 면적 |
토지: 21.36㎡ (6.46평)
건물: 39.88㎡ (12.06평)
|
| 현재 위치 | 인천광역시 계양구 서운로 34, 계양효성해링턴플레이스 116동 8층 802호 |
| 소유자 / 채무자 | 서운구역주택재개발정비사업조합 / 서운구역주택재개발정비사업조합 |
| 채권자 | 방현준 |
| 배당종기일 | 2025-03-28 |
감정가
268,000,000
최저가
187,600,000
보증금
18,760,000
진행 상태 / 매각 결과
매각
completed = false
매각허가결정
| 상태 코드 | 2 | 상태 텍스트 | 매각허가결정 |
|---|---|---|---|
| 매각가 | 230,600,330원 | 매각가율 | 0% |
| 입찰 수 | 10 | 매수인 | 인천 연현정 |
| 차순위 입찰가 | 225,123,000원 | 매각허가 결정 | 매각허가결정 |
| 매각허가 결정일 | 2026-04-06 | 대금 지급기한 | - |
| 대금 지급상태 | - | 배당기일 | - |
| 배당 종결일 | - | 다음 확인 예정 | 2026-04-26 09:00 |
입찰 진행 내역
| 회차/구분 | 입찰기일 | 최저매각가격 | 결과 |
|---|---|---|---|
| 1차 (진행) | 2026-02-20 | 268,000,000 | 유찰 |
| 2차 (진행) | 2026-03-30 | 187,600,000 |
진행 메모
매각 : 230,600,330 원 (86.04%)
(입찰 10 명,매수인:인천 연현정 / 차순위금액 225,123,000원)
매각결정기일 : 2026.04.06 - 매각허가결정
대금지급기한 : 2026.05.07
대금납부 2026.04.16 / 배당기일 2026.06.10
임차인 현황
| 임차인명 | 점유여부 | 전입/확정/배당 | 보증금 / 차임 | 예상배당액 | 대항력 |
|---|---|---|---|---|---|
| 방현준 | 주거용 제8층 제802호 |
전입: 2021-10-14
확정: 2023-04-27 배당: 2025-02-13 |
190,000,000
월 0
|
0 | 있음 |
매각물건 현황
| 구분 | 순번 | 소재지 | 용도/구조/면적 | 감정가 | 비고 |
|---|---|---|---|---|---|
| 건물 | 21층중 8층 | 21.01.27 | 39.882㎡(12.06평)[공급16평] / 주거용 | 187,600,000 |
현황 및 위치
* 본건은 인천광역시 계양구 서운동 소재 "서운고등학교" 북측 인근에 위치하고 부근은 아파트,다세대주택,근린생활시설,공원,학교 등이 소재하고 있는 지역임. * 본건까지 제반차량의 진출입이 용이하고 인근에 버스정류장이 소재하고 있어 제반교통사정은 보통시 됨. * 1필지 대체로 사다리꼴 모양의 토지로 아파트의 건부지로 이용되고 있음. * 단지내 포장도로를 통하여 외곽의 공도와 연결됨.
등기부 현황
건물
| 순위 | 접수일자 | 권리종류 | 권리자 | 채권금액 | 소멸여부 | 비고 |
|---|---|---|---|---|---|---|
| 1(갑1) | 2022-02-11 | 소유권보존 | 서OOOOOOOOOOOOOO | 0 | ||
| 2(갑4) | 2024-09-30 | 가압류 | 주OOOOOOOOOOOOOOO | 4,587,000,000 | 소멸 | 말소기준등기2024카단105918 |
| 3(갑5) | 2024-11-06 | 가압류 | (OOOOOOOOOOOOOOOO | 1,143,257,555 | 소멸 | 2024카합20020 |
| 4(을1) | 2024-11-20 | 주택임차권(제8층 제802호) | 방OO | 190,000,000 | 전입:2021.10.14확정:2023.04.27 | |
| 5(갑6) | 2024-12-30 | 강제경매 | 방OO | 190,000,000 | 소멸 | 2024타경583421 |
| 6(갑7) | 2026-01-30 | 압류 | 국OOOOOOOO | 0 | 소멸 |
관련 문서 (PDF)
클릭하면 원본 파일이 열립니다