목록으로
최종 업데이트: 2026-04-26 11:03
2025타경508685
인천지방법원 본원 12계(032-860-1612)
부동산
부동산강제경매
유찰
진행중
| 소재지 |
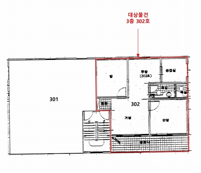
인천광역시 계양구 새풀로7번길 34, 크리스탈타운 5동 3층 302호
(인천광역시 계양구 효성동 606-9)
|
|---|---|
| 물건종류 | 다세대(빌라)[공급21평형] |
| 면적 |
토지: 26.92㎡ (8.14평)
건물: 59.90㎡ (18.12평)
|
| 현재 위치 | 인천광역시 계양구 새풀로7번길 34, 크리스탈타운 5동 3층 302호 |
| 소유자 / 채무자 | 정만수 / 정만수 |
| 채권자 | 한국주택금융공사 |
| 배당종기일 | 2025-07-07 |
감정가
138,000,000
최저가
96,600,000
보증금
9,660,000
입찰 진행 내역
| 회차/구분 | 입찰기일 | 최저매각가격 | 결과 |
|---|---|---|---|
| 1차 (진행) | 2025-11-07 | 138,000,000 | 유찰 |
| 2차 (진행) | 2025-12-09 | 96,600,000 | 유찰 |
| 3차 (진행) | 2026-01-22 | 67,620,000 | 유찰 |
| (진행) | 2026-03-05 | 47,334,000 | 변경 |
| 4차 (진행) | 2026-04-07 | 138,000,000 | 유찰 |
| 5차 (진행) | 2026-05-08 | 96,600,000 | |
| 6차 (진행) | 2026-06-15 | 67,620,000 | |
| 7차 (진행) | 2026-07-16 | 47,334,000 |
임차인 현황
| 임차인명 | 점유여부 | 전입/확정/배당 | 보증금 / 차임 | 예상배당액 | 대항력 |
|---|---|---|---|---|---|
| 여기엽 | 주거용 3층 302호 |
전입: 2022-02-03
확정: 2021-12-28 배당: 2023-08-31 |
133,000,000
월 0
|
0 | 있음 |
매각물건 현황
| 구분 | 순번 | 소재지 | 용도/구조/면적 | 감정가 | 비고 |
|---|---|---|---|---|---|
| 건물 | 4층중 3층 | 99.11.13 | 59.9㎡(18.12평)[공급21평] / 주거용 | 55,200,000 |
현황 및 위치
*대상물건은 인천광역시 계양구 효성동 소재 "북인천여자중학교" 남서측 인근에 위치하며, 주위는 아파트, 다세대주택, 근린시설 등으로 형성된 지대로서, 제반 주위환경은 보통임. *대상물건이 소재하는 건물까지 차량출입 가능하며, 인근에 버스정류장이 소재하여 대중교통 사정은 보통임 *세장형의 토지로서, 현황 "다세대주택" 건부지로 이용 중임. *남측으로 노폭 약 10m 내외의 포장도로, 동측으로 노폭 약 4m 내외의 포장도로를 각각 이용중임.
전문가 코멘트
☞ 본건은 소액임차인의 최우선변제금 지급기준이 되는 담보물권이 없어 배당시점을 기준으로 소액임차인을 판단하였으니 참고하시기 바랍니다.
등기부 현황
건물
| 순위 | 접수일자 | 권리종류 | 권리자 | 채권금액 | 소멸여부 | 비고 |
|---|---|---|---|---|---|---|
| 1(갑16) | 2022-02-24 | 소유권이전(매매) | 정OO | 0 | 거래가액:133,000,000 | |
| 2(갑17) | 2023-02-03 | 압류 | 국OOOOOOOO | 0 | 소멸 | 말소기준등기 |
| 3(을9) | 2023-08-31 | 주택임차권(3층 302호) | 여OO | 133,000,000 | 소멸 | 전입:2022.02.03확정:2021.12.28 |
| 4(갑18) | 2024-11-27 | 압류 | 계OOOOOOOOO | 0 | 소멸 | |
| 5(갑19) | 2025-04-10 | 강제경매 | 한OOOOOOOOOOOOOOOOOOOO | 153,203,134 | 소멸 | 2025타경508685 |
관련 문서 (PDF)
클릭하면 원본 파일이 열립니다