목록으로
최종 업데이트: 2026-04-26 11:45
2025타경33682
인천지방법원 부천지원 2계(032-320-1132)
부동산
부동산임의경매
유찰
진행중
| 소재지 |
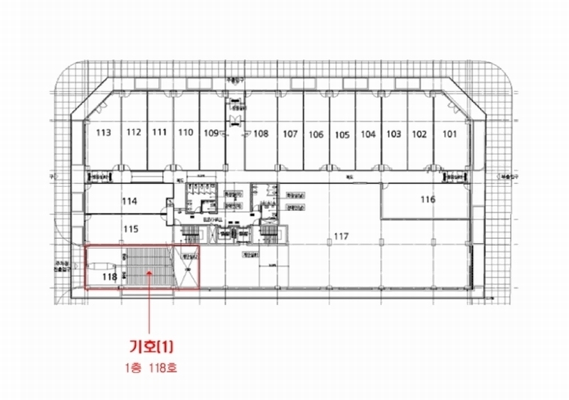
경기도 부천시 소사구 옥길로 110-25, 부천옥길대우센트럴프라자 1층 118호외1개호
(경기도 부천시 소사구 옥길동 744-1)
|
|---|---|
| 물건종류 | 자동차관련시설 |
| 면적 |
토지: 209.16㎡ (63.27평)
건물: 1110.86㎡ (336.04평)
|
| 현재 위치 | 경기도 부천시 소사구 옥길로 110-25, 부천옥길대우센트럴프라자 1층 118호외1개호 |
| 소유자 / 채무자 | (주)도림티앤씨 / 동일건설(주) |
| 채권자 | 바로저축은행 |
| 배당종기일 | 2025-08-28 |
감정가
596,000,000
최저가
292,040,000
보증금
29,204,000
입찰 진행 내역
| 회차/구분 | 입찰기일 | 최저매각가격 | 결과 |
|---|---|---|---|
| 1차 (진행) | 2026-03-05 | 596,000,000 | 유찰 |
| 2차 (진행) | 2026-04-07 | 417,200,000 | 유찰 |
| 3차 (진행) | 2026-05-14 | 292,040,000 | |
| 4차 (진행) | 2026-06-18 | 204,428,000 |
매각물건 현황
| 구분 | 순번 | 소재지 | 용도/구조/면적 | 감정가 | 비고 |
|---|---|---|---|---|---|
| 건1 | 옥길동 744-1(7층중1층 118호) | 17.10.25 | 115.91㎡(35.06평) / 주차장진출입구 및 차량이동램프 | 45,500,000 | |
| 건2 | 옥길동 744-1(7층중4층 407호) | 17.10.25 | 994.948㎡(300.97평) / 주차장 및 차량이동 통로, 램프 등 | 371,700,000 |
현황 및 위치
* 본건은 경기도 부천시 소사구 옥길동 소재 "부천소사경찰서" 남측 인근에 위치하며, 인근은 아파트, 근린생활시설, 업무시설, 공원 등이 소재하는 지역으로 주위환경 보통임. * 본건까지 차량 진출입 가능하며, 인근에 시내버스 정류장이 소재하여 교통여건 보통시됨. * 장방형 토지로서, 자동차관련시설(주차장), 제1,2종 근린생활시설 부지로 이용중임. * 본건 토지는 외곽 3면으로 포장도로에 접함.
참고사항
* 일괄매각 * 본건 집합건축물대장(전유부)상 용도는 자동차관련시설(주차장)임 * 건물) 현황상 건1 부동산은 주차장 진출입구 및 차량이동램프 등으로, 건2 부동산은 주차장 및 차량이동 통로, 램프 등으로 이용중임.(감정평가서 및 현황조사보고서 참조) - 건1) 건축물대장상 용도 "자동차관련시설(주차장)", "1층"으로 등재되어 있으나, 현황상 차량 진출입을 위한 경사로 램프 상태이며 이를 고려하여 평가하였음. 건2) 건축물대장상 용도 "자동차관련시설(주차장)"으로 등재되어 있으며, 입주자 및 상가방문객 등 주차장, 차량진출입 경사로 램프, 차량이동통로 등으로 이용중에 있는바 이를 고려하여 평가하였음. ☞현황서상 내용: 건1)현장에 임하여 부천옥길대우센트럴프라자 5층에 위치한 관리실에 근무하는 관리소장 이태재(60대,남)를 만나 안내문을 교부하고 점유관계를 확인한 바, 건물 주차장 출입구 부지로 사용되고 있다고 함. 건2)현장에 임하여 부천옥길대우센트럴프라자 5층에 위치한 관리실에 근무하는 관리소장 이태재(60대,남)를 만나 안내문을 교부하고 점유관계를 확인한 바, 건물 4층 주차장으로 사용되고 있다고 함.
등기부 현황
건물
| 순위 | 접수일자 | 권리종류 | 권리자 | 채권금액 | 소멸여부 | 비고 |
|---|---|---|---|---|---|---|
| 1(갑3) | 2017-11-08 | 소유권이전(매매) | (OOOOOOO | 0 | ||
| 2(을1) | 2024-04-01 | 근저당 | 바OOOOO | 780,000,000 | 소멸 | 말소기준등기 |
| 3(을2) | 2024-05-27 | 근저당 | (OOOOOOOO | 1,200,000,000 | 소멸 | |
| 4(갑4) | 2025-06-05 | 임의경매 | 바OOOOO | 1,267,914,259 | 소멸 | 2025타경33682 |
관련 문서 (PDF)
클릭하면 원본 파일이 열립니다