목록으로
최종 업데이트: 2026-04-23 01:51
2024타경50238
인천지방법원 부천지원 9계(032-320-1139)
부동산
부동산임의경매
매각
진행중
| 소재지 |
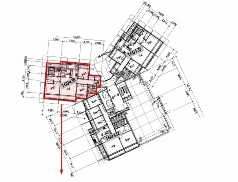
경기도 김포시 풍무로96번길 100, 풍무자이 514동 16층 1604호
(경기도 김포시 풍무동 766)
|
|---|---|
| 물건종류 | 아파트[공급39평형] |
| 면적 |
토지: 55.47㎡ (16.78평)
건물: 106.40㎡ (32.19평)
|
| 현재 위치 | 경기도 김포시 풍무로96번길 100, 풍무자이 514동 16층 1604호 |
| 소유자 / 채무자 | 이동진 / 이동진 |
| 채권자 | 이에이에스제팔차유동화전문유한회사 외 1명 |
| 배당종기일 | 2024-12-18 |
감정가
545,000,000
최저가
381,500,000
보증금
38,150,000
진행 상태 / 매각 결과
매각
completed = false
매각허가결정
| 상태 코드 | 2 | 상태 텍스트 | 매각허가결정 |
|---|---|---|---|
| 매각가 | 408,000,000원 | 매각가율 | 0% |
| 입찰 수 | 2 | 매수인 | 염운현 |
| 차순위 입찰가 | 399,999,900원 | 매각허가 결정 | 매각허가결정 |
| 매각허가 결정일 | 2026-03-17 | 대금 지급기한 | - |
| 대금 지급상태 | - | 배당기일 | - |
| 배당 종결일 | - | 다음 확인 예정 | 2026-04-24 09:00 |
입찰 진행 내역
| 회차/구분 | 입찰기일 | 최저매각가격 | 결과 |
|---|---|---|---|
| 1차 (진행) | 2026-01-22 | 545,000,000 | 유찰 |
| 2차 (진행) | 2026-03-10 | 381,500,000 |
진행 메모
매각 : 408,000,000 원 (74.86%)
(입찰 2 명,매수인:염운현 / 차순위금액 399,999,900원)
매각결정기일 : 2026.03.17 - 매각허가결정
대금지급기한 : 2026.04.21
대금납부 2026.04.13 / 배당기일 2026.05.20
매각물건 현황
| 구분 | 순번 | 소재지 | 용도/구조/면적 | 감정가 | 비고 |
|---|---|---|---|---|---|
| 건물 | 16층중 16층 | 10.06.17 | 106.404㎡(32.19평)[공급39평] / 주거용 | 272,500,000 | * 개별난방설비 |
현황 및 위치
* 본건은 경기도 김포시 풍무동 소재 "풍무초등학교" 남동측 인근에 위치하며 주위는 아파트단지, 다세대주택, 근린생활시설 및 각급학교 등이 혼재하는 기존 공동주택지대에 소재함. * 본건까지 차량의 접근이 용이하고 인근에 노선버스 정류장이 소재하고 있어 대중교통사정은 보통임. * 부정형 평지로서 공동주택 건부지로 이용중임. * 본건 북측 및 동측 입출구로 각각 외곽공도와 연계되어 있음.
전문가 코멘트
☞ 미납관리비의 경우 사용자 부담이 원칙이나 사용자가 납부하지 않은 경우 공용부분 관리비는 대법원판례(2001다8677 전원합의체)에 따라서 매수인에게 승계됩니다. 관리비채권의 법적 소멸시효는 3년이며 미납관리비의 연체료나 관리사무소에서 임의적으로 계산한 지연손해금등이 매수자에게 승계되지 않습니다. 위 사항을 참고하여 관리사무소와 협의하여 처리하시기 바랍니다.☞ 관리비 채권의 법정 소멸시효는 3년이나 미납관리비를 이유로 소멸시효 중단조치(민법 168조재판상의 청구,압류,가압류,가처분 등)를 한 경우 3년이 경과한 관리비이더라도 소멸되지 않습니다.
등기부 현황
건물
| 순위 | 접수일자 | 권리종류 | 권리자 | 채권금액 | 소멸여부 | 비고 |
|---|---|---|---|---|---|---|
| 1(갑2) | 2017-02-27 | 소유권이전(매매) | 이OO | 0 | 거래가액:366,161,329원 | |
| 2(을1) | 2017-02-27 | 근저당 | 신OOOOOOOOOOOOOOO | 281,400,000 | 소멸 | 말소기준등기 |
| 3(을7) | 2021-12-16 | 근저당 | 에OOOOOOOO | 200,400,000 | 소멸 | |
| 4(을9) | 2022-03-30 | 근저당 | 에OOOOOOOO | 73,200,000 | 소멸 | |
| 5(갑11) | 2023-12-01 | 가압류 | 경OOOOOOO | 10,000,000 | 소멸 | 2023카단3022 |
| 6(갑12) | 2024-04-17 | 가압류 | 롯OOOOOOO | 8,422,413 | 소멸 | 2024카단2345 |
| 7(갑13) | 2024-06-25 | 압류 | 김OO | 0 | 소멸 | |
| 8(갑14) | 2024-09-23 | 임의경매 | 이OOOOOOOOOOOOOOOO | 240,736,405 | 소멸 | 2024타경50238 |
| 9(갑15) | 2024-11-06 | 가압류 | (OOOOOOOO | 8,020,379 | 소멸 | 2024카단825857 |
| 10(갑16) | 2025-06-02 | 임의경매 | 신OOO | 240,991,090 | 소멸 | 2025타경2069 |
관련 문서 (PDF)
클릭하면 원본 파일이 열립니다