목록으로
최종 업데이트: 2026-04-22 13:20
2025타경51571
수원지방법원 안산지원 3계(031-481-1195)
부동산
부동산강제경매
결과 대기
진행중
| 소재지 |
경기도 안산시 단원구 화정천서로5길 13-8, 리첸시아 4층 402호
(경기도 안산시 단원구 선부동 1099-3)
|
|---|---|
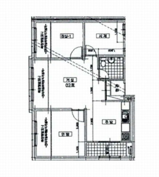
| 물건종류 | 다세대(빌라)[공급17평형] |
| 면적 |
토지: 28.43㎡ (8.6평)
건물: 49.14㎡ (14.86평)
|
| 현재 위치 | 경기도 안산시 단원구 화정천서로5길 13-8, 리첸시아 4층 402호 |
| 소유자 / 채무자 | 망 김대성의 상속재산관리인 김효정 / 망 김대성의 상속재산관리인 김효정 |
| 채권자 | 주택도시보증공사 |
| 배당종기일 | 2025-04-28 |
감정가
164,000,000
최저가
39,376,000
보증금
3,937,600
입찰 진행 내역
| 회차/구분 | 입찰기일 | 최저매각가격 | 결과 |
|---|---|---|---|
| 1차 (진행) | 2025-10-30 | 164,000,000 | 유찰 |
| 2차 (진행) | 2025-12-11 | 114,800,000 | 유찰 |
| 3차 (진행) | 2026-01-22 | 80,360,000 | 유찰 |
| 4차 (진행) | 2026-03-05 | 56,252,000 | 유찰 |
| (진행) | 2026-04-16 | 39,376,000 | 미진행 |
임차인 현황
| 임차인명 | 점유여부 | 전입/확정/배당 | 보증금 / 차임 | 예상배당액 | 대항력 |
|---|---|---|---|---|---|
| JINHONG | 주거용 미상 |
전입: 2024-08-15
확정: - 배당: - |
0
월 0
|
0 | 없음 |
매각물건 현황
| 구분 | 순번 | 소재지 | 용도/구조/면적 | 감정가 | 비고 |
|---|---|---|---|---|---|
| 건물 | 5층중 4층 | 14.07.01 | 49.14㎡(14.86평)[공급17평] / 주거용 | 82,000,000 |
현황 및 위치
* 경기도 안산시 단원구 선부동 소재"화정초등학교"서측 인근에 위치하며 주위는 다세대주택,학교, 공원 등이 소재함 * 본건까지 차량출입이 가능하고 인근에 노선버스정류장이 소재하여 대중교통사정은 무난한 편임 * 사각형의 평탄한 토지로서 다세대주택 건부지로 이용중임 * 동측으로 폭 8m의 포장도로에 접함
등기부 현황
건물
| 순위 | 접수일자 | 권리종류 | 권리자 | 채권금액 | 소멸여부 | 비고 |
|---|---|---|---|---|---|---|
| 1(갑3) | 2021-01-11 | 소유권이전(매매) | 김OO | 0 | 거래가액:150,000,000 | |
| 2(갑4) | 2022-08-04 | 압류 | 국OOOOOOOO | 0 | 소멸 | 말소기준등기 |
| 3(갑5) | 2023-05-17 | 압류 | 수OOOOOOOOO | 0 | 소멸 | |
| 4(을9) | 2023-06-07 | 주택임차권(전유부분 전부) | 송OO | 150,000,000 | 전입:2020.12.18확정:2020.11.11 | |
| 5(갑6) | 2025-02-10 | 강제경매 | 주OOOOOOOOOOOOOOO | 150,000,000 | 소멸 | 2025타경51571 |
관련 문서 (PDF)
클릭하면 원본 파일이 열립니다