목록으로
최종 업데이트: 2026-04-27 21:14
2024타경54407
인천지방법원 부천지원 7계(032-320-1137)
부동산
부동산강제경매
유찰
진행중
| 소재지 |
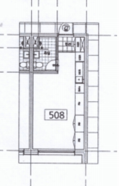
경기도 부천시 소사구 심곡로9번길 51, 코모도타워 5층 508호
(경기도 부천시 소사구 심곡본동 666-4)
|
|---|---|
| 물건종류 | 오피스텔 |
| 면적 |
토지: 5.63㎡ (1.7평)
건물: 24.30㎡ (7.35평)
|
| 현재 위치 | 경기도 부천시 소사구 심곡로9번길 51, 코모도타워 5층 508호 |
| 소유자 / 채무자 | 이용성 / 이용성 |
| 채권자 | 김지나 |
| 배당종기일 | 2025-02-27 |
감정가
152,000,000
최저가
52,136,000
보증금
5,213,600
입찰 진행 내역
| 회차/구분 | 입찰기일 | 최저매각가격 | 결과 |
|---|---|---|---|
| 1차 (진행) | 2025-12-11 | 152,000,000 | 유찰 |
| (진행) | 2026-01-27 | 106,400,000 | 변경 |
| 2차 (진행) | 2026-03-12 | 106,400,000 | 유찰 |
| 3차 (진행) | 2026-04-14 | 74,480,000 | 유찰 |
| 4차 (진행) | 2026-05-21 | 52,136,000 | |
| 5차 (진행) | 2026-06-23 | 36,495,000 |
임차인 현황
| 임차인명 | 점유여부 | 전입/확정/배당 | 보증금 / 차임 | 예상배당액 | 대항력 |
|---|---|---|---|---|---|
| 김지나 | 주거용 전부 |
전입: 2021-08-26
확정: 2021-08-26 배당: 2025-01-31 |
140,000,000
월 0
|
0 | 있음 |
매각물건 현황
| 구분 | 순번 | 소재지 | 용도/구조/면적 | 감정가 | 비고 |
|---|---|---|---|---|---|
| 건물 | 15층중 5층 | 21.01.22 | 24.3㎡(7.35평) / 오피스텔 | 106,400,000 |
현황 및 위치
* 부천시 소사구 심곡본동 소재 "소사테마거리" 내 위치하는 복합용도 건물 "코모도타워" 내 제5층 제508호(오피스텔)로서 인근은 오피스텔, 근린생활시설, 공동주택 등이 혼재된 상업지대임. * 북동측 인근에 경인전철 "부천역"이 소재하고 부천시 구시가지 중심지역에 위치하는 등 대중교통상황 편리한 지역임. * 부정형 토지로서 인접토지와 등고평탄하며 복합용도 건물의 부지로 이용중임. * 동측으로 소로에 접함.
등기부 현황
건물
| 순위 | 접수일자 | 권리종류 | 권리자 | 채권금액 | 소멸여부 | 비고 |
|---|---|---|---|---|---|---|
| 1(갑5) | 2021-09-17 | 공유자전원지분전부이전 | 이OO | 0 | 매매,거래가액:156,070,200 | |
| 2(을1) | 2022-06-30 | 근저당 | 이OO | 97,500,000 | 소멸 | 말소기준등기 |
| 3(을2) | 2023-02-08 | 근저당 | 김OO | 72,000,000 | 소멸 | |
| 4(갑6) | 2023-09-12 | 압류 | 부OO | 0 | 소멸 | |
| 5(을3) | 2023-09-14 | 주택임차권(전부) | 김OO | 140,000,000 | 전입:2021.08.26확정:2021.08.26 | |
| 6(갑7) | 2024-03-06 | 압류 | 서OOOO | 0 | 소멸 | |
| 7(갑8) | 2024-09-13 | 가압류 | 주OOOOOOO | 205,000,000 | 소멸 | 2024카단105495 |
| 8(갑9) | 2024-11-25 | 강제경매 | 김OO | 140,000,000 | 소멸 | 2024타경54407 |
관련 문서 (PDF)
클릭하면 원본 파일이 열립니다