목록으로
최종 업데이트: 2026-04-22 13:21
2024타경48723
인천지방법원 부천지원 12계(032-320-1155)
부동산
부동산강제경매
유찰
진행중
| 소재지 |
경기도 김포시 양도로19번길 19, 재인구겐하임 4층 404호
(경기도 김포시 풍무동 916)
|
|---|---|
| 물건종류 | 오피스텔[계약20평형] |
| 면적 |
토지: 0.00㎡ (0평)
건물: 43.08㎡ (13.03평)
|
| 현재 위치 | 경기도 김포시 양도로19번길 19, 재인구겐하임 4층 404호 |
| 소유자 / 채무자 | 김지연 / 김지연 |
| 채권자 | 주택도시보증공사 |
| 배당종기일 | 2024-11-29 |
감정가
285,000,000
최저가
139,650,000
보증금
13,965,000
입찰 진행 내역
| 회차/구분 | 입찰기일 | 최저매각가격 | 결과 |
|---|---|---|---|
| 1차 (진행) | 2026-02-04 | 285,000,000 | 유찰 |
| 2차 (진행) | 2026-03-18 | 199,500,000 | 유찰 |
| 3차 (진행) | 2026-04-29 | 139,650,000 | |
| 4차 (진행) | 2026-06-10 | 97,755,000 |
임차인 현황
| 임차인명 | 점유여부 | 전입/확정/배당 | 보증금 / 차임 | 예상배당액 | 대항력 |
|---|---|---|---|---|---|
| 이동녘 | 주거용 전부 |
전입: 2021-08-02
확정: 2021-07-05 배당: 2023-08-04 |
253,000,000
월 0
|
0 | 있음 |
매각물건 현황
| 구분 | 순번 | 소재지 | 용도/구조/면적 | 감정가 | 비고 |
|---|---|---|---|---|---|
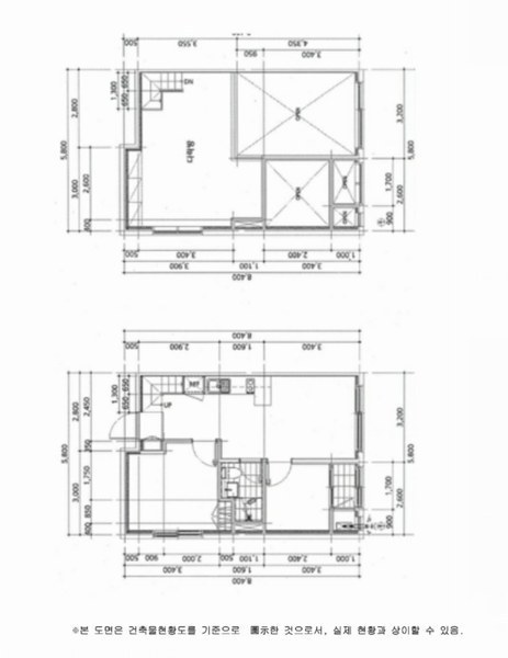
| 건물 | 13층중 4층 | 19.07.04 | 43.08㎡(13.03평)[계약20평] / 오피스텔 | 199,500,000 |
현황 및 위치
* 본건은 경기도 김포시 풍무동 소재 "풍무초등학교" 북서측 인근에 위치하며, 주위는 업무시설, 상업시설, 아파트 등이 소재하는 지역임. * 본건까지 차량접근이 가능하고, 인근에 노선버스정류장 및 근거리에 지하철 "풍무역" 소재하는 등 제반 교통상황은 보통시됨. * 인접토지와 등고평탄한 장방형의 토지를 "업무시설 및 제1종근린생활시설" 건부지로 이용중임. * 대상물건 서측 및 동측으로 포장도로에 각각 접하고 있음.
참고사항
* 본건은 등기사항전부증명서상 대지권의 목적인 토지의 표시가 미기재되어 있으나, 향후 적정대지권이 배분될 것을 전제로 평가하였으며, 대지권을 갖추지 못하는 경우 감정평가금액이 달라질 수있으니, 경매진행시 참고바람
전문가 코멘트
** 집합건물( 아파트, 다세대, 오피스텔, 근린상가 등)은 법에의하여 전체 토지를 토지의 소유권 비율로 나누어 대지권형태로 건물 등기부에 기재를 하고 토지등기부는 폐쇠하는 것이 원칙입니다. (건물의 소유권 이전에 따라 대지권도 같이 이전하는 형태를 취합니다.) 대지권 미등기라는 것은 이러한 정리가 되어 있지 않고 아직 토지 등기부가 존재한다는 의미인데, 그 원인으로는 토지의 소유권이 건물 소유권과 같이 이전하지 않는 경우(= 건물 분양자가 원 토지 소유자에게 대금을 지급하지 못하여 여전히 별개의 토지 소유자가 있는 경우)와 소유권(대지권)이 집합건물의 소유권과 일체로 이전하지만 토지 소유권(대지권) 정리의 미비로 같이 정리 되지 못하는 상황이 있습니다. 경매과정에서는 위의 사항을 사전에 조사하여 대지권이 없으면 건물만 매각하고 대지권이 있으면 본 건과 같이 일괄 감정하여 같이 매각하는 것이 일반적입니다. 대지권등기는 상황에 따라서 개별적으로 등기하기도하고(단독세대만 안되어 있는 경우) 추후에 전체 단지 전체가 대지권 등기를 할 때 같이 등기를 하기도 합니다. 또, 토지에 공유지분형태로 소유권이 등기되어 있으면 토지의 지분을 이전등기하면 됩니다. 법원에서 토지 소유권 여부를 조사 하는 것이 일반적이지만 간혹 대지권이 없음에도 이를 간과하고 본 건과 같이 처리하는 경우도 있어 주의를 요합니다. = 낙찰 후 불허가나 허가 취소, 감액이 가능하지만 시간과 노력이 소요됩니다. 그러나 법원자료 제공의 내용에 따라서는 낙찰자에게 전적으로 위험부담을 지우는 경우도 있으므로 사전에 조사하는 것이 필요합니다. 1. 토지의 소유권이 등기부 상 분양자 앞으로 되어 있으면 대부분 문제가 없습니다( 단 재건축, 재개발의 경우 분담금 미납으로 대지권등기를 거부한 경우에는 낙찰자가 인수하여야 합니다. ). 또 토지 등기부에 공유지분 형태로 건물 소유자의 등기가 있으면 문제 없을 것입니다. 2. 현장에서 일반 거래로 문제가 없으면 경매로도 문제가 없습니다.( 따라서 중개업소나, 관리사무실을 통해 대지권 미등기의 사유와 등기 예정 일정을 파악하는 것이 좋습니다.) 가장 확실한 방법은 집합건물을 분양한주체에게 대지권유무를 알아보는 것입니다. 3. 위와 같은 경우가 아니라 토지에 대한 권리가 없다면 대지권취득의 비용을 미리 알아보고 입찰하여야합니다. ( 다세대 주택, 근생의 경우 특히 주의가 필요합니다. 특수한 경우 토지를 임차한 형태이면 토지사용에 대한 조건 등을 알아보고 이를 입찰에 반영하여야 합니다. ) 4. 공사 중 건물만 매각하는 집합건물의 경우 특히 주의가 필요하며 등기부 상 토지소유자에게 낙찰 후 토지지분 매각 혹은 토지사용권 임대 등의 의향이 있는 지와 의사가 있다면 소요금액 등을 알아보고 이를 반영하여 입찰하여야 합니다. 만약 안정적인 토지사용권 확보가 어려운 경우 입찰을 피하여야 할 것입니다. 5. 대지권의 비율은 일반적으로 단지 혹은 건물 전체 대지를 건물소유권면적 비율로 나누어 배정하지만 정확한 면적은 분양계약서 상의 지분으로 하기에 경매서류로 파악하기 곤란한 면이 있습니다. 역시 중개업소나 관리사무실, 분양사무실, 시행사 등을 통하여 확인하여야 합니다. ( 환지사업지역의 경우 환지 후 배정되는 대지권에 대한 권리취득 여부와 환지 후 취득 대지권 면적을 사업주체에게 문의하여 확인하여야 합니다. )
등기부 현황
건물
| 순위 | 접수일자 | 권리종류 | 권리자 | 채권금액 | 소멸여부 | 비고 |
|---|---|---|---|---|---|---|
| 1(갑2) | 2021-08-06 | 공유자전원지분전부이전 | 김OO | 0 | 매매, 거래가액:253,000,000 | |
| 2(갑3) | 2023-04-05 | 압류 | 국OOOOOOOO | 0 | 소멸 | 말소기준등기 |
| 3(을1) | 2023-08-04 | 주택임차권(전부) | 이OO | 253,000,000 | 소멸 | 전입:2021.08.02확정:2021.07.05 |
| 4(갑4) | 2024-09-03 | 강제경매 | 주OOOOOOOOOOOOOOO | 253,000,000 | 소멸 | 2024타경48723 |
| 5(갑5) | 2024-11-29 | 압류 | 김OO | 0 | 소멸 |
관련 문서 (PDF)
클릭하면 원본 파일이 열립니다