목록으로
최종 업데이트: 2026-04-26 05:55
2024타경61543
서울서부지방법원 본원 3계(02-3271-1323)
부동산
부동산강제경매
유찰
진행중
| 소재지 |
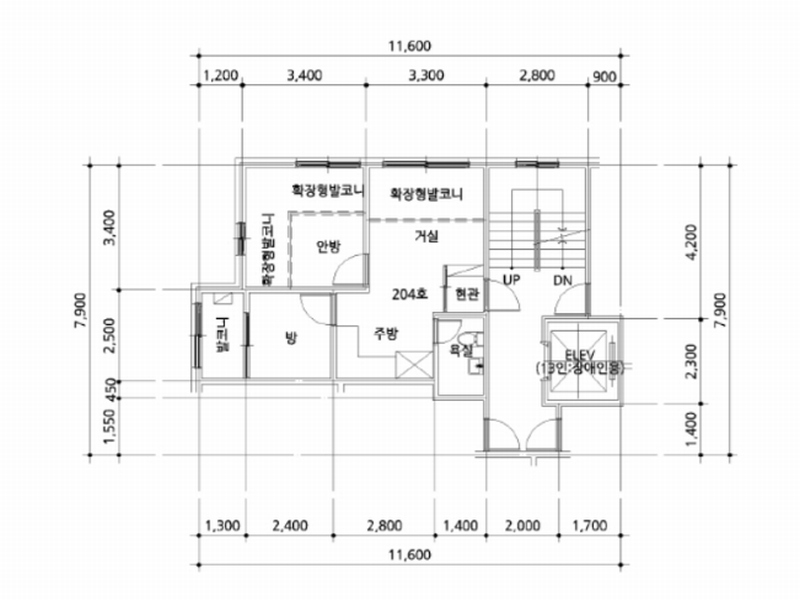
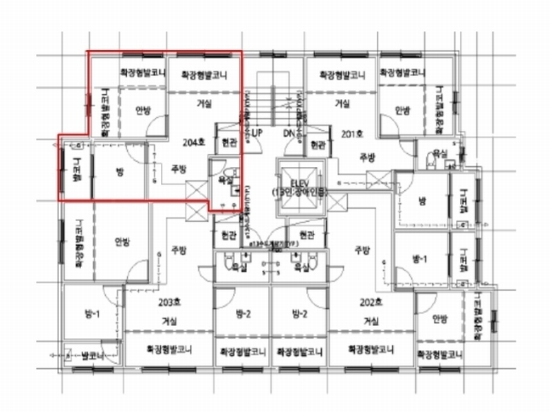
서울특별시 은평구 서오릉로 228-15, 고은명가 2층 204호
(서울특별시 은평구 갈현동 327-59)
|
|---|---|
| 물건종류 | 다세대(빌라)[공급15평형] |
| 면적 |
토지: 20.51㎡ (6.2평)
건물: 29.50㎡ (8.92평)
|
| 현재 위치 | 서울특별시 은평구 서오릉로 228-15, 고은명가 2층 204호 |
| 소유자 / 채무자 | 백태정 / 백태정 |
| 채권자 | 주택도시보증공사 |
| 배당종기일 | 2024-12-17 |
감정가
215,000,000
최저가
28,857,000
보증금
2,885,700
입찰 진행 내역
| 회차/구분 | 입찰기일 | 최저매각가격 | 결과 |
|---|---|---|---|
| 1차 (진행) | 2025-06-10 | 215,000,000 | 유찰 |
| 2차 (진행) | 2025-07-15 | 172,000,000 | 유찰 |
| 3차 (진행) | 2025-08-19 | 137,600,000 | 유찰 |
| 4차 (진행) | 2025-09-23 | 110,080,000 | 유찰 |
| 5차 (진행) | 2025-11-04 | 88,064,000 | 유찰 |
| 6차 (진행) | 2025-12-09 | 70,451,000 | 유찰 |
| 7차 (진행) | 2026-01-13 | 56,361,000 | 유찰 |
| 8차 (진행) | 2026-03-03 | 45,089,000 | 유찰 |
| 9차 (진행) | 2026-04-07 | 36,071,000 | 유찰 |
| 10차 (진행) | 2026-05-12 | 28,857,000 | |
| 11차 (진행) | 2026-06-16 | 23,086,000 | |
| 12차 (진행) | 2026-07-21 | 18,469,000 |
임차인 현황
| 임차인명 | 점유여부 | 전입/확정/배당 | 보증금 / 차임 | 예상배당액 | 대항력 |
|---|---|---|---|---|---|
| 남인아 | 주거용 204호 전부 |
전입: 2020-09-24
확정: 2020-08-28 배당: 2022-10-20 |
215,000,000
월 0
|
0 | 있음 |
| 이관민 | 주거용 204호 전부 |
전입: 2023-07-21
확정: 2023-12-04 배당: 2024-10-22 |
0
월 500,000
|
0 | 없음 |
| 주택도시보증공사(서울북부관리센터) | 주거용 204호 전부 |
전입: 2020-09-24
확정: 2020-08-28 배당: 2024-12-12 |
215,000,000
월 0
|
0 | 있음 |
매각물건 현황
| 구분 | 순번 | 소재지 | 용도/구조/면적 | 감정가 | 비고 |
|---|---|---|---|---|---|
| 건물 | 4층중 2층 | 16.09.02 | 29.5㎡(8.92평)[공급15평] / 주거용 | 86,000,000 | * 도시가스 난방설비 |
현황 및 위치
* 본건은 서울특별시 은평구 갈현동 소재 ’선정고등학교‘ 남측 인근에 위치하며 주위는 단독 및 다세대주택 등 주거용 건물이 주를 이루며 일부 근린생활시설이 혼재하는 주거지대임. * 본건까지 차량 접근이 가능하고 인근에 버스정류장 등이 소재함. * 사다리형의 토지로서 주거용 건부지로 이용중임. * 본건 남측으로 세로(가)의 포장도로와 접하고 있음.
등기부 현황
건물
| 순위 | 접수일자 | 권리종류 | 권리자 | 채권금액 | 소멸여부 | 비고 |
|---|---|---|---|---|---|---|
| 1(갑4) | 2021-07-19 | 소유권이전(매매) | 백OO | 0 | 거래가액:220,000,000원 | |
| 2(을5) | 2021-07-26 | 근저당 | 강OO | 230,000,000 | 소멸 | 말소기준등기 |
| 3(을6) | 2022-10-20 | 주택임차권(전부) | 남OO | 215,000,000 | 전입:2020.09.24확정:2020.08.28 | |
| 4(갑9) | 2024-01-23 | 가압류 | 엠OOOOOOOOO | 10,450,161 | 소멸 | 2024카단801392 |
| 5(갑10) | 2024-02-07 | 압류 | 국OOOOOOO | 0 | 소멸 | |
| 6(갑11) | 2024-10-02 | 강제경매 | 주OOOOOOOOOOOOOOOOO | 235,946,300 | 소멸 | 2024타경61543 |
| 7(갑12) | 2025-03-24 | 압류 | 은OOOOOOOOO | 0 | 소멸 |
관련 문서 (PDF)
클릭하면 원본 파일이 열립니다