목록으로
최종 업데이트: 2026-04-26 06:04
2024타경63389
서울서부지방법원 본원 3계(02-3271-1323)
부동산
부동산강제경매
유찰
진행중
| 소재지 |
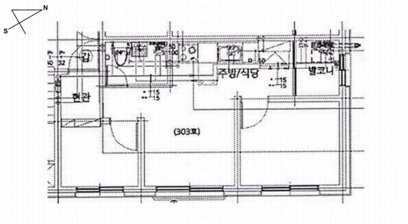
서울특별시 은평구 은평로 12-1, 에스엠벨리체 3층 303호
(서울특별시 은평구 신사동 29-160)
|
|---|---|
| 물건종류 | 오피스텔 |
| 면적 |
토지: 11.10㎡ (3.36평)
건물: 40.43㎡ (12.23평)
|
| 현재 위치 | 서울특별시 은평구 은평로 12-1, 에스엠벨리체 3층 303호 |
| 소유자 / 채무자 | 박혜숙 / 박혜숙 |
| 채권자 | 주택도시보증공사 |
| 배당종기일 | 2025-01-27 |
감정가
285,000,000
최저가
74,711,000
보증금
7,471,100
입찰 진행 내역
| 회차/구분 | 입찰기일 | 최저매각가격 | 결과 |
|---|---|---|---|
| 1차 (진행) | 2025-09-23 | 285,000,000 | 유찰 |
| 2차 (진행) | 2025-11-04 | 228,000,000 | 유찰 |
| 3차 (진행) | 2025-12-09 | 182,400,000 | 유찰 |
| 4차 (진행) | 2026-01-13 | 145,920,000 | 유찰 |
| 5차 (진행) | 2026-03-03 | 116,736,000 | 유찰 |
| 6차 (진행) | 2026-04-07 | 93,389,000 | 유찰 |
| 7차 (진행) | 2026-05-12 | 74,711,000 | |
| 8차 (진행) | 2026-06-16 | 59,769,000 |
임차인 현황
| 임차인명 | 점유여부 | 전입/확정/배당 | 보증금 / 차임 | 예상배당액 | 대항력 |
|---|---|---|---|---|---|
| 이혁 | 주거용 전부 |
전입: 2021-08-04
확정: 2021-07-30 배당: 2023-08-14 |
255,000,000
월 0
|
0 | 있음 |
| 주택도시보증공사 | 주거용 제3층 제303호 전체 |
전입: 2021-08-04
확정: 2021-07-30 배당: 2025-01-15 |
255,000,000
월 0
|
0 | 있음 |
매각물건 현황
| 구분 | 순번 | 소재지 | 용도/구조/면적 | 감정가 | 비고 |
|---|---|---|---|---|---|
| 건물 | 13층중 3층 | 20.10.20 | 40.43㎡(12.23평) / 오피스텔 | 85,500,000 |
현황 및 위치
* 본건은 서울특별시 은평구 신사동 소재 "서울상신초등학교" 남동측 인근에 위치하며 주위는 동유형의 오피스텔, 주상용건물, 아파트, 다세대주택, 근린생활시설 등이 혼재하는 지역으로서 제반주위환경은 보통임. * 본건까지 보통차량진출입이 가능하며 주위에 노선버스정류장 및 지하철6호선인 "응암역" 등 이 소재하여 대중교통상황은 보통임. * 인접필지 및 인접도로 대비 등고평탄한 2필지 일단의 세장형의 토지로서, 도시형생활주택(단지형다세대), 업무시설(오피스텔), 근린생활시설 건부지 등으로 이용중임. * 본건 남서측 및 남동측으로 은평로와 각각 접함.
참고사항
* 외필지 :신사동 29-169
등기부 현황
건물
| 순위 | 접수일자 | 권리종류 | 권리자 | 채권금액 | 소멸여부 | 비고 |
|---|---|---|---|---|---|---|
| 1(갑4) | 2021-08-04 | 소유권이전(매매) | 박OO | 0 | 거래가액:255,000,000 | |
| 2(을1) | 2023-08-14 | 주택임차권(전부) | 이O | 255,000,000 | 전입:2021.08.04확정:2021.07.30 | |
| 3(갑5) | 2024-11-15 | 강제경매 | 주OOOOOOOOOOOOOOOOO | 255,000,000 | 소멸 | 말소기준등기2024타경63389 |
관련 문서 (PDF)
클릭하면 원본 파일이 열립니다