목록으로
최종 업데이트: 2026-04-22 21:00
2025타경50086
수원지방법원 본원 18계(031-210-1478)
부동산
부동산임의경매
매각
진행중
| 소재지 |
-
(경기도 용인시 수지구 고기동 506-28)
|
|---|---|
| 물건종류 | 주택 |
| 면적 |
토지: 0.00㎡ (0평)
건물: 311.60㎡ (94.26평)
|
| 현재 위치 | 경기도 용인시 수지구 고기동 506-28 |
| 소유자 / 채무자 | 유일선 / 여인석 |
| 채권자 | 엠씨아이대부(주) |
| 배당종기일 | 2025-03-20 |
감정가
1,602,398,800
최저가
1,121,679,000
보증금
112,167,900
진행 상태 / 매각 결과
매각
completed = false
매각허가결정
| 상태 코드 | 2 | 상태 텍스트 | 매각허가결정 |
|---|---|---|---|
| 매각가 | 1,122,770,000원 | 매각가율 | 0% |
| 입찰 수 | 1 | 매수인 | 윤대섭외1 |
| 차순위 입찰가 | 0원 | 매각허가 결정 | 매각허가결정 |
| 매각허가 결정일 | 2026-03-16 | 대금 지급기한 | - |
| 대금 지급상태 | - | 배당기일 | - |
| 배당 종결일 | - | 다음 확인 예정 | 2026-04-23 09:00 |
입찰 진행 내역
| 회차/구분 | 입찰기일 | 최저매각가격 | 결과 |
|---|---|---|---|
| 1차 (진행) | 2026-01-27 | 1,602,398,800 | 유찰 |
| 2차 (진행) | 2026-03-09 | 1,121,679,000 |
진행 메모
매각 : 1,122,770,000 원 (70.07%)
(입찰 1 명,매수인:윤대섭외1)
매각결정기일 : 2026.03.16 - 매각허가결정
대금지급기한 : 2026.04.23
매각물건 현황
| 구분 | 순번 | 소재지 | 용도/구조/면적 | 감정가 | 비고 |
|---|---|---|---|---|---|
| 토지 | 토지 | 고기동 506-28 | 토지거래계약에관한허가구역,성장관리계획구역,가축사육제한구역,도시...토지거래계약에관한허가구역,성장관리계획구역,가축사육제한구역,도시지역,자연녹지지역,중점경관관리구역,성장관리권역 / 대 623㎡ (188.46평) | 2,030,000 | 1,264,690,000원 |
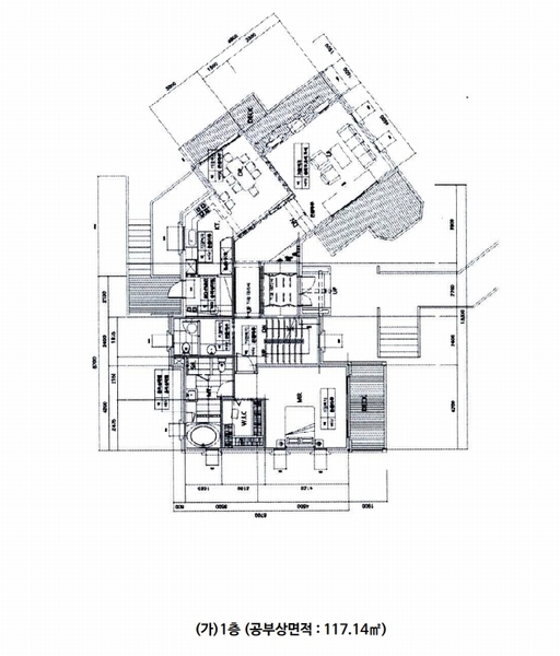
| 건물 | 1 | 고기로655번길 19 [고기동 506-28외 3필지]철근콘크리트구조, 일반목구조 (철근)콘크리트 | 1층 / 단독주택 | 117 | 1,320,000원 |
| 2 | 2층 | 단독주택 | 82.94㎡(25.09평) / 1,320,000원 | 109,480,800 | * 사용승인:2007.01.24* 일반목구조 |
| 3 | 지하1층 | 단독주택,주차장 | 111.52㎡(33.73평) / 660,000원 | 73,603,200 | * 사용승인:2007.01.24* 철근콘크리트구조 |
현황 및 위치
* 대상물건은 경기도 용인시 수지구 고기동 소재 "고기3리마을회관" 북서측 근거리에 위치하며, 주위는 단독주택, 근린생활시설, 자연림 등이 혼재하는 지역으로 전반적인 주위환경은 보통임. * 대상물건까지 차량의 진·출입이 가능하며 주위에 버스정류장이 소재하는 등 제반 교통상황은 보통임. * 완경사의 사다리형 토지를 평지 조성하였으며 주거용 건부지로 이용중임. * 대상물건 북측으로 노폭 약 6미터의 포장도로와 접함.
참고사항
* 일괄매각 * 대상물건 토지 지상에 소재하는 조경수, 조경석 등은 부가물로서, 토지에 포함하여 감정평가 하였음. * 대상물건 건물은 공부상 ‘고기동 506-28번지, 동소 506-30번지, 동소 506-38번지, 동소 510-8번지’ 위 4지상에 소재하는 것으로 등재되어 있으나, 토지합병으로 인해 현황 ‘고기동 506-28번지’ 위 단일지상에 소재하는 바, 경매 진행시 참고 바람
등기부 현황
건물
| 순위 | 접수일자 | 권리종류 | 권리자 | 채권금액 | 소멸여부 | 비고 |
|---|---|---|---|---|---|---|
| 1(갑8) | 2015-03-24 | 소유권이전(매매) | 유OO | 0 | 임의경매로 인한 매각 | |
| 2(을9) | 2019-09-24 | 근저당 | 엠OOOOOOOO | 696,000,000 | 소멸 | 말소기준등기확정채권양도전:명륜새마을금고 |
| 3(을10) | 2023-01-27 | 근저당 | 프OOOOOOO | 6,500,000,000 | 소멸 | |
| 4(갑12) | 2024-04-15 | 압류 | 용OOOOOOOOO | 0 | 소멸 | |
| 5(갑13) | 2025-01-03 | 임의경매 | 엠OOOOOOOO | 523,322,282 | 소멸 | 2025타경50086 |
관련 문서 (PDF)
클릭하면 원본 파일이 열립니다