목록으로
최종 업데이트: 2026-04-22 13:21
2025타경51461
수원지방법원 본원 2계(031-210-1262)
부동산
부동산강제경매
유찰
진행중
| 소재지 |
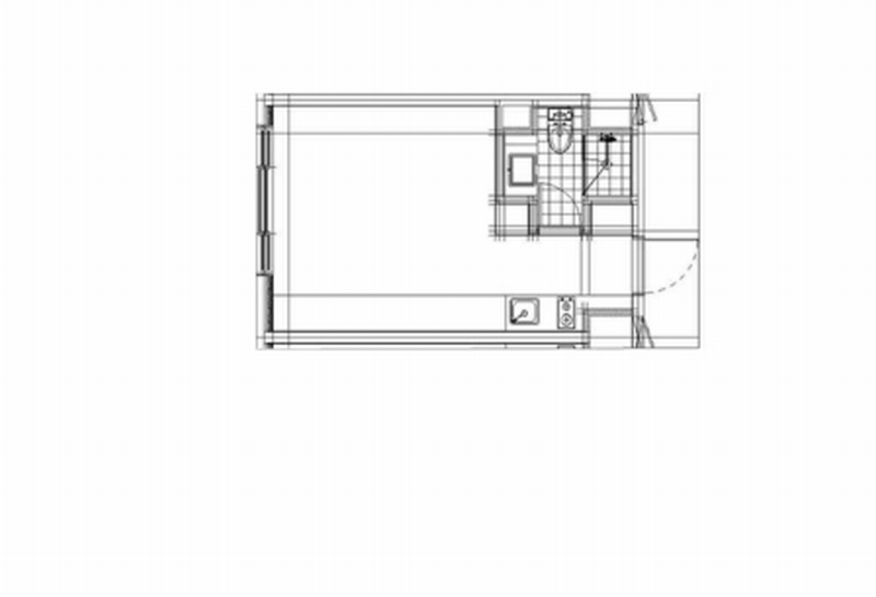
경기도 화성시 동탄하나1길 61, 동탄헤리움 11층 1130호
(경기도 화성시 능동 1065-1)
|
|---|---|
| 물건종류 | 오피스텔[계약14평형] |
| 면적 |
토지: 6.12㎡ (1.85평)
건물: 20.96㎡ (6.34평)
|
| 현재 위치 | 경기도 화성시 동탄하나1길 61, 동탄헤리움 11층 1130호 |
| 소유자 / 채무자 | 서승희 / 서승희 |
| 채권자 | 임찬식 |
| 배당종기일 | 2025-04-03 |
감정가
107,000,000
최저가
52,430,000
보증금
5,243,000
입찰 진행 내역
| 회차/구분 | 입찰기일 | 최저매각가격 | 결과 |
|---|---|---|---|
| 1차 (진행) | 2025-11-26 | 107,000,000 | 유찰 |
| 2차 (진행) | 2026-01-09 | 74,900,000 | 유찰 |
| (진행) | 2026-02-10 | 52,430,000 | 변경 |
| 3차 (진행) | 2026-02-10 | 107,000,000 | 유찰 |
| 4차 (진행) | 2026-03-23 | 74,900,000 | 유찰 |
| 5차 (진행) | 2026-04-22 | 52,430,000 | |
| 6차 (진행) | 2026-05-29 | 36,701,000 |
임차인 현황
| 임차인명 | 점유여부 | 전입/확정/배당 | 보증금 / 차임 | 예상배당액 | 대항력 |
|---|---|---|---|---|---|
| 임찬식 | 주거용 전유부분 전부 |
전입: 2023-04-03
확정: 2023-04-03 배당: 2024-08-19 |
115,000,000
월 0
|
0 | 있음 |
매각물건 현황
| 구분 | 순번 | 소재지 | 용도/구조/면적 | 감정가 | 비고 |
|---|---|---|---|---|---|
| 건물 | 21층중 11층 | 17.08.09 | 20.9578㎡(6.34평)[계약14평] / 오피스텔 | 74,900,000 | * 지하주차장시설 |
현황 및 위치
* 본건은 경기도 화성시 능동 소재, "능동고등학교" 북측 인근에 위치하며, 주위는 오피스텔,근린생활시설 등으로 형성되어 있으며, 주위환경은 대체로 보통시됨 * 본건동까지 차량접근이 가능하고, 인근에 버스정류장 및 간선도로 등이 소재하는바 교통상황은 대체로 보통시됨. * 대체로 사다리형 토지로서, "오피스텔 및 근린생활시설부지"로 이용중임. * 본건 북측으로 대로, 동측, 남측으로 중로가 각각 소재함
전문가 코멘트
☞ 본건은 소액임차인의 최우선변제금 지급기준이 되는 담보물권이 없어 배당시점을 기준으로 소액임차인을 판단하였으니 참고하시기 바랍니다.
등기부 현황
건물
| 순위 | 접수일자 | 권리종류 | 권리자 | 채권금액 | 소멸여부 | 비고 |
|---|---|---|---|---|---|---|
| 1(갑6) | 2023-08-29 | 공유자전원지분전부이전 | 서OO | 0 | 매매, 거래가액:105,000,000 | |
| 2(을3) | 2024-08-19 | 주택임차권(전유부분 전부) | 임OO | 115,000,000 | 전입:2023.04.03확정:2023.04.03 | |
| 3(갑7) | 2025-01-13 | 강제경매 | 임OO | 120,308,381 | 소멸 | 말소기준등기2025타경51461 |
| 4(갑8) | 2025-02-26 | 가압류 | 주OOOOOOO | 1,816,000,000 | 소멸 | 2025카단3830 |
관련 문서 (PDF)
클릭하면 원본 파일이 열립니다