목록으로
최종 업데이트: 2026-04-27 22:18
2024타경770
수원지방법원 본원 11계(031-210-1271)
부동산
부동산강제경매
유찰
진행중
| 소재지 |
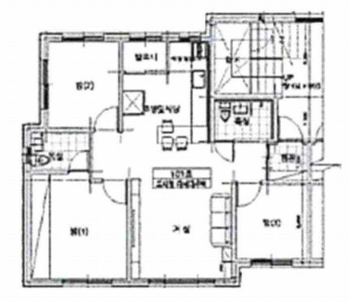
경기도 용인시 기흥구 기흥단지로155번길 47, 고매동365-10공동주택 1동 1층 101호
(경기도 용인시 기흥구 고매동 365-10)
|
|---|---|
| 물건종류 | 다세대(빌라) |
| 면적 |
토지: 109.76㎡ (33.2평)
건물: 66.37㎡ (20.08평)
|
| 현재 위치 | 경기도 용인시 기흥구 기흥단지로155번길 47, 고매동365-10공동주택 1동 1층 101호 |
| 소유자 / 채무자 | 오연철,박주하 / 오연철,박주하 |
| 채권자 | 이보우 |
| 배당종기일 | 2024-04-26 |
감정가
264,000,000
최저가
1,789,000
보증금
178,900
입찰 진행 내역
| 회차/구분 | 입찰기일 | 최저매각가격 | 결과 |
|---|---|---|---|
| 1차 (진행) | 2024-12-18 | 264,000,000 | 유찰 |
| 2차 (진행) | 2025-02-10 | 184,800,000 | 유찰 |
| 3차 (진행) | 2025-03-12 | 129,360,000 | 유찰 |
| 4차 (진행) | 2025-04-14 | 90,552,000 | 유찰 |
| 5차 (진행) | 2025-05-20 | 63,386,000 | 유찰 |
| 6차 (진행) | 2025-06-23 | 44,370,000 | 유찰 |
| 7차 (진행) | 2025-08-11 | 31,059,000 | 유찰 |
| 8차 (진행) | 2025-09-10 | 21,741,000 | 유찰 |
| 9차 (진행) | 2025-10-21 | 15,218,000 | 유찰 |
| 10차 (진행) | 2025-11-21 | 10,652,000 | 유찰 |
| 11차 (진행) | 2025-12-23 | 7,456,000 | 유찰 |
| 12차 (진행) | 2026-02-02 | 5,219,000 | 유찰 |
| 13차 (진행) | 2026-03-13 | 3,653,000 | 유찰 |
| 14차 (진행) | 2026-04-14 | 2,557,000 | 유찰 |
| 15차 (진행) | 2026-05-19 | 1,789,000 | |
| 16차 (진행) | 2026-06-23 | 1,252,000 |
임차인 현황
| 임차인명 | 점유여부 | 전입/확정/배당 | 보증금 / 차임 | 예상배당액 | 대항력 |
|---|---|---|---|---|---|
| 이보우 | 주거용 101호 |
전입: 2021-09-29
확정: 2021-08-17 배당: 2024-01-18 |
230,000,000
월 0
|
0 | 있음 |
매각물건 현황
| 구분 | 순번 | 소재지 | 용도/구조/면적 | 감정가 | 비고 |
|---|---|---|---|---|---|
| 건물 | 4층중 1층 | 19.12.17 | 66.3671㎡(20.08평) / 방3, 거실, 주방, 화장실2, 발코니 등 | 132,000,000 |
현황 및 위치
* 본건은 경기도 기흥구 공세동 소재 기흥초등학교 남동측 인근에 위치하며, 주위는 단독주택 및 다가구주택, 아파트 등 공동주택, 근린생활시설, 연수원 시설 등이 혼재하는 등 제반 주위환경은 보통입니다. * 본건까지 차량 접근 가능하며, 인근에 버스정류장이 소재하여 교통상황은 보통입니다. * 본건 토지는 인접지 대비 등고 평탄한 3필지 일단의 자루형 토지로서, 다세대주택 건부지로 이용 중입니다. * 본건 동측으로 노폭 약 8미터 내외의 포장도로에 접하고 있습니다.
참고사항
* 외필지 : 고매동 366-10, 366-36
등기부 현황
건물
| 순위 | 접수일자 | 권리종류 | 권리자 | 채권금액 | 소멸여부 | 비고 |
|---|---|---|---|---|---|---|
| 1(갑5) | 2021-09-29 | 소유권이전 | 오OOOO | 0 | 신탁재산의귀속, 오연철 782/1318, 김승기 박주하 각 268/1318 | |
| 2(갑6) | 2022-06-09 | 김승기지분전부이전 | 오OO | 0 | 매매, 268/1318, 거래가액 금47,000,000원 | |
| 3(갑9) | 2023-03-23 | 갑구5,6번오연철지분가압류 | 마OOOOOOOOOOOOOOOO | 420,081,345 | 소멸 | 말소기준등기2023카단269 |
| 4(을1) | 2023-10-20 | 주택임차권(전유부분 건물의 전부) | 이OO | 230,000,000 | 전입:2021.09.29확정:2021.08.17 | |
| 5(갑10) | 2024-02-06 | 강제경매 | 이OO | 230,000,000 | 소멸 | 2024타경770 |
| 6(갑11) | 2024-07-05 | 갑구5번오연철지분압류 | 용OOOOOOOOO | 0 | 소멸 |
관련 문서 (PDF)
클릭하면 원본 파일이 열립니다