목록으로
최종 업데이트: 2026-04-23 14:22
2024타경102232
수원지방법원 본원 16계(031-210-1276)
부동산
부동산강제경매
취하/변경
진행중
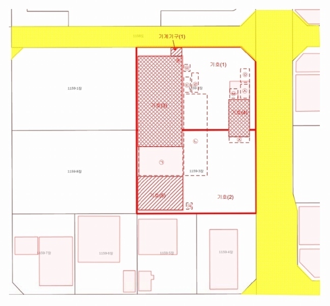
| 소재지 |
-
(경기도 화성시 서신면 전곡리 1159-2)
|
|---|---|
| 물건종류 | 공장 |
| 면적 |
토지: 0.00㎡ (0평)
건물: 7507.10㎡ (2270.9평)
|
| 현재 위치 | 경기도 화성시 서신면 전곡리 1159-2 |
| 소유자 / 채무자 | (주)파인 / (주)파인 |
| 채권자 | (주)폴리원 외4명 |
| 배당종기일 | 2025-03-13 |
감정가
13,319,391,900
최저가
9,323,574,000
보증금
1,864,714,800
입찰 진행 내역
| 회차/구분 | 입찰기일 | 최저매각가격 | 결과 |
|---|---|---|---|
| 1차 (진행) | 2025-11-24 | 13,319,391,900 | 유찰 |
| 2차 (진행) | 2025-12-24 | 9,323,574,000 | 매각 |
| (진행) | 2026-03-16 | 9,323,574,000 | 변경 |
진행 메모
매각 10,000,000,000원(75.08%) / 1명 / 미납
본사건은 변경 되었으며 현재 매각기일이 지정되지 않았습니다.
임차인 현황
| 임차인명 | 점유여부 | 전입/확정/배당 | 보증금 / 차임 | 예상배당액 | 대항력 |
|---|---|---|---|---|---|
| (주)엔비티피(NBTP)(방민규) | 공장 165.00 00㎡ |
전입: -
확정: - 배당: - |
10,000,000
월 1,000,000
|
0 | 없음 |
| (주)하나로테크(양은영) | 공장 3동 457.50 00㎡ |
전입: -
확정: - 배당: - |
20,000,000
월 3,000,000
|
0 | 없음 |
| 김민호 | 주거용 |
전입: 2020-06-30
확정: - 배당: - |
0
월 0
|
0 | - |
매각물건 현황
| 구분 | 순번 | 소재지 | 용도/구조/면적 | 감정가 | 비고 |
|---|---|---|---|---|---|
| 토지 | 토지 | 1 | 전곡리 1159-2 / 성장관리권역,토지거래계약에관한허가구역,가축사육제한구역,연안육역...성장관리권역,토지거래계약에관한허가구역,가축사육제한구역,연안육역,도시지역,일반공업지역,일반산업단지,지구단위계획구역 | 5,196 | 868,000원(339,700원) |
| 토지 | 2 | 전곡리 1159-3 | 성장관리권역,토지거래계약에관한허가구역,가축사육제한구역,연안육역...성장관리권역,토지거래계약에관한허가구역,가축사육제한구역,연안육역,도시지역,일반공업지역,일반산업단지,지구단위계획구역 / 공장용지 5250.3㎡ (1588.22평) | 868,000 | 4,557,260,400원 |
| 건물 | 1 | 전곡산단로 162 [전곡리 1159-2외 1필지 1동]일반철골구조 기타지붕 | 1층 / 공장 | 2,245 | 902,000원 |
| 2 | 2층 | 공장 | 1438.38㎡(435.11평) / 902,000원 | 1,297,418,760 | * 사용승인:2022.10.11 |
| 3 | 전곡산단로 162 [전곡리 1159-2외 1필지 2동]경량철골구조 기타지붕 | 1층 | 사무실 / 211.328㎡(63.93평) | 536,000 | 113,271,808원 |
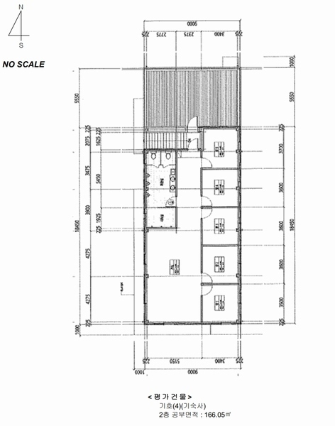
| 4 | 2층 | 기숙사 등 | 166.05㎡(50.23평) / 536,000원 | 89,002,800 | * 사용승인:2016.12.30* 공부상 공장 |
| 5 | 전곡산단로 162 [전곡리 1159-2외 1필지 3동]일반철골구조 기타지붕 | 1층 | 공장 / 457.5㎡(138.39평) | 665,000 | 304,237,500원 |
| 제시외건물및기타 | 1 | 전곡산단로 162 [전곡리 1159-2외 1필지 3동]강파이프구조 판넬지붕 등 1.강파이프구조 판넬지붕, 2.강파이프구조 판넬지붕, 3.판넬조 판넬지붕, 4.판넬조 판넬지붕, 5.철제, 9.태양광패널지붕 | 단층 / 창고 | 732 | 60,000원 |
| 2 | 단층 | 창고 | 2190㎡(662.48평) / 150,000원 | 328,500,000 | 매각포함 |
| 3 | 휴게실 | 12㎡(3.63평) / 150,000원 | 1,800,000 | 매각포함 | |
| 4 | 창고 | 18㎡(5.45평) / 100,000원 | 1,800,000 | 매각포함 | |
| 5 | 창고 | 9㎡(2.72평) / | 100,000 | 매각포함 | |
| 6 | 창고-컨테이너 | 12㎡(3.63평) / | 200,000 | 매각제외 | |
| 7 | 창고-컨테이너 | 27㎡(8.17평) / | 500,000 | 매각제외 | |
| 8 | 창고-컨테이너 | 27㎡(8.17평) / | 500,000 | 매각제외 | |
| 9 | 태양광설비 | 27㎡(8.17평) / | 300,000 | 매각포함 | |
| 10 | 전곡리 1159-2 | 호이스트 1.9ton 1식 / | 0 | 2,000,000원 | |
| 11 | 전곡리 1159-3 | 냉각탑 1식 / | 0 | 200,000원 |
현황 및 위치
* 본건은 경기도 화성시 서신면 전곡리 소재 "전곡해양일반산업단지" 내에 위치하는 토지 및 건물로서, 주위는 중소규모 제조업체 및 지원시설 등이 혼재된 성숙이 완료된 공장지대로 주위환경은 보통임. * 본건 (1,2)는 인접 토지와 등고·평탄한 2필지 일단의 * 가장형 토지로서, 공업용 건부지로 이용중임. * 본건 (1,2)는 동측 및 북측으로 노폭 약 24미터, 15미터의 포장도로와 각각 접하며, 포장상태 및 타 지역으로의 계통성은 보통임.
참고사항
▶본건매각 2025.12.24 / 매각가 10,000,000,000원 / OOO / 1명 입찰 / 대금미납* 일괄매각. 제시외 건물 포함하고, 그 중 이동가능한 컨테이너 3동은 매각에서 제외. * 건1,2,5) 공장으로, 건3,4) 1층은 사무실, 2층은 기숙사 등으로 이용중. * 공장 및 광업재단 저당법상의 기계기구목록 중 일부는 화재로 인하여 소실되었으며, 이후 채무자겸소유자 회사가 들여온 것은 공장 및 광업재단저당법상의 기계기구목록과 상이하여 매각에서 제외 * 토1,2) 건축물대장상 관련지번으로 등재되어 일단지로 평가하였으며, 토지상의 휀스, 바닥포장 등은 토지와 일체로 거래되는 관행을 고려하여 토지에 포함하여 평가하였으니 업무에 참고바람.
등기부 현황
건물
| 순위 | 접수일자 | 권리종류 | 권리자 | 채권금액 | 소멸여부 | 비고 |
|---|---|---|---|---|---|---|
| 1(갑1) | 2022-10-31 | 소유권보존 | (OOOO | 0 | ||
| 2(을1) | 2022-10-31 | 근저당 | 중OOOOOOOOOOOOO | 9,204,000,000 | 소멸 | 말소기준등기 |
| 3(을2) | 2022-10-31 | 근저당 | 중OOOOO | 5,160,000,000 | 소멸 | |
| 4(을3) | 2024-07-10 | 근저당 | (OOOOOOO | 100,000,000 | 소멸 | |
| 5(갑2) | 2024-08-12 | 가압류 | (OOOOOOO | 771,984,400 | 소멸 | 2024카단11791 |
| 6(갑3) | 2024-08-28 | 가압류 | 이OOOOOO | 212,642,090 | 소멸 | 2024카단508153 |
| 7(갑4) | 2024-12-27 | 강제경매 | (OOOOOOOO | 1,287,291,711 | 소멸 | 2024타경102232 |
| 8(갑5) | 2025-02-14 | 가압류 | 중OOOOO | 64,066,052 | 소멸 | 2025카단501014 |
| 9(갑6) | 2025-02-26 | 가압류 | (OOOOOOO | 404,323,850 | 소멸 | 2025카단100524 |
| 10(갑7) | 2025-03-07 | 가압류 | 중OOOOOOOOO | 72,484,288 | 소멸 | 2025카단10457 |
| 11(갑8) | 2025-03-11 | 가압류 | 엔OOOOOOOOOO | 6,745,200 | 소멸 | 2025카단30512 |
| 12(갑9) | 2025-03-14 | 임의경매 | 중OOOOOOOOOOOO | 12,308,502,083 | 소멸 | 2025타경55074 |
| 13(갑10) | 2025-03-20 | 가압류 | (OOOOOOO | 3,473,132 | 소멸 | 2025카단502632 |
| 14(갑11) | 2025-04-18 | 가압류 | 정OO | 64,000,000 | 소멸 | 2025카단503796 |
| 16(갑12) | 2025-06-12 | 압류 | 국OOOOOOO | 0 | 소멸 |
관련 문서 (PDF)
클릭하면 원본 파일이 열립니다