목록으로
최종 업데이트: 2026-04-26 22:29
2024타경146773
서울남부지방법원 본원 5계(02-2192-1933)
부동산
부동산임의경매
매각
진행중
| 소재지 |
-
(서울특별시 양천구 신월동 22-8)
|
|---|---|
| 물건종류 | 근린주택 |
| 면적 |
토지: 0.00㎡ (0평)
건물: 573.97㎡ (173.63평)
|
| 현재 위치 | 서울특별시 양천구 신월동 22-8 |
| 소유자 / 채무자 | 우혜승 / 우혜승 |
| 채권자 | 성산포 수협 |
| 배당종기일 | 2025-04-17 |
감정가
2,796,730,000
최저가
1,431,926,000
보증금
143,192,600
진행 상태 / 매각 결과
매각
completed = false
매각허가결정
| 상태 코드 | 2 | 상태 텍스트 | 매각허가결정 |
|---|---|---|---|
| 매각가 | 1,720,000,000원 | 매각가율 | 0% |
| 입찰 수 | 9 | 매수인 | 대전광역시 이종순 |
| 차순위 입찰가 | 1,661,000,000원 | 매각허가 결정 | 매각허가결정 |
| 매각허가 결정일 | 2026-04-16 | 대금 지급기한 | - |
| 대금 지급상태 | - | 배당기일 | - |
| 배당 종결일 | - | 다음 확인 예정 | 2026-04-27 09:00 |
입찰 진행 내역
| 회차/구분 | 입찰기일 | 최저매각가격 | 결과 |
|---|---|---|---|
| 1차 (진행) | 2025-11-19 | 2,796,730,000 | 유찰 |
| 2차 (진행) | 2026-01-14 | 2,237,384,000 | 유찰 |
| 3차 (진행) | 2026-03-04 | 1,789,907,000 | 유찰 |
| 4차 (진행) | 2026-04-09 | 1,431,926,000 |
진행 메모
매각 : 1,720,000,000 원 (61.5%)
(입찰 9 명,매수인:대전광역시 이종순 / 차순위금액 1,661,000,000원)
매각결정기일 : 2026.04.16 - 매각허가결정
대금지급기한 : 2026.05.19
임차인 현황
| 임차인명 | 점유여부 | 전입/확정/배당 | 보증금 / 차임 | 예상배당액 | 대항력 |
|---|---|---|---|---|---|
| 김용근 | 주거용 203호(22㎡) |
전입: 2024-11-27
확정: 2024-11-27 배당: 2025-03-17 |
100,000,000
월 0
|
0 | 없음 |
| 김용연 | 주거용 4층 방1칸(401호) |
전입: 2024-11-27
확정: 2024-11-07 배당: 2024-12-23 |
150,000,000
월 0
|
0 | 없음 |
| 문창배 | 주거용 3층 301호 |
전입: 2024-11-12
확정: 2024-11-12 배당: 2025-02-26 |
100,000,000
월 0
|
0 | 없음 |
| 박병석 | 주거용 201호(22㎡) |
전입: 2024-11-26
확정: 2024-11-26 배당: 2025-03-17 |
100,000,000
월 0
|
0 | 없음 |
| 임채성 | 주거용 202호(22㎡) |
전입: 2024-11-26
확정: 2024-11-26 배당: 2025-03-17 |
100,000,000
월 0
|
0 | 없음 |
| 최진영 | 주거용 301호 전체 |
전입: -
확정: 2025-03-12 배당: 2025-03-12 |
80,000,000
월 0
|
0 | - |
매각물건 현황
| 구분 | 순번 | 소재지 | 용도/구조/면적 | 감정가 | 비고 |
|---|---|---|---|---|---|
| 토지 | 토지 | 1 | 신월동 22-8 / 과밀억제권역,수평표면구역,대공방어협조구역,도시지역,제2종일반주거...과밀억제권역,수평표면구역,대공방어협조구역,도시지역,제2종일반주거지역,토지거래계약에관한허가구역,가축사육제한구역,상대보호구역 | 118 | 8,090,000원(2,898,000원) |
| 토지 | 2 | 신월동 22-9 | 과밀억제권역,수평표면구역,대공방어협조구역,도시지역,제2종일반주거...과밀억제권역,수평표면구역,대공방어협조구역,도시지역,제2종일반주거지역,토지거래계약에관한허가구역,가축사육제한구역,상대보호구역 / 대 118.8㎡ (35.94평) | 8,090,000 | 961,092,000원 |
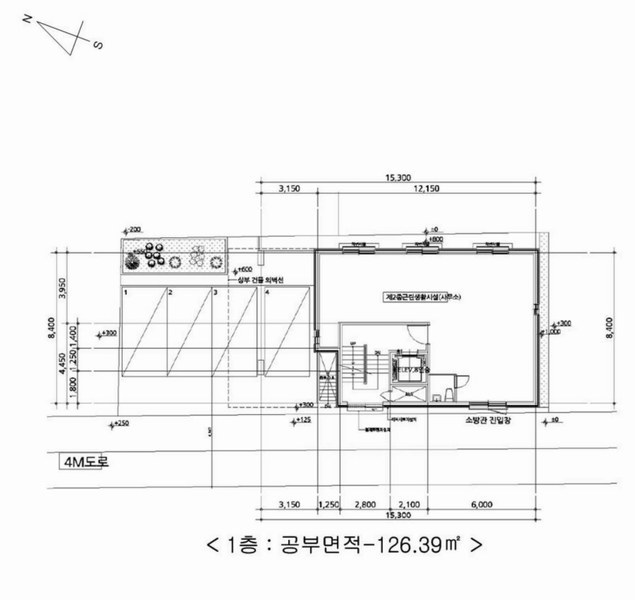
| 건물 | 1 | 월정로42길 3-6 [신월동 22-8외 1필지 다움하우스]철근콘크리트구조 (철근)콘크리트지붕 | 지하1층 / 근린생활시설(사무소) | 96 | 1,100,000원 |
| 2 | 지하1층 | 기계실 | 15.97㎡(4.83평) / 800,000원 | 12,776,000 | * 사용승인:2024.11.04 |
| 3 | 1층 | 근린생활시설(사무소) | 96.05㎡(29.06평) / 1,500,000원 | 144,075,000 | * 사용승인:2024.11.04 |
| 4 | 1층 | 주차장 | 30.34㎡(9.18평) / 800,000원 | 24,272,000 | * 사용승인:2024.11.04 |
| 5 | 2층 | 다중주택 - 6실 | 125.72㎡(38.03평) / 1,800,000원 | 226,296,000 | * 사용승인:2024.11.04 |
| 6 | 3층 | 다중주택 - 6실 | 125.72㎡(38.03평) / 1,800,000원 | 226,296,000 | * 사용승인:2024.11.04 |
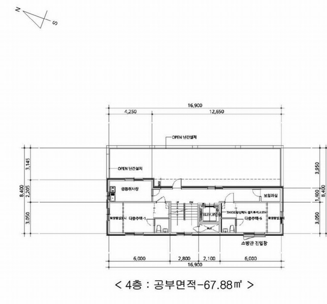
| 7 | 4층 | 다중주택 - 2실, 공동취사장 | 67.88㎡(20.53평) / 1,800,000원 | 122,184,000 | * 사용승인:2024.11.04 |
| 8 | 옥탑 | 계단실 | 16.24㎡(4.91평) / 800,000원 | 12,992,000 | * 사용승인:2024.11.04* 옥탑1층 * 연면적제외 |
현황 및 위치
* 본건은 서울특별시 양천구 신월동 소재 "신화중학교" 동측 인근에 위치하며 주위는 단독 및 다가구주택, 다세대주택, 각종 근린생활시설 등이 혼재하는 지역으로서 제반 주위환경은 보통임 * 본건까지 차량 진출입이 가능하며 인근에 노선버스정류장 및 근거리에 지하철 5호선 "화곡역" 등이 소재하는 바 제반 교통상황은 보통임 * 인접필지 및 도로 대비 등고 평탄한 가장형 토지로서, "(다중주택), 제2종근린생활시설(사무소)" 건부지로 이용중임 * 남서측으로 노폭 약 4미터 내외의 포장도로와 접하고 있음
참고사항
* 일괄매각 * 본건 중 확인가능한 지하1층, 401호의 경우 빌트인 가구 및 편의시설(에어컨, 싱크대 등)등이 미설치 되어 있는 것으로 탐문됨 * 일반건축물대장상 용도는 “다중주택”, “제2종근린생확시설(사무소)”로 등재되어 있음
전문가 코멘트
** 본 건은 유치권신고가 된 경매물건입니다. 기본적인 유치권의 성립요건은 유치권의 원인채권이 경매되는 물건의 가치증가나 보존에 기여한 변제기가 지난 채권(주로 공사채권)이어야하고 채권회수를 위하여 유치(점유 = 직접, 간접점유 무관)를 하고 있어야 합니다. 조사방법은 먼저 신고내용을 입수하여 공사의 내용과 세목 등을 파악하고 이를 기초로 이해관계이자 탐문, 현장조사 등을 통하여 성립여부에 대한 판단을 합니다. 기본적인 내용은 PC버전은 등기부 요약란 아래의 유치권/법정지상권 버튼을 눌러 참고하시고 모바일버전의 경우 자료실의 관련자료를 참고하시기 바랍니다. 본 건에서 구체적으로 검토하여야 할 사항은 다음과 같습니다. == 유치권 신고와 배제신청이 모두 있으므로 양 당사자의 주장을 모두 참고하고 유치권으로서의 성립요건을 갖추었는지를 현장 방문 등을 통하여 확인하는 것이 필요할 것입니다. 아울러 낙찰 후의 대처 방법도 미리 함께 준비하여야 할 것입니다.
등기부 현황
건물
| 순위 | 접수일자 | 권리종류 | 권리자 | 채권금액 | 소멸여부 | 비고 |
|---|---|---|---|---|---|---|
| 1(갑1) | 2024-11-08 | 소유권보존 | 우OO | 0 | ||
| 2(을1) | 2024-11-08 | 근저당 | 성OOOOOOOOOOOOO | 2,600,000,000 | 소멸 | 말소기준등기 |
| 3(갑2) | 2024-12-11 | 임의경매 | 성OOOO | 2,151,618,842 | 소멸 | 2024타경146773 |
관련 문서 (PDF)
클릭하면 원본 파일이 열립니다