목록으로
최종 업데이트: 2026-04-26 22:29
2024타경147417
서울남부지방법원 본원 5계(02-2192-1933)
부동산
부동산강제경매
매각
진행중
| 소재지 |
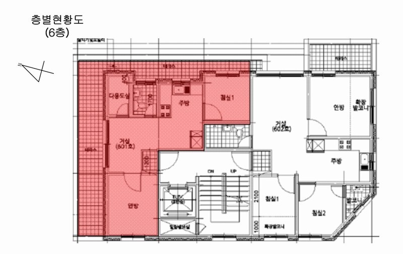
서울특별시 구로구 구로중앙로19길 25-25, 행복드림빌라 1동 6층 601호
(서울특별시 구로구 구로동 317-140)
|
|---|---|
| 물건종류 | 다세대(빌라)[공급13평형] |
| 면적 |
토지: 21.65㎡ (6.55평)
건물: 34.34㎡ (10.39평)
|
| 현재 위치 | 서울특별시 구로구 구로중앙로19길 25-25, 행복드림빌라 1동 6층 601호 |
| 소유자 / 채무자 | 사형택 / 사형택 |
| 채권자 | 김연화 |
| 배당종기일 | 2025-03-10 |
감정가
268,000,000
최저가
137,216,000
보증금
13,721,600
진행 상태 / 매각 결과
매각
completed = false
매각허가결정
| 상태 코드 | 2 | 상태 텍스트 | 매각허가결정 |
|---|---|---|---|
| 매각가 | 255,000,000원 | 매각가율 | 0% |
| 입찰 수 | 1 | 매수인 | 구로구 김연화 |
| 차순위 입찰가 | 0원 | 매각허가 결정 | 매각허가결정 |
| 매각허가 결정일 | 2026-04-16 | 대금 지급기한 | - |
| 대금 지급상태 | - | 배당기일 | - |
| 배당 종결일 | - | 다음 확인 예정 | 2026-04-27 09:00 |
입찰 진행 내역
| 회차/구분 | 입찰기일 | 최저매각가격 | 결과 |
|---|---|---|---|
| 1차 (진행) | 2025-11-19 | 268,000,000 | 유찰 |
| 2차 (진행) | 2026-01-14 | 214,400,000 | 유찰 |
| 3차 (진행) | 2026-03-04 | 171,520,000 | 유찰 |
| 4차 (진행) | 2026-04-09 | 137,216,000 |
진행 메모
매각 : 255,000,000 원 (95.15%)
(입찰 1 명,매수인:구로구 김연화)
매각결정기일 : 2026.04.16 - 매각허가결정
대금지급기한 : 2026.05.27
임차인 현황
| 임차인명 | 점유여부 | 전입/확정/배당 | 보증금 / 차임 | 예상배당액 | 대항력 |
|---|---|---|---|---|---|
| 김연화 | 주거용 전부 |
전입: 2022-12-12
확정: 2022-11-23 배당: 2025-01-07 |
256,000,000
월 0
|
0 | 있음 |
매각물건 현황
| 구분 | 순번 | 소재지 | 용도/구조/면적 | 감정가 | 비고 |
|---|---|---|---|---|---|
| 건물 | 6층중 6층 | 17.01.25 | 34.34㎡(10.39평)[공급13평] / 도시형생활주택(단지형다세대주택) | 80,400,000 |
현황 및 위치
* 본건은 서울특별시 구로구 구로동에 소재하는 "구로구청" 남측 인근에 위치하며 주위는 아파트, 다세대주택, 병원 및 근린생활시설 등이 소재하는 주택지대로 주위환경은 보통임 * 본건까지 차량의 진출입이 자유롭고, 인근에 버스정류장 및 지하철 2,7호선 "대림역"이 소재하는 등 제반 교통여건 양호함 * 3필지 일단의 장방형 평지로서, 도시형생활주택(단지형다세대주택-14세대) 건부지로 이용중임 * 본건 남측으로 약 6m, 서측으로 약 4m 도로에 접함
참고사항
* 건축물 대장상 위반건축물임. - 집합건축물대장상 주택과-8021(2017.02.22.)호에 위반건축물로 표기 * 외필지 :구로동 317-98, 429-197 ☞현황서상 내용: 이 부동산은 1동 짜리 건물이며, 별도의 `동`표시가 없음.
전문가 코멘트
☞ 위반(불법)건축물일 경우 건축법 제80조에 의해 계고 및 원상복구명령을 받게되고, 원상복구 하지 않으면 매년 2회 이내 이행강제금이 부과되므로 관할 관청을 통하여 위반내용, 이행강제금 부과내역 또는 양성화방안 등을 확인하시고 이로 인해 잔금대출에 영향이 없는지 금융기관에 확인하시기 바랍니다.(상가의 경우 기존 영업허가는 승계가 가능하나 신규 영업허가는 발급이 어려우니 주의하시기 바랍니다.)
등기부 현황
건물
| 순위 | 접수일자 | 권리종류 | 권리자 | 채권금액 | 소멸여부 | 비고 |
|---|---|---|---|---|---|---|
| 1(갑2) | 2019-09-04 | 공유자전원지분전부이전 | 사OO | 0 | 매매 | |
| 2(갑11) | 2023-07-03 | 압류 | 국OOOOOOOO | 0 | 소멸 | 말소기준등기 |
| 3(갑12) | 2023-09-18 | 가압류 | 주OOOOOOO | 1,279,000,000 | 소멸 | 2023카단105643 |
| 4(갑13) | 2024-12-09 | 강제경매 | 김OO | 256,000,000 | 소멸 | 2024타경147417 |
관련 문서 (PDF)
클릭하면 원본 파일이 열립니다