목록으로
최종 업데이트: 2026-04-24 22:58
2025타경57442
수원지방법원 본원 12계(031-210-1272)
부동산
부동산강제경매
매각
진행중
| 소재지 |
경기도 용인시 수지구 신봉1로 110, 신봉마을엘지빌리지5차 505동 15층 1501호
(경기도 용인시 수지구 신봉동 871)
|
|---|---|
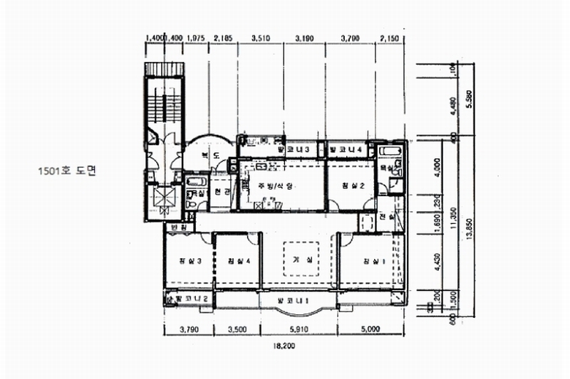
| 물건종류 | 아파트[공급64평형] |
| 면적 |
토지: 100.41㎡ (30.37평)
건물: 164.52㎡ (49.77평)
|
| 현재 위치 | 경기도 용인시 수지구 신봉1로 110, 신봉마을엘지빌리지5차 505동 15층 1501호 |
| 소유자 / 채무자 | 이서인 / 이서인 |
| 채권자 | (주)앱튼(변경전:(주)앱트뉴로사이언스) |
| 배당종기일 | 2025-10-31 |
감정가
829,000,000
최저가
580,300,000
보증금
58,030,000
진행 상태 / 매각 결과
매각
completed = false
매각허가결정
| 상태 코드 | 2 | 상태 텍스트 | 매각허가결정 |
|---|---|---|---|
| 매각가 | 790,000,000원 | 매각가율 | 0% |
| 입찰 수 | 5 | 매수인 | 정창화 |
| 차순위 입찰가 | 720,000,000원 | 매각허가 결정 | 매각허가결정 |
| 매각허가 결정일 | 2026-04-01 | 대금 지급기한 | - |
| 대금 지급상태 | - | 배당기일 | - |
| 배당 종결일 | - | 다음 확인 예정 | 2026-04-25 09:00 |
입찰 진행 내역
| 회차/구분 | 입찰기일 | 최저매각가격 | 결과 |
|---|---|---|---|
| 1차 (진행) | 2026-02-20 | 829,000,000 | 유찰 |
| 2차 (진행) | 2026-03-25 | 580,300,000 |
진행 메모
매각 : 790,000,000 원 (95.3%)
(입찰 5 명,매수인:정창화 / 차순위금액 720,000,000원)
매각결정기일 : 2026.04.01 - 매각허가결정
대금지급기한 : 2026.05.20
임차인 현황
| 임차인명 | 점유여부 | 전입/확정/배당 | 보증금 / 차임 | 예상배당액 | 대항력 |
|---|---|---|---|---|---|
| 권이훈 | 주거용 1501호 |
전입: 2024-01-05
확정: 2023-10-17 배당: 2025-09-16 |
530,000,000
월 0
|
0 | 있음 |
매각물건 현황
| 구분 | 순번 | 소재지 | 용도/구조/면적 | 감정가 | 비고 |
|---|---|---|---|---|---|
| 건물 | 19층중 15층 | 22.08.31 | 164.517㎡(49.77평)[공급64평] / 주거용 | 331,600,000 | * 열병합지역난방설비 * 지하주차장시설 |
현황 및 위치
* 본건은 경기도 용인시 수지구 신봉동 소재 ""홍천초등학교"" 서측 인근에 위치하며, 부근은 아파트단지, 학교, 근린생활시설 등이 혼재된 지역으로서 공동주거지로서의 주위환경 보통임. * 본건까지 차량 접근 가능하며 인근의 간선도로변에 대중교통편인 노선버스정류장이 소재하여 대중교 통사정 보통임. * 인접한 토지와 같은 높이의 부정형의 토지로서 아파트 건부지로 이용 중임. * 단지 내 도로를 이용하여 남서측의 대로에 접하며, 서측 원거리에 용인서울고속도로 구간 ""수지IC"" 가 소재하고, 동측 원거리에 신분당선구간 ""수지구청역""이 소재하여 광역적인 교통망 보통임.
등기부 현황
건물
| 순위 | 접수일자 | 권리종류 | 권리자 | 채권금액 | 소멸여부 | 비고 |
|---|---|---|---|---|---|---|
| 2(을14) | 2024-01-09 | 근저당 | 정OOOOOOOOO | 130,000,000 | 소멸 | 말소기준등기 |
| 3(을15) | 2024-04-15 | 근저당 | 정OOOOOOOOO | 75,000,000 | 소멸 | |
| 4(갑16) | 2025-06-12 | 압류 | 국OOOOOOO | 0 | 소멸 | |
| 5(갑17) | 2025-08-19 | 강제경매 | (OOOO | 251,748,034 | 소멸 | 2025타경57442, 변경전:주식회사앱트뉴로사이언스 |
관련 문서 (PDF)
클릭하면 원본 파일이 열립니다