목록으로
최종 업데이트: 2026-04-30 16:54
2025타경52747
수원지방법원 본원 20계(031-210-1395)
부동산
부동산강제경매
유찰
진행중
| 소재지 |
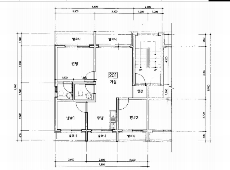
경기도 수원시 팔달구 장다리로195번길 13, 가람주택 2층 201호
(경기도 수원시 팔달구 인계동 990-17)
|
|---|---|
| 물건종류 | 다세대(빌라)[공급17평형] |
| 면적 |
토지: 25.40㎡ (7.68평)
건물: 51.54㎡ (15.59평)
|
| 현재 위치 | 경기도 수원시 팔달구 장다리로195번길 13, 가람주택 2층 201호 |
| 소유자 / 채무자 | 채무자 오수원의 파산관재인 황정민 / 채무자 오수원의 파산관재인 황정민 |
| 채권자 | 제이비우리캐피탈(주) |
| 배당종기일 | 2025-04-14 |
감정가
125,000,000
최저가
42,875,000
보증금
4,287,500
입찰 진행 내역
| 회차/구분 | 입찰기일 | 최저매각가격 | 결과 |
|---|---|---|---|
| 1차 (진행) | 2026-02-24 | 125,000,000 | 유찰 |
| 2차 (진행) | 2026-03-30 | 87,500,000 | 유찰 |
| 3차 (진행) | 2026-04-29 | 61,250,000 | 유찰 |
| 4차 (진행) | 2026-06-08 | 42,875,000 |
임차인 현황
| 임차인명 | 점유여부 | 전입/확정/배당 | 보증금 / 차임 | 예상배당액 | 대항력 |
|---|---|---|---|---|---|
| 명인섭 | 주거용 201호 |
전입: 2023-07-31
확정: - 배당: - |
0
월 0
|
0 | - |
| 한국토지주택공사 | 주거용 201호 |
전입: 2023-07-31
확정: 2023-06-19 배당: 2025-03-11 |
130,000,000
월 0
|
0 | 있음 |
매각물건 현황
| 구분 | 순번 | 소재지 | 용도/구조/면적 | 감정가 | 비고 |
|---|---|---|---|---|---|
| 건물 | 5층중 2층 | 03.09.19 | 51.54㎡(15.59평)[공급17평] / 주거용 | 75,000,000 |
현황 및 위치
* 본건은 경기도 수원시 인계동에 소재하는 장다리공원 북측 인근에 위치하며 주위는 다세대, 근린생활시설, 공원 등이 혼재함. * 본건까지 차량출입이 가능하며 인근에 노선버스등 대중교통을 이용할 수 있음. * 세장형의 평지로서 다세대주택 부지로 이용중임. * 본건의 북동측으로 장다리로195번길(약8미터폭)에 접해있음.
참고사항
* 외관상 “가람하이빌 나동”으로 표기되어 있으니 경매 진행 시 참조하기 바람.
전문가 코멘트
☞ 본건은 소액임차인의 최우선변제금 지급기준이 되는 담보물권이 없어 배당시점을 기준으로 소액임차인을 판단하였으니 참고하시기 바랍니다.
등기부 현황
건물
| 순위 | 접수일자 | 권리종류 | 권리자 | 채권금액 | 소멸여부 | 비고 |
|---|---|---|---|---|---|---|
| 2(갑20) | 2025-01-20 | 강제경매 | 제OOOOOOOOOOOOOOOO | 17,454,276 | 소멸 | 말소기준등기2025타경52747 |
관련 문서 (PDF)
클릭하면 원본 파일이 열립니다