목록으로
최종 업데이트: 2026-04-22 13:21
2024타경59413
수원지방법원 본원 15계(031-210-1375)
부동산
부동산임의경매
유찰
진행중
| 소재지 |
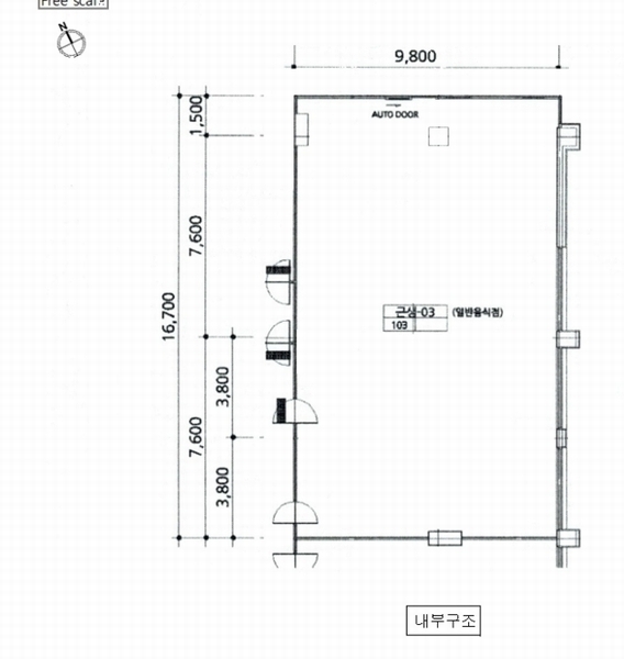
경기도 용인시 수지구 광교중앙로296번길 6, 광교어드밴스힐 1층 103호
(경기도 용인시 수지구 상현동 1133-2)
|
|---|---|
| 물건종류 | 근린상가 |
| 면적 |
토지: 42.88㎡ (12.97평)
건물: 163.66㎡ (49.51평)
|
| 현재 위치 | 경기도 용인시 수지구 광교중앙로296번길 6, 광교어드밴스힐 1층 103호 |
| 소유자 / 채무자 | 박성진 / 박성진 |
| 채권자 | 농협자산관리회사 |
| 배당종기일 | 2024-05-23 |
감정가
3,864,000,000
최저가
1,893,360,000
보증금
189,336,000
입찰 진행 내역
| 회차/구분 | 입찰기일 | 최저매각가격 | 결과 |
|---|---|---|---|
| 1차 (진행) | 2026-02-25 | 3,864,000,000 | 유찰 |
| 2차 (진행) | 2026-03-31 | 2,704,800,000 | 유찰 |
| 3차 (진행) | 2026-05-01 | 1,893,360,000 | |
| 4차 (진행) | 2026-06-09 | 1,325,352,000 |
임차인 현황
| 임차인명 | 점유여부 | 전입/확정/배당 | 보증금 / 차임 | 예상배당액 | 대항력 |
|---|---|---|---|---|---|
| (주)금토홀딩스,계덕수 | 점포 건물 전부 |
전입: -
확정: - 배당: 2024-05-20 |
200,000,000
월 0
|
0 | - |
| 강계순 | 점포 103호 |
전입: -
확정: - 배당: 2024-05-21 |
100,000,000
월 3,000,000
|
0 | 없음 |
매각물건 현황
| 구분 | 순번 | 소재지 | 용도/구조/면적 | 감정가 | 비고 |
|---|---|---|---|---|---|
| 건물 | 10층중 1층 | 14.06.27 | 163.66㎡(49.51평) / 근린생활시설(음식점:선주회집) | 3,091,200,000 | * 지하주차장설비 |
현황 및 위치
* 경기도 용인시 수지구 상현동 소재"상현역(신분당선)"남동측 인근에 위치하며 주위는 아파트단지, 근린생활시설, 업무시설 등이 혼성되어 있는 주상복합지대임. * 본건까지 차량출입이 가능하고 인근에 노선버스 정류장이 소재하며 북서측 인근에 상현역(신분당선)이 소재하여 대중교통사정은 편리한 편임. * 인접 도로와 같은 높이의 사각형의 토지로서 근린생활시설 및 업무시설(광교어드밴스힐) 건부지로 이용중임. * 북측으로 폭 15m의 포장도로에 접하여 제반 차량출입이 가능한 상태임.
참고사항
* 기준시점 1층 근린상가로 "선주회집" 상호로 이용중. * 2021. 3. 11.자 "103호, 104호, 105호, 106호"가 103호로 전유부합병 및 표시변경(건축허가과-6351호)되었으나, "집합건축물대장건축물현황도 평면도(1층)"에 합병 전 기준으로 표기되어 있음.[감정평가서]
전문가 코멘트
☞ 임차인 (강계순)은 ((주)금토홀딩스,계덕수)의 전차인으로써, 전대인의 보증금에서 배당받아갈 것으로 사료되며, 실제 사실관계에 따라 달라질 수 있습니다.
등기부 현황
건물
| 순위 | 접수일자 | 권리종류 | 권리자 | 채권금액 | 소멸여부 | 비고 |
|---|---|---|---|---|---|---|
| 1(갑15) | 2022-05-06 | 소유권이전 | 박OO | 0 | 신탁재산의귀속 | |
| 2(을7) | 2022-05-06 | 근저당 | 농OOOOOOO | 3,420,000,000 | 소멸 | 말소기준등기확정채권양도전:영동농업협동조합 |
| 3(을8) | 2022-06-02 | 근저당 | 이OO | 300,000,000 | 소멸 | |
| 4(을9) | 2022-11-04 | 전세권(건물 전부) | (OOOOOOOOOOO | 200,000,000 | 소멸 | 존속기간:2022.11.05~2024.11.04 |
| 5(갑16) | 2022-11-28 | 압류 | 국OOOOOOOO | 0 | 소멸 | |
| 6(갑17) | 2022-12-19 | 가압류 | 비OOOOOOOOO | 45,136,815 | 소멸 | 2022카단1227 |
| 7(갑18) | 2023-01-18 | 가압류 | 광OOO | 28,500,101 | 소멸 | 2023카단20011 |
| 8(갑19) | 2023-01-30 | 가압류 | (OOOOOOOOO | 20,403,125 | 소멸 | 2023카단2002 |
| 9(갑21) | 2023-03-14 | 가압류 | 롯OOOOOO | 14,801,680 | 소멸 | 2023카단10457 |
| 10(갑22) | 2023-05-17 | 압류 | 용OOOOO | 0 | 소멸 | |
| 11(갑24) | 2024-01-24 | 압류 | 국OOOOOOO | 0 | 소멸 | |
| 12(갑25) | 2024-03-07 | 임의경매 | 농OOOOOOO | 3,227,301,063 | 소멸 | 2024타경59413 |
| 13(갑26) | 2024-03-08 | 압류 | 용OOOOOOOOO | 0 | 소멸 |
관련 문서 (PDF)
클릭하면 원본 파일이 열립니다