목록으로
최종 업데이트: 2026-04-26 00:10
2023타경11117
수원지방법원 본원 9계(031-210-1269)
부동산
부동산임의경매
유찰
진행중
| 소재지 |
-
(경기도 용인시 처인구 모현읍 동림리 167-6)
|
|---|---|
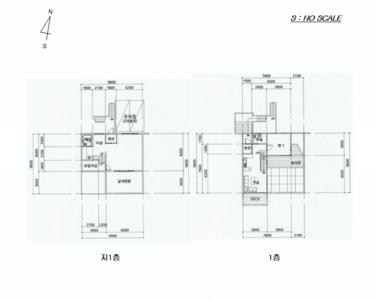
| 물건종류 | 주택 |
| 면적 |
토지: 0.00㎡ (0평)
건물: 178.86㎡ (54.11평)
|
| 현재 위치 | 경기도 용인시 처인구 모현읍 동림리 167-6 |
| 소유자 / 채무자 | 김민영 / 김민영 |
| 채권자 | 김선태 |
| 배당종기일 | 2024-01-23 |
감정가
638,157,200
최저가
312,697,000
보증금
31,269,700
입찰 진행 내역
| 회차/구분 | 입찰기일 | 최저매각가격 | 결과 |
|---|---|---|---|
| 1차 (진행) | 2026-03-03 | 638,157,200 | 유찰 |
| 2차 (진행) | 2026-04-03 | 446,710,000 | 유찰 |
| 3차 (진행) | 2026-05-08 | 312,697,000 | |
| 4차 (진행) | 2026-06-12 | 218,888,000 |
매각물건 현황
| 구분 | 순번 | 소재지 | 용도/구조/면적 | 감정가 | 비고 |
|---|---|---|---|---|---|
| 토지 | 토지 | 1 | 동림리 167-6 / 수질보전특별대책지역,배출시설설치제한지역,자연보전권역,토지거래계...수질보전특별대책지역,배출시설설치제한지역,자연보전권역,토지거래계약에관한허가구역,자연녹지지역,도시지역,가축사육제한구역 | 62 | 450,000원(73,400원) |
| 토지 | 2 | 동림리 167-8 | 수질보전특별대책지역,배출시설설치제한지역,자연보전권역,토지거래계...수질보전특별대책지역,배출시설설치제한지역,자연보전권역,토지거래계약에관한허가구역,자연녹지지역,도시지역,가축사육제한구역 / 대 247㎡ (74.72평) | 1,370,000 | 338,390,000원 |
| 건물 | 1 | 동산로16번길 19-2 [동림리 167-8 가동]일반목구조 경사지붕 | 지하1층 / 단독주택 | 81 | 1,520,000원 |
| 2 | 1층 | 단독주택 | 48.93㎡(14.8평) / 1,520,000원 | 74,373,600 | * 사용승인:2016.08.29 |
| 3 | 2층 | 단독주택 | 48.93㎡(14.8평) / 1,520,000원 | 74,373,600 | * 사용승인:2016.08.29 |
현황 및 위치
* 본건은 경기도 용인시 처인구 동림리 소재 "동림1리노인정" 남동측 인근의 "프라임전원마을" 내에 위치하며, 주변은 단독주택, 공장 및 창고, 농경지, 자연림지 등이 혼재하는 지역임. * 본건까지 차량 진출입 가능하고 북서측 인근 및 남서측 인근의 태재로 및 문형동림로변으로 버스정류장이 각 소재하고 있음. * 북서하향 완경사 지대 내 1)토지는 부정형의 도로(지목, 현황)이고,2)장방형의 단독주택 건부지임. * 1)본건 도로(동산로16번길 일부)로서 북측 상단이 동산로와 연계됨. 2)북측으로 토1 토지(도로)와 접하고 서측으로 동산로16번길과 접함.
참고사항
* 일괄매각(토1 지분매각임) * 토1)토지는 본건 주택의 진입로로 이용되고 있음 * 토2)토지에 부합한 석축 및 조경수 등은 거래관행상 토지에 포함하여 평가함 * 본 건물의 등기사항전부증명서의 도로명주소는 "동산로16번길 19-4"로 되어 있으나, 일반건축물대장 및 현황의 도로명주소는 "동산로16번길 19-2"로 되어 있음
등기부 현황
건물
| 순위 | 접수일자 | 권리종류 | 권리자 | 채권금액 | 소멸여부 | 비고 |
|---|---|---|---|---|---|---|
| 1(갑2) | 2020-04-20 | 소유권이전(매매) | 김OO | 0 | ||
| 2(을2) | 2020-04-20 | 근저당 | 농OOOOOOOOOOOOOOOOO | 378,000,000 | 소멸 | 말소기준등기확정채권양도전:농협은행 |
| 3(을4) | 2020-05-08 | 근저당 | 김OO | 54,000,000 | 소멸 | |
| 4(갑3) | 2023-02-09 | 압류 | 국OOOOOOOO | 0 | 소멸 | |
| 5(갑4) | 2023-11-06 | 임의경매 | 김OO | 54,000,000 | 소멸 | 2023타경11117 |
| 6(갑5) | 2024-02-19 | 가압류 | 우OOOOOOOOO | 7,512,929 | 소멸 | 2024카단20282 |
| 7(갑6) | 2024-08-19 | 가압류 | 동OOOOOO | 7,515,540 | 소멸 | 2024카단205 |
관련 문서 (PDF)
클릭하면 원본 파일이 열립니다