목록으로
최종 업데이트: 2026-04-27 08:52
2024타경141907
서울남부지방법원 본원 6계(02-2192-1973)
부동산
부동산임의경매
유찰
진행중
| 소재지 |
-
(서울특별시 금천구 시흥동 922-15)
|
|---|---|
| 물건종류 | 근린주택 |
| 면적 |
토지: 0.00㎡ (0평)
건물: 267.13㎡ (80.81평)
|
| 현재 위치 | 서울특별시 금천구 시흥동 922-15 |
| 소유자 / 채무자 | 박승철외 1명 / 박승철 |
| 채권자 | 경서농협 |
| 배당종기일 | 2025-02-20 |
감정가
1,160,842,440
최저가
742,939,000
보증금
74,293,900
입찰 진행 내역
| 회차/구분 | 입찰기일 | 최저매각가격 | 결과 |
|---|---|---|---|
| (진행) | 2025-11-20 | 1,160,842,440 | 변경 |
| 1차 (진행) | 2026-03-05 | 1,160,842,440 | 유찰 |
| 2차 (진행) | 2026-04-14 | 928,674,000 | 유찰 |
| 3차 (진행) | 2026-05-26 | 742,939,000 | |
| 4차 (진행) | 2026-07-15 | 594,351,000 |
임차인 현황
| 임차인명 | 점유여부 | 전입/확정/배당 | 보증금 / 차임 | 예상배당액 | 대항력 |
|---|---|---|---|---|---|
| 강다현 | 주거용 2층 호별표시 제201호 |
전입: 2022-02-18
확정: 2022-01-27 배당: 2024-12-02 |
100,000,000
월 0
|
0 | 없음 |
| 김병성 | 주거용 502호 |
전입: 2024-05-20
확정: 2024-12-05 배당: 2024-12-06 |
10,000,000
월 500,000
|
0 | 없음 |
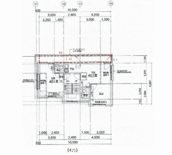
| 백두산 | 주거용 401호 |
전입: 2024-05-14
확정: 2024-05-14 배당: 2024-12-12 |
10,000,000
월 550,000
|
0 | 없음 |
| 신준호 | 주거용 4층 호별표시 402호 |
전입: 2022-02-07
확정: 2022-02-18 배당: 2024-12-03 |
150,000,000
월 0
|
0 | 없음 |
| 원혜선 | 주거용 401호 |
전입: 2022-12-19
확정: - 배당: - |
0
월 0
|
0 | 없음 |
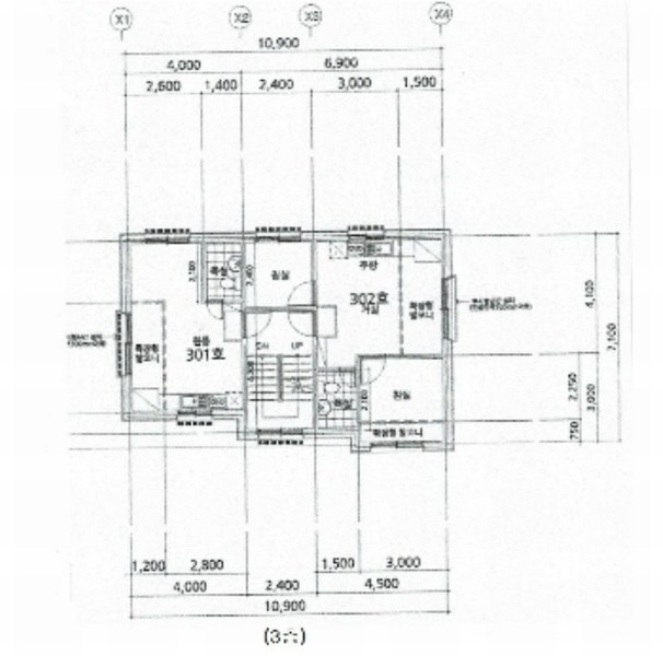
| 윤민 | 주거용 301호 전부 |
전입: 2018-05-14
확정: 2018-05-14 배당: 2025-02-13 |
100,000,000
월 0
|
0 | 없음 |
| 이기원 | 주거용 101호 |
전입: 2022-09-19
확정: 2022-09-19 배당: 2024-12-03 |
5,000,000
월 418,000
|
0 | 없음 |
| 이예니 | 주거용 3층 호별표시 302호 |
전입: 2018-05-15
확정: 2018-05-17 배당: 2025-02-07 |
150,000,000
월 0
|
0 | 없음 |
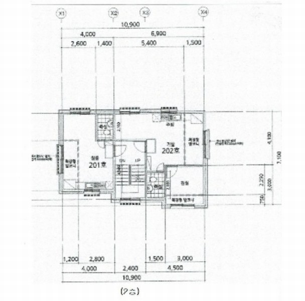
| 조우진 | 주거용 2층 호별표시 202호 |
전입: 2021-02-23
확정: 2021-01-26 배당: 2024-12-12 |
150,000,000
월 0
|
0 | 없음 |
| 홍성훈 | 주거용 501호 |
전입: 2024-06-17
확정: - 배당: - |
0
월 0
|
0 | 없음 |
매각물건 현황
| 구분 | 순번 | 소재지 | 용도/구조/면적 | 감정가 | 비고 |
|---|---|---|---|---|---|
| 토지 | 토지 | 시흥동 922-15 | 대공방어협조구역,도시지역,장애물제한표면구역,과밀억제권역,토지거...대공방어협조구역,도시지역,장애물제한표면구역,과밀억제권역,토지거래계약에관한허가구역,가축사육제한구역,소규모주택정비사업의 사업시행구역,정비구역기타,중점경관관리구역,소규모주택정비 관리지역,제2종일반주거지역 / 대 121.9㎡ (36.87평) | 0 | 811,299,400원 |
| 건물 | 1 | 은행나무로10길 28 [시흥동 922-15 태을명가2차]철근콘크리트구조 평스라브지붕 | 1층 / 주택(1가구) 및 주차장등 | 23 | 1,408,000원 |
| 2 | 1층 | 주택(1가구) 및 주차장등 | 9㎡(2.72평) / 1,408,000원 | 12,672,000 | * 사용승인:2018.05.08* 도시가스에 의한 난방시설 * 공부상 근린생활시설 |
| 3 | 2층 | 주택(2가구) | 57.68㎡(17.45평) / 1,408,000원 | 81,213,440 | * 사용승인:2018.05.08* 도시가스에 의한 난방시설 |
| 4 | 3층 | 주택(2가구) | 57.68㎡(17.45평) / 1,408,000원 | 81,213,440 | * 사용승인:2018.05.08* 도시가스에 의한 난방시설 |
| 5 | 4층 | 주택(2가구) | 46.58㎡(14.09평) / 1,408,000원 | 65,584,640 | * 사용승인:2018.05.08* 도시가스에 의한 난방시설 |
| 6 | 5층 | 주택(2가구) | 42.03㎡(12.71평) / 1,408,000원 | 59,178,240 | * 사용승인:2018.05.08* 도시가스에 의한 난방시설 * 공부상 근린생활시설 |
| 7 | 옥탑 | 계단실 | 8.76㎡(2.65평) / 1,408,000원 | 12,334,080 | * 사용승인:2018.05.08* 옥탑1층 * 연면적제외 * 도시가스에 의한 난방시설 |
| 제시외건물 | 1 | 은행나무로10길 28 [시흥동 922-15 태을명가2차]패널조패널지붕 | 4층 / 다용도실 | 11 | 200,000원 |
| 2 | 5층 | 다용도실등 | 11㎡(3.33평) / 200,000원 | 2,200,000 | 매각포함 |
현황 및 위치
* 본건은 서울특별시 금천구 시흥동 소재 백산초등학교 북동측 인근에 위치하며 주위는 단독 및 다세대주택과 상업시설등이 혼재한 지역으로 제반 입지여건은 보통인 편임. * 본건으로 차량진입이 가능하며 인근에 버스정류장이 위치하여 대중교통상황은 보통인 편임. * 인접도로와 대체로 등고평탄한 사다리형으로 다가구용 단독주택부지로 이용중임. * 본건 동측으로 약6m, 북측으로 약3m의 막다른 도로에 각각 접함
참고사항
* 일괄매각, 제시외 건물 포함 * 건축물대장상 위반건축물 표기 - 건축물대장상 위반건축물 표기[401호,패널,3.4㎡,주거],[402호,패널,3㎡,주거],[501호,패널,5.5㎡,근린생활시설],[502호,패널,5.5㎡, 근린생활시설] * 매각물건 토지에는 북측의 도로후퇴부분 약3.2㎡이 포함(감정평가서 참조) * 토1) 118.7㎡ * @6,774,000원/㎡=804,073,800원, 도로후퇴부분 3.2㎡ * @2,258,000원/㎡=7,225,600원 * 1층(101호) 및 5층(501호,502호)는 공부상 근린생활시설이나 현황 주택으로 이용중임. ☞현황서상 내용:위 부동산은 원룸 형태의 건물로서 1층에 101호, 2층에는 201호와 202호, 3층에는 301호와 302호, 4층에 401호와 402호, 5층에 501호와 502호 등 총 9세대가 존재하고 있음
전문가 코멘트
☞ 위반(불법)건축물일 경우 건축법 제80조에 의해 계고 및 원상복구명령을 받게되고, 원상복구 하지 않으면 매년 2회 이내 이행강제금이 부과되므로 관할 관청을 통하여 위반내용, 이행강제금 부과내역 또는 양성화방안 등을 확인하시고 이로 인해 잔금대출에 영향이 없는지 금융기관에 확인하시기 바랍니다.(상가의 경우 기존 영업허가는 승계가 가능하나 신규 영업허가는 발급이 어려우니 주의하시기 바랍니다.)
등기부 현황
건물
| 순위 | 접수일자 | 권리종류 | 권리자 | 채권금액 | 소멸여부 | 비고 |
|---|---|---|---|---|---|---|
| 1(갑1) | 2018-05-11 | 소유권보존 | 박OOOOOO | 0 | 각 1/2 | |
| 2(을1) | 2018-05-11 | 근저당 | 경OOOOOOOOO | 471,600,000 | 소멸 | 말소기준등기 |
| 3(갑4) | 2024-11-19 | 임의경매 | 경OOO | 423,285,044 | 소멸 | 2024타경141907 |
| 4(을2) | 2024-12-17 | 주택임차권(2층 호별표시 제201호) | 강OO | 100,000,000 | 소멸 | 전입:2022.02.18확정:2022.01.27 |
| 5(갑5) | 2025-02-14 | 가압류 | 임OO | 100,000,000 | 소멸 | 2025카단10569 |
| 6(을3) | 2025-02-20 | 주택임차권(2층 호별표시 202호) | 조OO | 150,000,000 | 소멸 | 전입:2021.02.23확정:2021.01.26 |
| 7(을4) | 2025-04-28 | 주택임차권(3층 호별표시 302호) | 이OO | 150,000,000 | 소멸 | 전입:2018.05.15확정:2018.05.17확:2018.5.17.(금150,000,000원) |
| 8(갑6) | 2025-05-08 | 박승철지분압류 | 국OOOOOOOO | 0 | 소멸 | |
| 9(을5) | 2025-06-24 | 주택임차권(4층 호별표시 402호) | 신OO | 150,000,000 | 소멸 | 전입:2022.02.07확정:2022.02.18 |
| 10(갑7) | 2025-07-31 | 박승철지분압류 | 서OOOOOOO | 0 | 소멸 |
관련 문서 (PDF)
클릭하면 원본 파일이 열립니다